Pronájem bytu 2+kk, Brno, Spálená, 56 m2

Spálená, Brno, Trnitá

17 000 Kč /za měsíc Získejte výhodnou HYPOTÉKU
Exkluzivní partneři v Brně

Informace k bytu

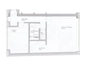
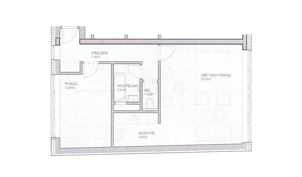
V exkluzivním zastoupení majitele Vám nabízíme Byt 2+kk ve třetím patře v žádaném bytovém domě Residence Onyx (ul. spálená) s výhledem na Petrov.

- Rozloha bytu je 56m2
- V obývacím pokoji jsou velká francouzská okna a stejně jako na všech ostatních oknech jsou interiérové žaluzije pro vytvoření většího soukromí a komfortu
- Byt je vybavený na míru vyrobenou kuchyňskou linkou se všemi spotřebiči (lednička, trouba, sklokeramická deska, myčka, mikrovlnná trouba)
- Koupelna je vybavena Vanou. Pračka
- Oddělená toaleta
- Možnost připojení kabelové TV a internetu přes poskytovatele O2
- Byt se pronajíma nevybavený

Jako doplňkové služby poskytujeme:

- Možnost pronájmu parkovacího stání
- Úplné vybavení bytu Rent&Live
- Jednorázový nebo pravidelný úklid

Parametry bytu

Cena
17 000 Kč /za měsíc
Náklady na bydlení
Zálohy na služby: 4000,-
Aktualizováno
29. 12. 2025
Adresa
Spálená, Brno, Trnitá
ID
A308
Stavba
Cihlová
Stav objektu
Velmi dobrý
Patro
3.
Vlastnictví
Osobní
Užitná plocha
56 m2
Garáž

Kontaktovat makléře

Máte zájem o tento byt?

Tímto, v souladu s nařízením Evropského parlamentu a Rady (EU) 2016/679, v platném znění, prohlašuji, že mi je alespoň 16 let a uděluji tak svůj souhlas se zpracováním zadaných údajů (jméno, telefon, e-mail, ip adresa) společnosti B3 Technology, s.r.o., IČ: 07330600, se sídlem Novostavby 126/23, 435 11 Lom (správce dat), za účelem předání dotazu z tohoto formuláře Vámi vybranému inzerentovi a zpětného kontaktování mé osoby. Osobní údaje bude správce zpracovávat manuálně i automaticky přímo prostřednictvím svých zaměstnanců. Informace předané tímto formulářem budou uloženy v databázi správce maximálně po dobu 10 let. Odvolání souhlasu s uložením a zpracováním poskytnutých dat lze e-mailem na info@vitio.cz. V případě podezření na neoprávněné použití Vámi poskytnutých údajů máte právo předat podnět k šetření Úřadu pro ochranu osobních údajů. Více informací
Chystáte se prodat nemovitost?
Pomůžeme Vám!

Inzerát si prohlédlo 0 lidí

Prodejce

Lukáš Patočka

Lukáš Patočka

Hlídací pes

Chcete dostávat emailem podobné nabídky pronájmu bytů 2+kk v Brně?

Podobné nemovitosti