Pronájem bytu 2+1, Ostrava, Přibylova, 70 m2 (ID: 2542416)

Přibylova, Ostrava, Kunčice

14 000 Kč /za měsíc Získejte výhodnou HYPOTÉKU

(Nájem + zálohy za služby 1.900,- / 1 os. a + 600,- Kč za každou další osobu)

Exkluzivní partneři v Ostravě

Informace k bytu

Nabízíme Vám jedinečnou možnost pronájmu prostorného bytu 2+1 v klidné části Ostravy-Kunčic se sdílenými venkovními prostory.

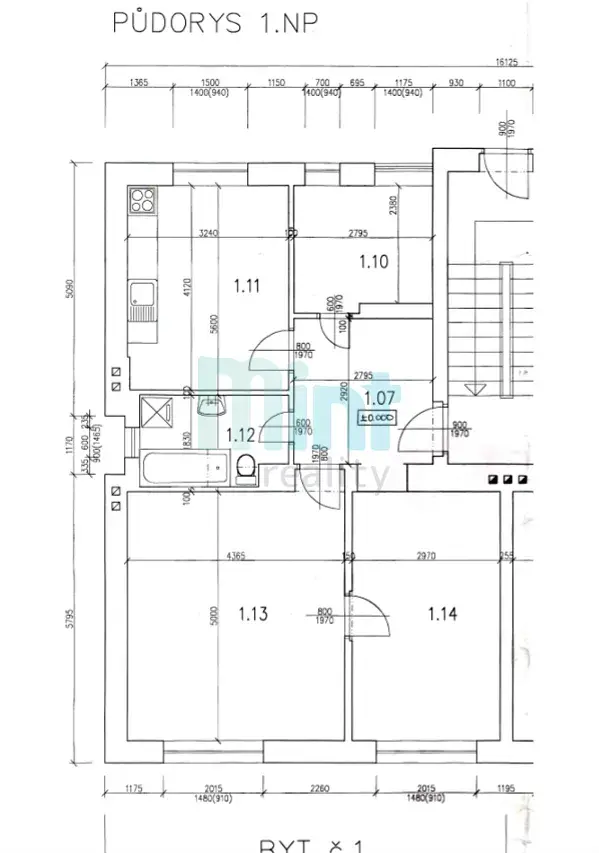
Jedná se o byt s dispozicí 2+1 a podlahovou plochou 70 m², situovaný v 1. NP. Součástí bytu je také další malá místnost o velikosti 7m² - lze ji využít jako pracovnu nebo šatnu, a sklepní kóje v 1. PP, která je již zahrnuta v ceně nájmu.

Byt nabízí zděnou koupelnu s vanou, umyvadlem a toaletou. Srdcem obývacího pokoje jsou stylová krbová kamna, která zpříjemní chladné večery a ozvláštní místnost. Kuchyni je nutné instalovat. Při plánovaném dlouhodobém pronájmu je majitel ochoten uhradit polovinu nákladů. Vytápění je řešeno vlastním plynovým kondenzačním kotlem. Spotřeba vody je sledována podružným vodoměrem, což zajišťuje spravedlivé vyúčtování dle skutečné spotřeby.

Velkým bonusem této nemovitosti je sdílený přístup k venkovním prostorám, kde můžete trávit čas na zahradě, využívat altán či ohniště. Pro sportovní nadšence je k dispozici sportovní areál, kde si zahrajete tenis, stolní tenis, petanque nebo badminton. Sportovní zázemí je navíc doplněno o šatny, sprchy, toalety a dokonce i kuchyň.

K bytu je možné si pronajmout jedno venkovní parkovací stání za měsíční poplatek 242,- Kč s DPH.

Měsíční nájemné činí 14.000,- Kč. Služby se vyúčtovávají a výše měsíčních záloh se odvíjí od počtu osob: 1.900,- Kč/ 1 os., 2.500,- Kč/ 2 os., 3.100,- Kč/ 3 os. (tyto zálohy nezahrnují elektřinu a plyn, které si nájemník hradí zvlášť).

Vratná jistota (kauce) činí 2x měsíční nájem včetně záloh za služby. Provize RK je 14.000,- Kč

V případě zájmu neváhejte kontaktovat makléřku.

Parametry bytu

Cena
14 000 Kč /za měsíc
Poznámka k ceně
Nájem + zálohy za služby 1.900,- / 1 os. a + 600,- Kč za každou další osobu
Aktualizováno
28. 12. 2025
Adresa
Přibylova, Ostrava, Kunčice
ID
0731
Stavba
Cihlová
Stav objektu
Velmi dobrý
Patro
1. z 4
Vybaveno
Ne
Lokalita objektu
Klidná část obce
Vlastnictví
Osobní
Užitná plocha
70 m2
Zastavěná plocha
197 m2
Třída energetické náročnosti
D - Méně úsporná
Elektřina
230V
Plyn
Individuální
Odpad
Veřejná kanalizace
Komunikace
Betonová
Telekomunikace
Internet
Doprava
Silnice, MHD, Autobus
Voda
Vodovod
Topné těleso
Radiátory, Krbová kamna
Zdroj topení
Plynový kondenzační kotel, Krbová kamna
Zdroj teplé vody
Plynový kondenzační kotel
Parkování

Kontaktovat makléře

Realitní kancelář

MINT reality s.r.o.

náměstí Antonie Bejdové 1810/10, Ostrava

Chystáte se prodat nemovitost?
Pomůžeme Vám!

Máte zájem o tento byt?

Tímto, v souladu s nařízením Evropského parlamentu a Rady (EU) 2016/679, v platném znění, prohlašuji, že mi je alespoň 16 let a uděluji tak svůj souhlas se zpracováním zadaných údajů (jméno, telefon, e-mail, ip adresa) společnosti B3 Technology, s.r.o., IČ: 07330600, se sídlem Novostavby 126/23, 435 11 Lom (správce dat), za účelem předání dotazu z tohoto formuláře Vámi vybranému inzerentovi a zpětného kontaktování mé osoby. Osobní údaje bude správce zpracovávat manuálně i automaticky přímo prostřednictvím svých zaměstnanců. Informace předané tímto formulářem budou uloženy v databázi správce maximálně po dobu 10 let. Odvolání souhlasu s uložením a zpracováním poskytnutých dat lze e-mailem na info@vitio.cz. V případě podezření na neoprávněné použití Vámi poskytnutých údajů máte právo předat podnět k šetření Úřadu pro ochranu osobních údajů. Více informací
Chystáte se prodat nemovitost?
Pomůžeme Vám!

Inzerát si prohlédlo 0 lidí

Prodejce

Tereza Štrochová

Tereza Štrochová

Hlídací pes

Chcete dostávat emailem podobné nabídky pronájmu bytů 2+1 v Ostravě?

Podobné nemovitosti