Prodej rodinného domu, Brno, Zeleného, 205 m2

Zeleného, Brno, Žabovřesky

Cena na vyžádání /za nemovitost Získejte výhodnou HYPOTÉKU

(info v RK, včetně DPH, včetně poplatků, včetně provize, včetně právního servisu)

Exkluzivní partneři v Brně

Informace k domu

Ve výhradním zastoupení nabízíme k prodeji prostorný rodinný dům s krásnou zahradou, s vlastní garáží a parkovacím stáním v jedné z nejžádanějších lokalit Brna - Žabovřesky, na ulici Zeleného. V klidné ulici s výbornou dostupností do centra města a kompletní občanskou vybaveností v dosahu pár minut.

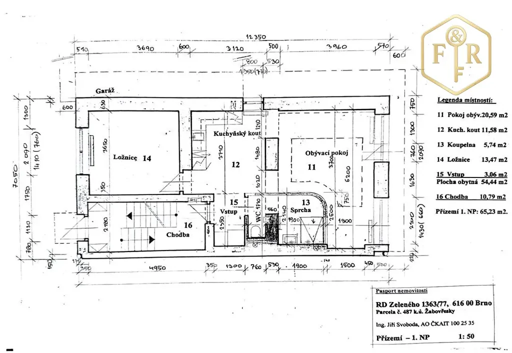
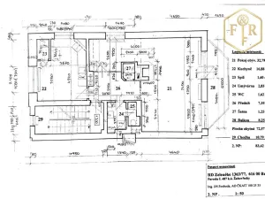
Dům nabízí celkem 3 byty:
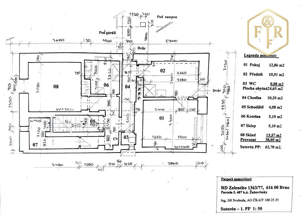
1+1 v suterénu (celkem 24,65m²)
2+1 v 1.NP (celkem 54,44m²)
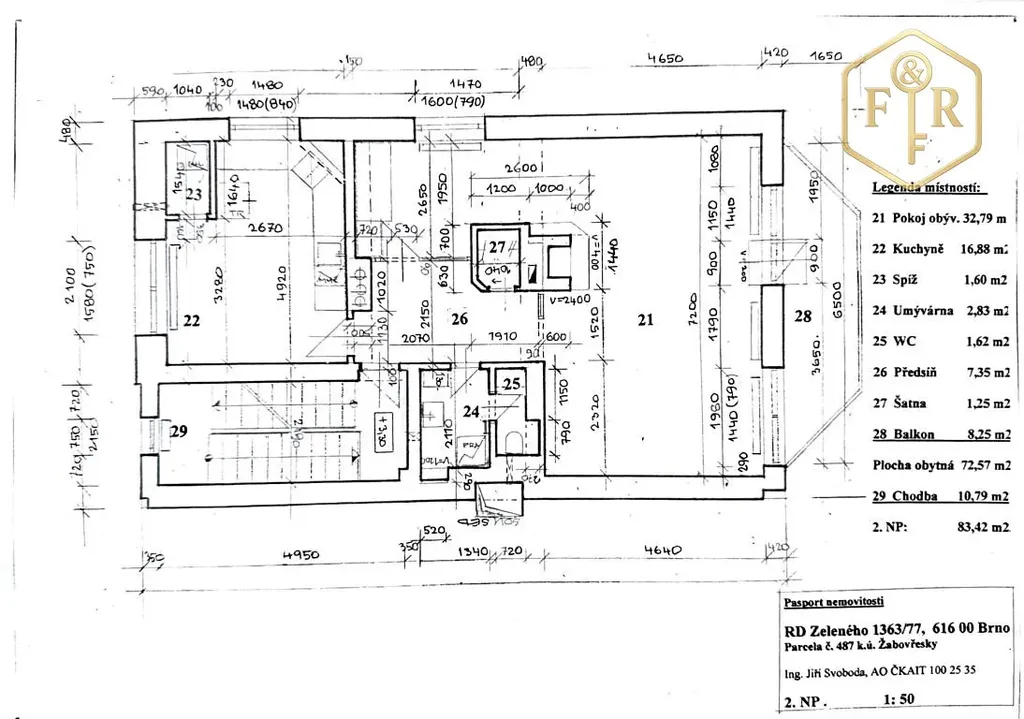
4+1 ve 2.NP a v podkroví (celkem 72,57m² + 62m²)

Celkem nabízí dům 6 pokojů, 2 koupelny, 2 kuchyně.

Možnost dvougeneračního bydlení nebo kombinace bydlení a podnikání, je v udržovaném stavu, vhodný k modernizaci podle vlastních představ či k pronájmu.

Žabovřesky patří mezi nejoblíbenější části Brna díky spojení klidného rodinného bydlení a blízkosti centra.

Perfektní pro rodiny, které chtějí bezpečné a pohodlné bydlení s veškerým komfortem.

Parametry domu

Cena
Cena na vyžádání Spočítat hypotéku
Poznámka k ceně
info v RK, včetně DPH, včetně poplatků, včetně provize, včetně právního servisu
Aktualizováno
27. 12. 2025
Adresa
Zeleného, Brno, Žabovřesky
ID
00014
Stavba
Cihlová
Stav objektu
Dobrý
Vybaveno
Částečně
Druh objektu
Řadový
Lokalita objektu
Klidná část obce
Užitná plocha
205 m2
Zastavěná plocha
112 m2
Plocha pozemku
315 m2
Plocha zahrady
178 m2
Třída energetické náročnosti
D - Méně úsporná
Ukazatel energetické náročnosti
143 kWh/m2 za rok
Elektřina
230V, 400V
Plyn
Plynovod
Odpad
Veřejná kanalizace
Komunikace
Betonová, Asfaltová
Telekomunikace
Telefon, Internet, Satelit, Kabelová televize, Kabelové rozvody
Doprava
Silnice, MHD
Voda
Vodovod
Topné těleso
Radiátory, Krb, Klimatizace
Zdroj topení
Plynový kondenzační kotel, Krb
Zdroj teplé vody
Plynový kondenzační kotel
Garáž
Sklep
Výtah
Parkování

Kontaktovat makléře

Máte zájem o tento dům?

Tímto, v souladu s nařízením Evropského parlamentu a Rady (EU) 2016/679, v platném znění, prohlašuji, že mi je alespoň 16 let a uděluji tak svůj souhlas se zpracováním zadaných údajů (jméno, telefon, e-mail, ip adresa) společnosti B3 Technology, s.r.o., IČ: 07330600, se sídlem Novostavby 126/23, 435 11 Lom (správce dat), za účelem předání dotazu z tohoto formuláře Vámi vybranému inzerentovi a zpětného kontaktování mé osoby. Osobní údaje bude správce zpracovávat manuálně i automaticky přímo prostřednictvím svých zaměstnanců. Informace předané tímto formulářem budou uloženy v databázi správce maximálně po dobu 10 let. Odvolání souhlasu s uložením a zpracováním poskytnutých dat lze e-mailem na info@vitio.cz. V případě podezření na neoprávněné použití Vámi poskytnutých údajů máte právo předat podnět k šetření Úřadu pro ochranu osobních údajů. Více informací
Chystáte se prodat nemovitost?
Pomůžeme Vám!

Inzerát si prohlédlo 1 lidí

Prodejce

Finanční a realitní skupina s.r.o.

Finanční a realitní skupina s.r.o.

Hlídací pes

Chcete dostávat emailem podobné nabídky prodeje rodinných domů v Brně?

Podobné nemovitosti