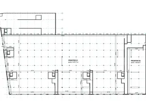
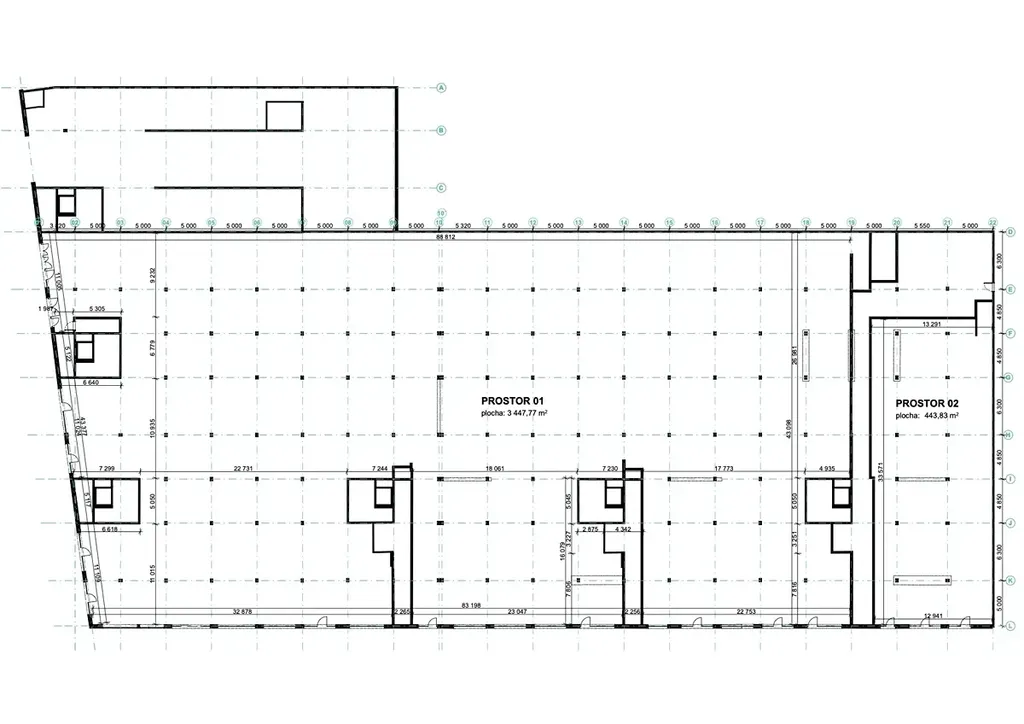
Pronájem obchodního prostoru, Hradec Králové, Kollárova, 3447 m2 (ID: 2542272)

Kollárova, Hradec Králové, Pražské Předměstí

10,5 € /za metr čtvereční / měsíc Získejte výhodnou HYPOTÉKU
Exkluzivní partneři v Hradci Králové

Informace k nemovitosti

Až 3.500 m² prostoru v centru Hradce Králové – výkladce, frekventovaná poloha a naprostá flexibilita využití
Hledáte reprezentativní prostory pro svůj podnik, značku nebo investici?
V samém srdci Hradce Králové, jen pár kroků od hlavního vlakového i autobusového nádraží, přímo u hotelu Černigov a v docházkové vzdálenosti od Riegrova náměstí, nabízíme výjimečně flexibilní komerční prostory o celkové rozloze až 3.500 m².

Základní jednotka má výměru 444 m², další části lze připojit až do výše celé plochy, a to po modulárních blocích od cca 600 m². Díky velkým výkladcům do ulice je prostor ideální pro jakýkoli provoz, který chce být vidět – ať už jde o gastronomii, showroom, obchod, služby, fitness, kanceláře nebo zdravotnické zařízení.

Stav: shell & core – čistý základ, který si přizpůsobíte do posledního detailu.

Veškeré inženýrské sítě jsou zavedeny, včetně plynové přípojky.

Možnosti:
Pronájem 10,50 EUR/m2
Koupě – cena: 49.000 Kč/m²

Rozšíření až na 3.500 m² dle potřeb

Proč právě sem:
- Strategická poloha: vlak, autobus, hotel, centrum – vše doslova za rohem
- Vysoká frekvence lidí denně – ideální pro provozy závislé na pohybu zákazníků
- Výkladce pro skvělou viditelnost a přirozený marketing
- Maximální flexibilita prostoru – růst bez nutnosti stěhování
- Možnost individuálního řešení podle vašeho konceptu

Zaujalo vás to? Domluvme si prohlídku. Tento prostor může být začátkem něčeho velkého.

Parametry nemovitosti

Cena
10,5 € /za metr čtvereční / měsíc
Aktualizováno
27. 12. 2025
Adresa
Kollárova, Hradec Králové, Pražské Předměstí
ID
RKOLL3447
Stavba
Skeletová
Stav objektu
Novostavba
Vybaveno
Ne
Lokalita objektu
Centrum obce
Užitná plocha
3447 m2
Plyn
Plynovod
Parkování

Kontaktovat makléře

Máte zájem o tuto nemovistost?

Tímto, v souladu s nařízením Evropského parlamentu a Rady (EU) 2016/679, v platném znění, prohlašuji, že mi je alespoň 16 let a uděluji tak svůj souhlas se zpracováním zadaných údajů (jméno, telefon, e-mail, ip adresa) společnosti B3 Technology, s.r.o., IČ: 07330600, se sídlem Novostavby 126/23, 435 11 Lom (správce dat), za účelem předání dotazu z tohoto formuláře Vámi vybranému inzerentovi a zpětného kontaktování mé osoby. Osobní údaje bude správce zpracovávat manuálně i automaticky přímo prostřednictvím svých zaměstnanců. Informace předané tímto formulářem budou uloženy v databázi správce maximálně po dobu 10 let. Odvolání souhlasu s uložením a zpracováním poskytnutých dat lze e-mailem na info@vitio.cz. V případě podezření na neoprávněné použití Vámi poskytnutých údajů máte právo předat podnět k šetření Úřadu pro ochranu osobních údajů. Více informací
Chystáte se prodat nemovitost?
Pomůžeme Vám!

Inzerát si prohlédlo 0 lidí

Prodejce

Filip Veselý MRE

Filip Veselý MRE

Hlídací pes

Chcete dostávat emailem podobné nabídky pronájmu obchodních prostor v Hradci Králové?

Podobné nemovitosti