Prodej chaty, Lešany, 45 m2 (ID: 2541947)

Lešany, Břežany

Rezervováno
3 190 000 Kč /za nemovitost HYPOTÉKA od 14 257 Kč /za měsíc
Exkluzivní partneři v Lešanech

Informace k domu

Toužíte po místě, kde načerpáte energii, obklopeni přírodou a přitom s výbornou dostupností do Prahy?

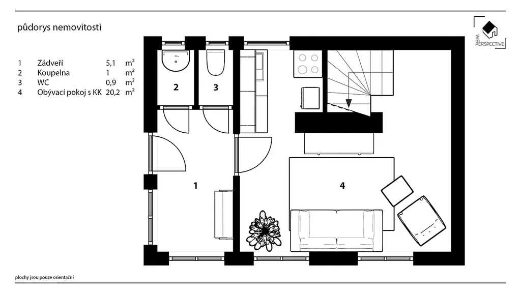
Pak pro vás máme ideální nabídku zděná chata 2+kk o užitné ploše 45 m, nacházející se v klidné lokalitě Břežany u Lešan.

Chata má zcela novou koupelnu vybavenou sprchovým koutem, WC a umyvadlem, což výrazně zvyšuje komfort jejího využívání a dává možnost pohodlného pobytu během celého roku.

Pozemek o rozloze 967 m nabízí dostatek prostoru pro zahradničení, relaxaci i rodinné aktivity. Vzrostlá zeleň a malebná přírodní scenérie vytvářejí harmonické prostředí pro odpočinek po celý rok.

Součástí areálu je také samostatný domek pro hosty, který může sloužit jako ubytování pro návštěvy, dílna, ateliér nebo klidné pracovní zázemí.

Chata je vybavena elektrickými přímotopy a bojlerem, takže nabízí plnohodnotné a komfortní využití i v chladnějších měsících.

Lokalita patří mezi vyhledávané oblasti jen pár kroků od řeky Sázavy, která láká k procházkám, cyklistice, rybaření i vodním sportům.

Výhody pozemku dle schváleného územního plánu (plocha rekreace R):
Možnost 2 nadzemních podlaží + obytné podkroví
Celkem lze vytvořit až 240 m podlahové plochy
Maximální výška stavby 6 m k římsové hraně od terénu
Zastavěnost pozemku max. 20 % (cca 193 m)
Zeleň minimálně 65 % plochy klid a soukromí zajištěno
Doplňkové stavby povoleny např. zahradní domek, dílna, altán nebo objekt pro hosty

Výborná investice vhodné jak pro rekreaci, tak pro budoucí trvalé bydlení

Výborná dostupnost:
Týnec nad Sázavou (3 km) obchody, školy, zdravotnická zařízení
Benešov (13 km) okresní město s kompletní občanskou vybaveností
Dálnice D1 rychlé spojení do Prahy (cca 35 km)
V okolí také autobusová doprava

Neváhejte přijďte se osobně přesvědčit o kouzlu této nemovitosti.

Parametry domu

Stav
Rezervováno
Cena
3 190 000 Kč /za nemovitost Spočítat hypotéku
Aktualizováno
26. 12. 2025
Adresa
Lešany, Břežany
ID
124
Stavba
Cihlová
Stav objektu
Dobrý
Vybaveno
Ano
Druh objektu
Samostatný
Lokalita objektu
Klidná část obce
Užitná plocha
45 m2
Zastavěná plocha
45 m2
Podlahová plocha
50 m2
Plocha pozemku
967 m2
Plocha zahrady
922 m2
Elektřina
230V, 400V
Odpad
Jímka
Topení
Lokální tuhá paliva, Lokální elektrické
Komunikace
Zpevněná
Telekomunikace
Satelit
Doprava
Autobus
Voda
Místní zdroj vody, Studna
Topné těleso
Přímotop, Krbová kamna
Sklep
Bezbarierový přístup
Bazén

Kontaktovat makléře

Máte zájem o tento dům?

Tímto, v souladu s nařízením Evropského parlamentu a Rady (EU) 2016/679, v platném znění, prohlašuji, že mi je alespoň 16 let a uděluji tak svůj souhlas se zpracováním zadaných údajů (jméno, telefon, e-mail, ip adresa) společnosti B3 Technology, s.r.o., IČ: 07330600, se sídlem Novostavby 126/23, 435 11 Lom (správce dat), za účelem předání dotazu z tohoto formuláře Vámi vybranému inzerentovi a zpětného kontaktování mé osoby. Osobní údaje bude správce zpracovávat manuálně i automaticky přímo prostřednictvím svých zaměstnanců. Informace předané tímto formulářem budou uloženy v databázi správce maximálně po dobu 10 let. Odvolání souhlasu s uložením a zpracováním poskytnutých dat lze e-mailem na info@vitio.cz. V případě podezření na neoprávněné použití Vámi poskytnutých údajů máte právo předat podnět k šetření Úřadu pro ochranu osobních údajů. Více informací
Chystáte se prodat nemovitost?
Pomůžeme Vám!

Inzerát si prohlédlo 0 lidí

Prodejce

Irena  Trojanová

Irena Trojanová

Hlídací pes

Chcete dostávat emailem podobné nabídky prodeje chat v Lešanech (okr. Benešov)?

Podobné nemovitosti