Pronájem bytu 3+kk, Písek, Alšovo nám., 150 m2

Alšovo nám., Písek, Vnitřní Město

25 000 Kč /za měsíc Získejte výhodnou HYPOTÉKU
Exkluzivní partneři v Písku

Výkup a prodej starého nábytku

Pojištění a finance

Informace k bytu

Pronájem luxusního bytu 3+kk v centru Písku!

Cestou do práce si dát kávu na náměstí, odpoledne se projít po nákupech a večer zůstat na skleničku s přáteli… Chcete bydlet přímo v srdci města a mít všechno na dosah? Na Alšově náměstí čeká úplně nový byt a vy můžete být prvními nájemníky.

Nájemné: 25.000,-- Kč/měsíc
Kauce: 50.000,-- Kč
Záloha za energie: bude dodatečně stanovena
Odměna RK: 25.000,-- Kč + DPH
Adresa: Alšovo nám. 178, Písek

Volné: možnost ihned

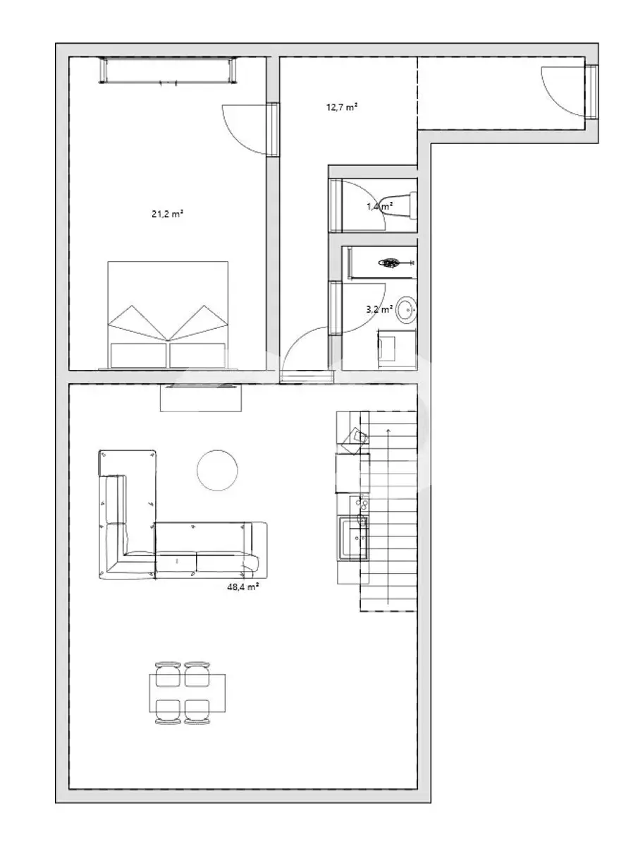
Mezonetový byt 3+kk s výměrou 150 m² vás okouzlí vysokými stropy s trámy a chytře využitým prostorem. Ve spodní části najdete obývák s kuchyňskou linkou šikovně umístěnou pod schodištěm. Dále je tu koupelna se sprchovým koutem a místem na pračku, samostatné WC a první ložnice. Po schodech vystoupáte do ložnice o velikosti skoro 26 m² se šatnou a vlastní koupelnou s vanou a WC.

Byt jsou součástí půdní vestavby historického domu. Byl kompletně nově vystavěn a zkolaudován v roce 2025 a vše je tu jako ze škatulky. Moderní kuchyň, stylová koupelna, kvalitní podlahy, záplavy světla… Stačí se jen nastěhovat a začít si užívat pohodlí života v nejlepší písecké lokalitě.

Technické parametry:
V bytě jsou nové rozvody elektřiny, vody a vytápění. Kuchyň je vybavená novou troubou a varnou deskou. Kvalitní střešní okna vám zajistí klidný spánek i příjemné účty za energie. K bytu si můžete pronajmout také parkovací stání.

Na Alšově náměstí budete mít veškerou vybavenost jako na dlani. Pár kroků do kavárny, na oběd do restaurace i na příjemnou procházku k Otavě. A až budete potřebovat vyrazit třeba na větší nákup do hypermarketu, na zastávku to máte 4 minuty.

Pronajímatel si vyhrazuje právo vybrat nájemce na základě jím zvolených kritérií.

Parametry bytu

Cena
25 000 Kč /za měsíc
Aktualizováno
5. 4. 2026
Adresa
Alšovo nám., Písek, Vnitřní Město
ID
0125
Stavba
Smíšená
Stav objektu
Velmi dobrý
Patro
3.
Lokalita objektu
Centrum obce
Vlastnictví
Osobní
Užitná plocha
150 m2
Třída energetické náročnosti
G - Mimořádně nehospodárná
Výtah
Bezbarierový přístup

Kontaktovat makléře

Máte zájem o tento byt?

Tímto, v souladu s nařízením Evropského parlamentu a Rady (EU) 2016/679, v platném znění, prohlašuji, že mi je alespoň 16 let a uděluji tak svůj souhlas se zpracováním zadaných údajů (jméno, telefon, e-mail, ip adresa) společnosti B3 Technology, s.r.o., IČ: 07330600, se sídlem Novostavby 126/23, 435 11 Lom (správce dat), za účelem předání dotazu z tohoto formuláře Vámi vybranému inzerentovi a zpětného kontaktování mé osoby. Osobní údaje bude správce zpracovávat manuálně i automaticky přímo prostřednictvím svých zaměstnanců. Informace předané tímto formulářem budou uloženy v databázi správce maximálně po dobu 10 let. Odvolání souhlasu s uložením a zpracováním poskytnutých dat lze e-mailem na info@vitio.cz. V případě podezření na neoprávněné použití Vámi poskytnutých údajů máte právo předat podnět k šetření Úřadu pro ochranu osobních údajů. Více informací
Chystáte se prodat nemovitost?
Pomůžeme Vám!
Theleadway banner

Inzerát si prohlédlo 25 lidí

Prodejce

Růžena Vlčková

Růžena Vlčková

Hlídací pes

Chcete dostávat emailem podobné nabídky pronájmu bytů 3+kk v Písku?

Podobné nemovitosti