Pronájem bytu 4+1, Praha - Střešovice, Střešovická, 132 m2

Střešovická, Praha, Střešovice

35 000 Kč /za měsíc Získejte výhodnou HYPOTÉKU
Exkluzivní partneři v Praze 6

Stěhovací služby

Výkup a prodej starého nábytku

Informace k bytu

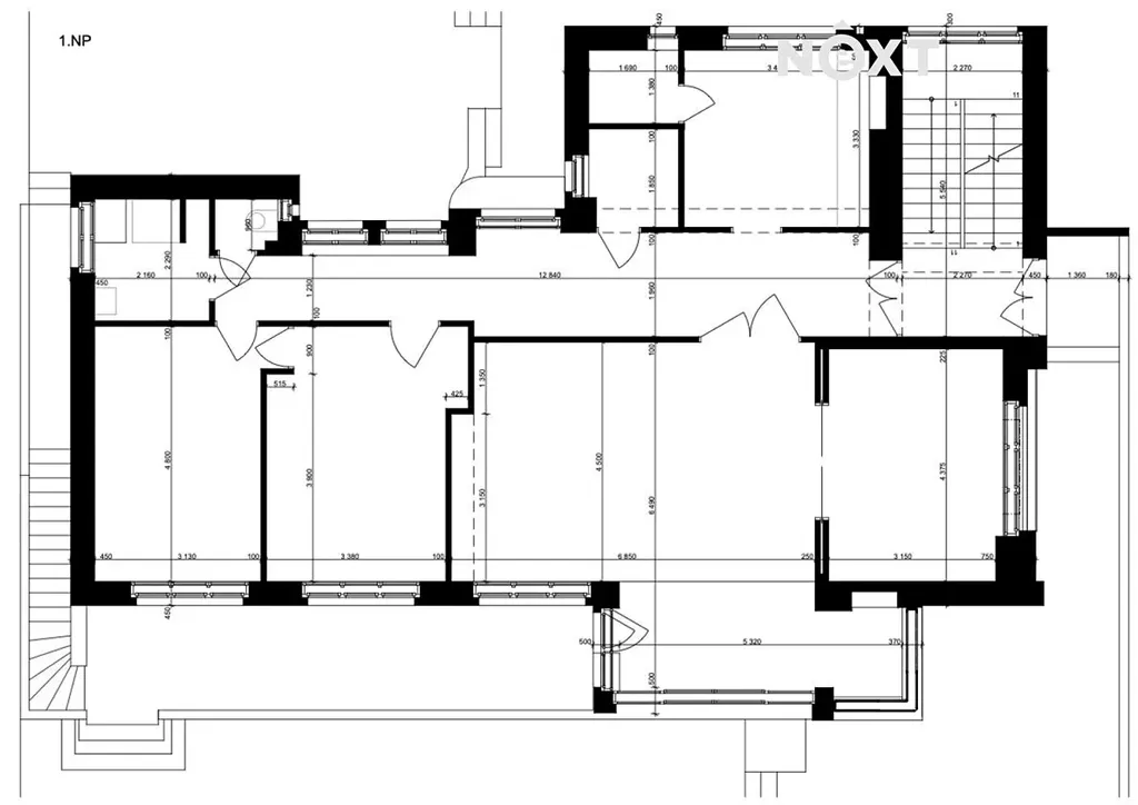
Nabízíme k pronájmu krásný jednopodlažní prostorný byt ve vile ve Střešovicích o dispozici 4+1 (o výměře cca 132 m2) K bytu patří také venkovní terasa o výměře cca 20 m2, možnost parkování na pozemku u vily a také zahrada se vzrostlými stromy o výměře 683 m2, která nabízí příjemná zákoutí k relaxaci. Vila ve Střešovické ulici má 3 nadzemní podlaží a 1 podzemní podlaží, přičemž v každém podlaží je 1 samostatný byt. To zajišťuje všem obyvatelům domu soukromí a klid. Byt sestává z dlouhé chodby s vestavěnými skříněmi (cca 22,25 m2), ze které jsou přístupné všechny místnosti. Prostorný obývací pokoj se zákoutím proskleného arkýře (cca 41,25 m2), který nabízí příjemnou odpočinkovou zónu s křeslem, kávou a dobrou knihou. Z obýváku je přístupný také salonek (cca 13,78 m2), který od tohoto pokoje oddělují dvoukřídlé dřevěné dveře. Z chodby jsou pak přístupné další 2 pokoje (cca 16,22 m2 a 15,02 m2). Dále pak koupelna (cca 5 m2), samostatné WC (cca 1 m2), komora (cca 3,13 m2) a kuchyně (cca 11,62 m2) se spíží (2,33 m2). V chodbě je pak také francouzské okno orientované do zahrady. Okna bytu jsou orientována jak směrem do ulice, tak i do zahrady. Byt je velmi hezky řešený. Vytápění je zajištěno plynovým kotlem. Měsíční nájemné činí 35.000 Kč. Zálohy na veškeré služby a energie (elektřina a plyn) činí 6 800 Kč za 4 osoby za měsíc. Náklady na energie zůstávají napsány na majitele bytu a nájemník tak bude platit nastavené zálohy a vždy jednou za rok proběhne vyúčtování, ze které bude zřejmá skutečná spotřeba. Vratná kauce ve výši 35.000 Kč. Provize za zprostředkování pronájmu je 35.000 Kč vč. DPH.
Jedna z nejžádanějších rezidenčních lokalit v Praze. Disponuje dobrou dopravní dostupností. Tramvajová zastávka Ořechovka je vzdálena cca 300 m. Autem dojedete na letiště Václava Havla za 13 minut a do obchodního centra Bořislavka za 6 minut. V okolí najdete všechny typy škol - mateřské, základní, střední, vysoké, mezinárodní a také veškerou občanskou vybavenost jako poštu, supermarkety, ordinace lékařů, lékárny, kavárny a dětská hřiště. Pro komunikaci uvádějte evidenční číslo zakázky N115535.

Parametry bytu

Cena
35 000 Kč /za měsíc
Aktualizováno
23. 12. 2025
Adresa
Střešovická, Praha, Střešovice
ID
N115535
Stavba
Cihlová
Stav objektu
Velmi dobrý
Patro
1. z 3
Vybaveno
Částečně
Lokalita objektu
Rušná část obce
Vlastnictví
Osobní
Užitná plocha
132 m2
Třída energetické náročnosti
G - Mimořádně nehospodárná
Elektřina
230V
Plyn
Plynovod
Odpad
Veřejná kanalizace
Topení
Ústřední plynové
Komunikace
Betonová
Doprava
Silnice, MHD
Voda
Vodovod
Topné těleso
Radiátory
Zdroj topení
Plynový kotel
Zdroj teplé vody
Průtokový ohřívač
Terasa
Výtah
Bezbarierový přístup
Parkování

Kontaktovat makléře

Máte zájem o tento byt?

Tímto, v souladu s nařízením Evropského parlamentu a Rady (EU) 2016/679, v platném znění, prohlašuji, že mi je alespoň 16 let a uděluji tak svůj souhlas se zpracováním zadaných údajů (jméno, telefon, e-mail, ip adresa) společnosti B3 Technology, s.r.o., IČ: 07330600, se sídlem Novostavby 126/23, 435 11 Lom (správce dat), za účelem předání dotazu z tohoto formuláře Vámi vybranému inzerentovi a zpětného kontaktování mé osoby. Osobní údaje bude správce zpracovávat manuálně i automaticky přímo prostřednictvím svých zaměstnanců. Informace předané tímto formulářem budou uloženy v databázi správce maximálně po dobu 10 let. Odvolání souhlasu s uložením a zpracováním poskytnutých dat lze e-mailem na info@vitio.cz. V případě podezření na neoprávněné použití Vámi poskytnutých údajů máte právo předat podnět k šetření Úřadu pro ochranu osobních údajů. Více informací
Chystáte se prodat nemovitost?
Pomůžeme Vám!

Inzerát si prohlédlo 5 lidí

Prodejce

Ing. Petra  Lebl Bínová

Ing. Petra Lebl Bínová

Hlídací pes

Chcete dostávat emailem podobné nabídky pronájmu bytů 4+1 v Praze 6?

Podobné nemovitosti