Pronájem bytu 3+kk, Praha - Vinohrady, Lucemburská, 70 m2

Lucemburská, Vinohrady - Praha 3

30 300 Kč /za měsíc Získejte výhodnou HYPOTÉKU

(vratná jistota, náklady na bydlení 5.200 Kč včetně elektřiny, poplatek za podnájem)

Exkluzivní partneři v Praze 3

Stěhovací služby

Výkup a prodej starého nábytku

Informace k bytu

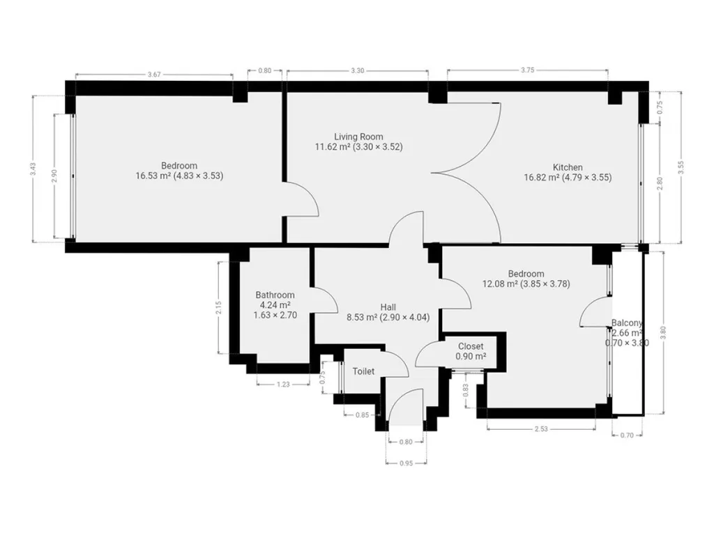
K dlouhodobému podnájmu nabízíme prosluněný byt po celkové rekonstrukci, o dispozici 3+kk ve vyhledávané lokalitě Praha - Vinohrady. Byt o podlahové ploše 70 m2 se nachází ve čtvrtém patře cihlového domu s výtahem.

Byt se nabízí částečně vybavený. Nová kuchyně disponuje lednicí, elektrickou troubou, indukční varnou deskou, myčkou a digestoří. Dále jídelním stolem s židlemi a křeslem. Obývací pokoj, který je možné plně otevřít a propojit s kuchyní, disponuje sedačkou a křeslem, konferenčním stolem a tv stolkem. Hlavní ložnice disponuje starší komodou a je situovaná do klidného vnitrobloku. Druhá ložnice zůstává nevybavená, má navíc balkon do ulice. Nadstandardní koupelna disponuje vanou, závěsnou sanitou a pračkou. Toaleta je samostatně. V předsíni se nachází prostorná komora.

Vytápění a ohřev vody je zde dálkově, v bytě není plyn.

V okolí domu najdeme veškerou potřebnou infrastrukturu. Metro Jiřího z Poděbrad se nachází 3 minuty pěšky.

Byt je volný k nastěhování od 1.2.2026. Majitel preferuje zájemce bez domácích mazlíčků.

Uvedena energetická kategorie G, jelikož nemáme k dispozici PENB.

Byt pronajímá Ideální nájemce - služba, se kterou budete bydlet bezstarostně a za férových podmínek. Když se něco přihodí, k dispozici jsou správci, kteří s vámi vše vyřeší. Pomůžeme s veškerou administrativou, s nastavením plateb a zajistíme vám speciální pojištění. Pojďte bydlet s námi!

Parametry bytu

Cena
30 300 Kč /za měsíc
Poznámka k ceně
vratná jistota, náklady na bydlení 5.200 Kč včetně elektřiny, poplatek za podnájem
Aktualizováno
23. 12. 2025
Adresa
Lucemburská, Vinohrady - Praha 3
ID
N3436
Stavba
Cihlová
Stav objektu
Velmi dobrý
Patro
4. z 6
Vybaveno
Částečně
Typ objektu
Patrový
Lokalita objektu
Klidná část obce
Vlastnictví
Osobní
Užitná plocha
70 m2
Podlahová plocha
70 m2
Elektřina
230V
Topení
Ústřední dálkové
Balkon
Výtah

Kontaktovat makléře

Máte zájem o tento byt?

Tímto, v souladu s nařízením Evropského parlamentu a Rady (EU) 2016/679, v platném znění, prohlašuji, že mi je alespoň 16 let a uděluji tak svůj souhlas se zpracováním zadaných údajů (jméno, telefon, e-mail, ip adresa) společnosti B3 Technology, s.r.o., IČ: 07330600, se sídlem Novostavby 126/23, 435 11 Lom (správce dat), za účelem předání dotazu z tohoto formuláře Vámi vybranému inzerentovi a zpětného kontaktování mé osoby. Osobní údaje bude správce zpracovávat manuálně i automaticky přímo prostřednictvím svých zaměstnanců. Informace předané tímto formulářem budou uloženy v databázi správce maximálně po dobu 10 let. Odvolání souhlasu s uložením a zpracováním poskytnutých dat lze e-mailem na info@vitio.cz. V případě podezření na neoprávněné použití Vámi poskytnutých údajů máte právo předat podnět k šetření Úřadu pro ochranu osobních údajů. Více informací
Chystáte se prodat nemovitost?
Pomůžeme Vám!

Inzerát si prohlédlo 0 lidí

Prodejce

Miloslava Kačerová

Miloslava Kačerová

Hlídací pes

Chcete dostávat emailem podobné nabídky pronájmu bytů 3+kk v Praze 3?

Podobné nemovitosti