Pronájem bytu 3+1, Praha, Kaňkovského, 65 m2

Kaňkovského, Praha 8

25 000 Kč /za měsíc Získejte výhodnou HYPOTÉKU
Exkluzivní partneři v Praze 8

Stěhovací služby

Výkup a prodej starého nábytku

Informace k bytu

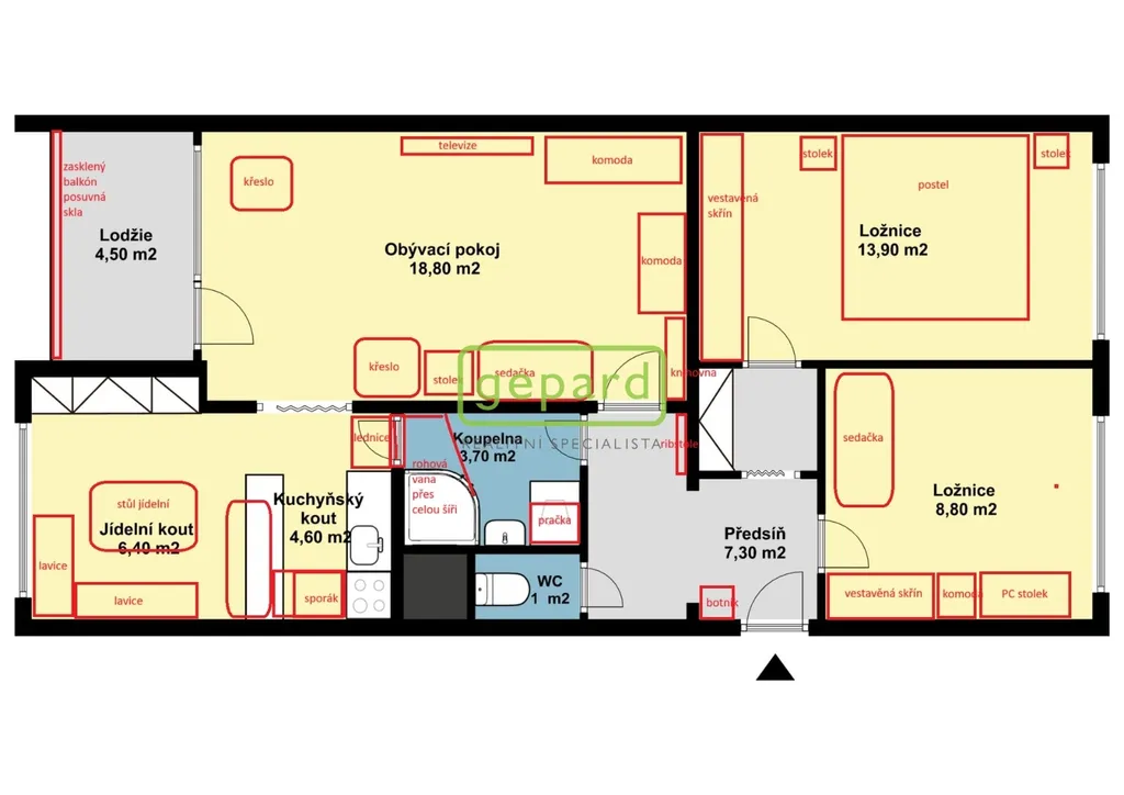
Realitní společnost Gepard Vám nabízí ve výhradním zastoupení majitele k pronájmu byt 3+1 o podlahové ploše 64,4 m2 se zasklenou lodžií o výměře 4,5 m2 v klidné části Kobylis, Praha 8, ulice Kaňkovského. Byt je ve velmi dobrém stavu, koupelna je po rekonstrukci, bytové jádro je zděné. Podlahové krytiny tvoří linoleum, dlažba a koberce. Jsou zde dva samostatné neprůchozí pokoje s výhledem do zeleně o velikostech 13,9 a 8,8 m2. Obývací pokoj měří 18,8 m2, kuchyně s jídelnou 11 m2. Vstupní předsíň s chodbou má 7,2 m2, koupelna 3,7 m2 a samostatná toaleta 1 m2. Dům již prošel revitalizací, jsou vyměněná okna, nová střecha, zateplená fasáda, nový výtah a podlahové krytiny ve společných prostorách. Tepelnou pohodu vylepšují tepelně izolační folie na oknech, na západní straně jsou navíc nainstalované předokenní rolety. Byt se pronajímá s kompletním vybavením, po dohodě s majitelem je však možné některé vybavení odstranit a vybavit vlastním. Přímo před domem se nachází velký park, dětské dopravní hřiště a školka, 250 m začíná ďáblický háj, 100 m od domu koupaliště Ládví které se v zimě změní na veřejné kluziště, 250 m tenisové kurty, 50 m zastávka autobusu, 500 m stanice tramvaje Kyselova, 800 m stanice metra Ládví. Kompletní občanská vybavenost v místě vč. škol, školek, lékáren, zdravotního střediska a nákupních možností. Měsíční nájemné činí 25.000 Kč, zúčtovatelné zálohy na služby 5.500 Kč/2 osoby. Vratná kauce ve výši dvou měsíčních nájmů (50.000 Kč), provize ve výši nájemného vč. služeb (30.500 Kč). Byt je vymalovaný, uklizený profesionální úklidovou firmou a připravený k okamžitému pronájmu. První kolo prohlídek se koná dne 29. 12. 2025. Pro domluvení termínu prohlídky vyplňte odpovědní formulář pod inzerátem nebo zašlete email na jakub.krejza@gpre.cz

Parametry bytu

Cena
25 000 Kč /za měsíc
Aktualizováno
22. 12. 2025
Adresa
Kaňkovského, Praha 8
ID
11868
Stavba
Panelová
Stav objektu
Velmi dobrý
Patro
8. z 14
Vybaveno
Ano
Lokalita objektu
Klidná část obce
Vlastnictví
Osobní
Užitná plocha
65 m2
Podlahová plocha
69 m2
Třída energetické náročnosti
G - Mimořádně nehospodárná
Elektřina
230V
Plyn
Plynovod
Odpad
Veřejná kanalizace
Komunikace
Betonová, Asfaltová, Zpevněná
Doprava
Dálnice, Silnice, MHD, Autobus
Voda
Vodovod
Lodžie

Kontaktovat makléře

Máte zájem o tento byt?

Tímto, v souladu s nařízením Evropského parlamentu a Rady (EU) 2016/679, v platném znění, prohlašuji, že mi je alespoň 16 let a uděluji tak svůj souhlas se zpracováním zadaných údajů (jméno, telefon, e-mail, ip adresa) společnosti B3 Technology, s.r.o., IČ: 07330600, se sídlem Novostavby 126/23, 435 11 Lom (správce dat), za účelem předání dotazu z tohoto formuláře Vámi vybranému inzerentovi a zpětného kontaktování mé osoby. Osobní údaje bude správce zpracovávat manuálně i automaticky přímo prostřednictvím svých zaměstnanců. Informace předané tímto formulářem budou uloženy v databázi správce maximálně po dobu 10 let. Odvolání souhlasu s uložením a zpracováním poskytnutých dat lze e-mailem na info@vitio.cz. V případě podezření na neoprávněné použití Vámi poskytnutých údajů máte právo předat podnět k šetření Úřadu pro ochranu osobních údajů. Více informací
Chystáte se prodat nemovitost?
Pomůžeme Vám!

Inzerát si prohlédlo 0 lidí

Prodejce

Mgr. Jakub Krejza

Mgr. Jakub Krejza

Hlídací pes

Chcete dostávat emailem podobné nabídky pronájmu bytů 3+1 v Praze 8?

Podobné nemovitosti