Pronájem skladu, Praha - Záběhlice, Zakrytá, 260 m2

Zakrytá, Praha 4

64 500 Kč /za měsíc Získejte výhodnou HYPOTÉKU

(+ zálohy na služby a energie)

Exkluzivní partneři v Praze 4

Stěhovací služby

Výkup a prodej starého nábytku

Informace k nemovitosti

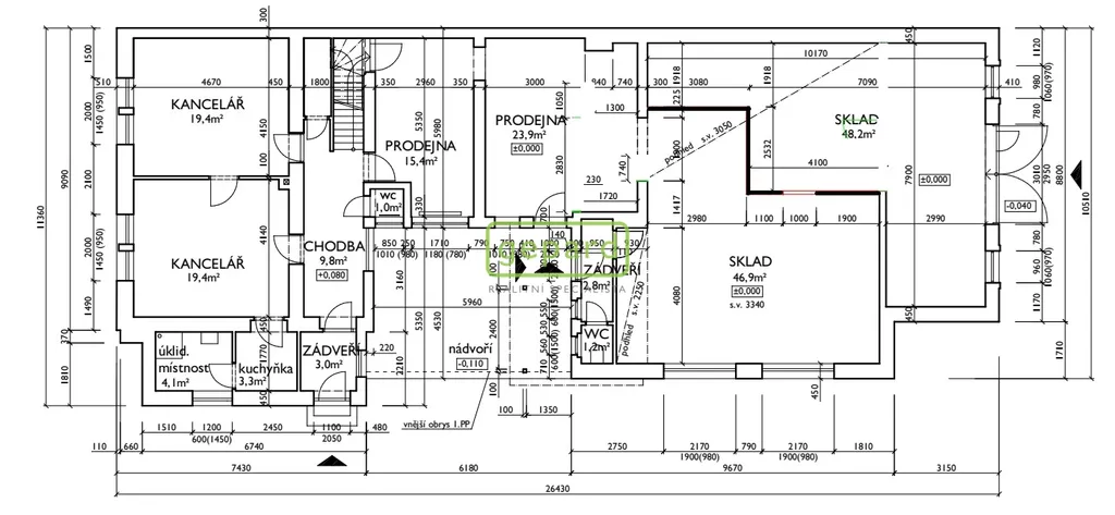
Realitní společnost Gepard si Vám dovoluje nabídnout k pronájmu skladově-administrativní budovu nacházející se na adrese Zakrytá, Praha 4, Záběhlice.
Celková užitná plocha objektu činí přibližně 260 m² a je rozdělena na skladové a kancelářské zázemí, což umožňuje efektivní kombinaci administrativního provozu se skladováním či lehkou logistikou.
Objekt je vhodný zejména pro obchodní společnosti, e-shopy, servisní firmy, případně jako zázemí pro menší distribuční centrum.
Budova nabízí praktické dispoziční řešení, dobrý přístup pro zásobování a možnost flexibilního využití dle potřeb nájemce. Lokalita zajišťuje dobrou dopravní dostupnost v rámci Prahy a napojení na hlavní dopravní tahy.

Technické a provozní parametry:
• kombinace skladových a kancelářských prostor
• neomezené parkování přímo u objektu
• praktické dispoziční řešení umožňující flexibilní využití prostor dle potřeb nájemce
• vytápění zajištěno kotlem na LTO
• k dispozici kuchyňka
• sociální zázemí (WC)

V případě Vašeho zájmu Vám rádi poskytneme podrobnější informace, případně domluvíme osobní prohlídku objektu.

Parametry nemovitosti

Cena
64 500 Kč /za měsíc
Poznámka k ceně
+ zálohy na služby a energie
Aktualizováno
21. 12. 2025
Adresa
Zakrytá, Praha 4
ID
11872
Stavba
Smíšená
Stav objektu
Velmi dobrý
Typ objektu
Přízemní
Užitná plocha
260 m2
Zastavěná plocha
225 m2
Podlahová plocha
670 m2
Plocha zahrady
670 m2
Třída energetické náročnosti
G - Mimořádně nehospodárná
Elektřina
400V
Plyn
Plynovod
Odpad
Veřejná kanalizace
Komunikace
Asfaltová
Voda
Vodovod
Převod do OV
Parkování

Kontaktovat makléře

Máte zájem o tuto nemovistost?

Tímto, v souladu s nařízením Evropského parlamentu a Rady (EU) 2016/679, v platném znění, prohlašuji, že mi je alespoň 16 let a uděluji tak svůj souhlas se zpracováním zadaných údajů (jméno, telefon, e-mail, ip adresa) společnosti B3 Technology, s.r.o., IČ: 07330600, se sídlem Novostavby 126/23, 435 11 Lom (správce dat), za účelem předání dotazu z tohoto formuláře Vámi vybranému inzerentovi a zpětného kontaktování mé osoby. Osobní údaje bude správce zpracovávat manuálně i automaticky přímo prostřednictvím svých zaměstnanců. Informace předané tímto formulářem budou uloženy v databázi správce maximálně po dobu 10 let. Odvolání souhlasu s uložením a zpracováním poskytnutých dat lze e-mailem na info@vitio.cz. V případě podezření na neoprávněné použití Vámi poskytnutých údajů máte právo předat podnět k šetření Úřadu pro ochranu osobních údajů. Více informací
Chystáte se prodat nemovitost?
Pomůžeme Vám!

Inzerát si prohlédlo 0 lidí

Prodejce

Marek Doležal

Marek Doležal

Hlídací pes

Chcete dostávat emailem podobné nabídky pronájmu skladů v Praze 4?

Podobné nemovitosti