Prodej rodinného domu, Otín, 80 m2 (ID: 2539158)

Otín, Geršov

6 990 000 Kč /za nemovitost HYPOTÉKA od 31 241 Kč /za měsíc
Exkluzivní partneři v Otíně

Informace k domu

Prodej novostavby 3+kk, 80 m², Geršov – klidné bydlení kousek od D1.

Nabízíme k prodeji jednotky v nově budovaných rodinných domech v obci Geršov, již nyní v předprodeji novostavby 3+kk, 80 m², Geršov – klidné bydlení kousek od D1.

Nabízíme k prodeji jednotky v nově budovaných rodinných domech v obci Geršov, v klidné rovinaté části obce, pouhé 3 km od Měřína a nájezdu na dálnici D1. Dostupnost do Jihlavy 15 min, do Velkého Meziříčí 15 min, do Brna 35 min. Ideální kombinace klidného bydlení na venkově s rychlým spojením do města.
Dispozice a parametry
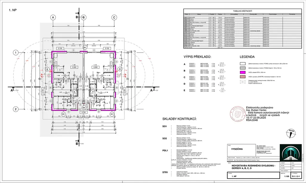
Každá jednotka má dispozici 3+kk o celkové ploše přibližně 80 m².
K jednotce náleží pozemek cca 250 m² (velikost se může lišit dle konkrétního umístění).
Technické provedení
• Tepelné čerpadlo – úsporné vytápění domu
• Domácí ČOV – nízké provozní náklady
• Vinylové podlahy v obytných místnostech
• Koupelna a WC – keramický obklad a dlažba v moderním stylu
• Možnost volby barvy obkladů, dlažby a podlah podle vašeho vkusu
Stav projektu
Stavební povolení již vydáno, výstavba probíhá v letech 2026–2027.
Práce na základech již zahájeny vytýčením.
K dispozici jsou půdorysy, pohledy, situace a dokumentace ke stavebnímu povolení.
Další obrázky představují orientační vizualizace možného dokončení.
Cena a financování
• Cena jednotky: 6 990 000 Kč
• Záloha při rezervaci: 1 000 000 Kč

Parametry domu

Cena
6 990 000 Kč /za nemovitost Spočítat hypotéku
Aktualizováno
21. 12. 2025
Adresa
Otín, Geršov
Stavba
Cihlová
Stav objektu
Novostavba
Užitná plocha
80 m2
Plocha pozemku
250 m2
Třída energetické náročnosti
A - Mimořádně úsporná
Elektřina
230V
Odpad
ČOV pro celý objekt
Komunikace
Dlážděná
Zdroj topení
Tepelné čerpadlo
Zdroj teplé vody
Tepelné čerpadlo
Parkování

Kontaktovat makléře

Máte zájem o tento dům?

Tímto, v souladu s nařízením Evropského parlamentu a Rady (EU) 2016/679, v platném znění, prohlašuji, že mi je alespoň 16 let a uděluji tak svůj souhlas se zpracováním zadaných údajů (jméno, telefon, e-mail, ip adresa) společnosti B3 Technology, s.r.o., IČ: 07330600, se sídlem Novostavby 126/23, 435 11 Lom (správce dat), za účelem předání dotazu z tohoto formuláře Vámi vybranému inzerentovi a zpětného kontaktování mé osoby. Osobní údaje bude správce zpracovávat manuálně i automaticky přímo prostřednictvím svých zaměstnanců. Informace předané tímto formulářem budou uloženy v databázi správce maximálně po dobu 10 let. Odvolání souhlasu s uložením a zpracováním poskytnutých dat lze e-mailem na info@vitio.cz. V případě podezření na neoprávněné použití Vámi poskytnutých údajů máte právo předat podnět k šetření Úřadu pro ochranu osobních údajů. Více informací
Chystáte se prodat nemovitost?
Pomůžeme Vám!

Inzerát si prohlédlo 0 lidí

Prodejce

Jan Havlíček

Jan Havlíček

Hlídací pes

Chcete dostávat emailem podobné nabídky prodeje rodinných domů v Otíně (okr. Žďár nad Sázavou)?

Podobné nemovitosti