Remax Power 2

Pronájem bytu 3+1, Příbram - Příbram II, Fibichova, 120 m2

Fibichova, Příbram II

Rezervováno
20 400 Kč /za měsíc Získejte výhodnou HYPOTÉKU

(+služby 4.400,-Kč/2-3os, vše,včetně elekřiny, Kauce 35.000Kč, Provize RK 15.000Kč)

Exkluzivní partneři v Příbrami

Revize elektrických zařízení

Informace k bytu

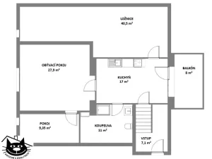
Nabízíme nezávaznou prohlídku nového, velkého a slunného bytu 3+1 s prostorným balkónem a se samostatným vchodem. Toto velkoryse pojaté podkroví rodinného domu, které se nachází ve vilové čtvrti v Příbrami II ve Fibichově ulici poblíž Svaté Hory, je určené k prvnímu nájmu. Má obytnou plochu o nadstandardní velikosti 113 m2 a jeho centrem je kuchyň (17 m2) s novou kuchyňskou linkou včetně spotřebičů (varná el. deska, horkovzdušná trouba, digestoř, myčka). Z kuchyně se vstupuje na balkón (8 m2), vhodný k letnímu grilování či klidnému posezení, a do obývacího pokoje (28 m2), na který navazuje další místnost (9,3 m2). Z centrální kuchyně je přístupná též ložnice (40,5 m2) s prostorem vhodným pro šatnu a světlá koupelna s moderním keramickým obkladem (11 m2). Fibichova ulice se nachází v širším centru města (10 min chůze), orientovaném směrem na Prahu (bus 5 min chůze, dálnice 5 min jízdy), MHD ve vedlejší ulici. Parkování před domem. Tento moderní byt je na zbytku domu téměř nezávislý, je elektrifikován přes samostatný elektroměr, vytápění a ohřev vody zajišťuje elektrokotel pouze pro toto podlaží, spotřebu vody eviduje podružný vodoměr. Podlahy vinil a dlažba, plastová okna s dvojsklem, střešní s trojsklem. Zálohy kalkulovány na 3 osoby včetně záloh na elektřinu, na vodné a stočné. Byt nekuřácký, bez zvířat. V případě pronájmu cizinci nutná domluva v českém jazyce bez prostředníka. Máme zájem o dlouhodobý, pohodový a bezproblémový nájemní vztah respektující naprosté soukromí. K dispozici tv. anténa - využití zdarma. Internet vzduchem, poplatky nejsou zahrnuty v nájmu. Pronajímatel umožní uložení například jízdních kol v suterénu domu. S ohledem na schodiště a celkovou dispozici domu není byt vhodný pro rodinu s malými dětmi. Řádná smlouva o nájmu, vratná kauce 35 000 Kč, provize RK 15 000 Kč. Doplňující informace či případnou prohlídku zajistí RK, spravující výhradně tuto nemovitost. Nabízíme férové a slušné jednání, totéž očekáváme.

Parametry bytu

Stav
Rezervováno
Cena
20 400 Kč /za měsíc
Poznámka k ceně
+služby 4.400,-Kč/2-3os, vše,včetně elekřiny, Kauce 35.000Kč, Provize RK 15.000Kč
Aktualizováno
22. 1. 2026
Adresa
Fibichova, Příbram II
ID
N00301
Stavba
Cihlová
Stav objektu
Novostavba
Patro
2. z 2
Vybaveno
Ano
Lokalita objektu
Klidná část obce
Vlastnictví
Osobní
Užitná plocha
120 m2
Podlahová plocha
113 m2
Třída energetické náročnosti
C - Úsporná
Elektřina
400V
Odpad
Veřejná kanalizace
Telekomunikace
Ostatní
Doprava
Vlak, Dálnice, Silnice, MHD, Autobus
Voda
Vodovod
Balkon
Sklep
Bezbarierový přístup
Parkování

Kontaktovat makléře

Máte zájem o tento byt?

Tímto, v souladu s nařízením Evropského parlamentu a Rady (EU) 2016/679, v platném znění, prohlašuji, že mi je alespoň 16 let a uděluji tak svůj souhlas se zpracováním zadaných údajů (jméno, telefon, e-mail, ip adresa) společnosti B3 Technology, s.r.o., IČ: 07330600, se sídlem Novostavby 126/23, 435 11 Lom (správce dat), za účelem předání dotazu z tohoto formuláře Vámi vybranému inzerentovi a zpětného kontaktování mé osoby. Osobní údaje bude správce zpracovávat manuálně i automaticky přímo prostřednictvím svých zaměstnanců. Informace předané tímto formulářem budou uloženy v databázi správce maximálně po dobu 10 let. Odvolání souhlasu s uložením a zpracováním poskytnutých dat lze e-mailem na info@vitio.cz. V případě podezření na neoprávněné použití Vámi poskytnutých údajů máte právo předat podnět k šetření Úřadu pro ochranu osobních údajů. Více informací
Chystáte se prodat nemovitost?
Pomůžeme Vám!

Inzerát si prohlédlo 137 lidí

Prodejce

Bohumil Kocourek

Bohumil Kocourek

Hlídací pes

Chcete dostávat emailem podobné nabídky pronájmu bytů 3+1 v Příbrami?

Podobné nemovitosti