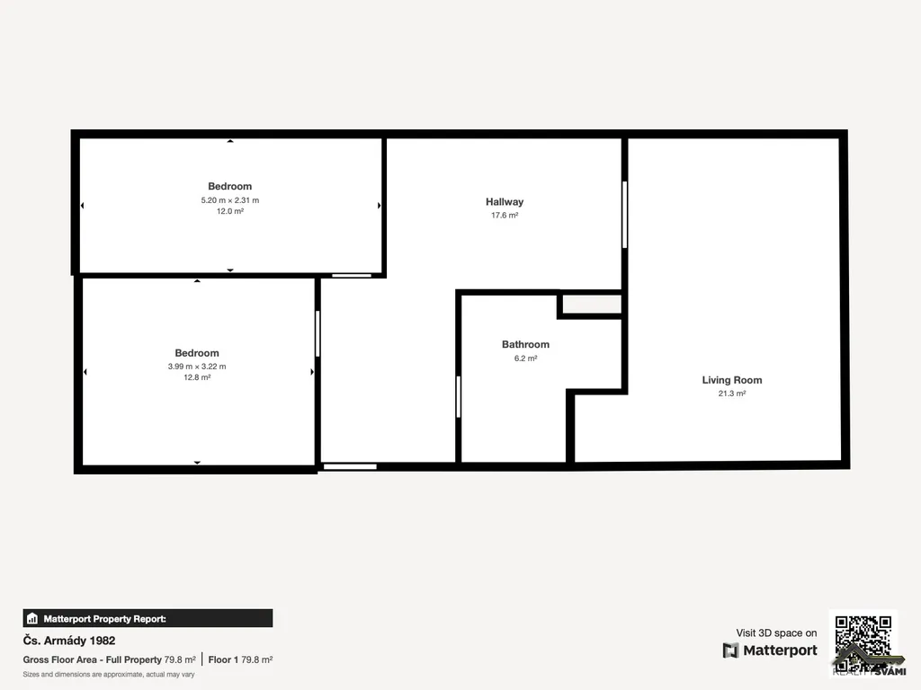
Pronájem bytu 3+1, Frýdek-Místek - Místek, Československé armády, 80 m2

Československé armády, Frýdek-Místek

17 990 Kč /za měsíc Získejte výhodnou HYPOTÉKU

(Plus služby 2720,-/měs, plus elektřina a plyn, kauce 2 měsíční nájmy, + provize RK, včetně právního servisu)

Exkluzivní partneři v Frýdku-Místku

Informace k bytu

Krásným místem pro život to u této nabídky jen začíná.

Vítejte na stránce nabídky pronájmu prostorného bytu 3+1 s velkým balkónem, umístěným v prvním patře bytového domu po revitalizaci.

Byt je připraven pro své nové nájemníky a jako takový prošel v minulostí kompletní rekonstrukcí, při které bylo dbáno na funkčnost a vzhled. Prostor bytu nabídne 3 samostatné neprůchozí pokoje, větší chodbu, kuchyni se všemi potřebnými spotřebiči, jako je myčka nádobí, mikrovlnná trouba, nebo i ta horkovzdušná. Potěší i plynová varná deska. Dále koupelnou, kde je velkorysý prostor díky spojení s WC a nechybí zde ani podlahové vytápění. Dominantou je velké zrcadlo a nechybí i prostorná vana.

No a co úložné prostory a vybavení?

Nechybí ani ty. Je zde umístěných několik skříní, manželská postel, nebo například jídelní stůl, či posezení na balkóně. Z elektrospotřebičů poté vše doplňují 2 televizory a v obývacím pokoji je na romantické zimní večery připraven funkční lihový krb.

A kde že tento světlý a prostorný byt nalezneme? Kousek od centra Místku a to znamená, že v okolí najdete veškerou občanskou vybavenost, ale i dopravní spojení. Školy a školky samosebou také.

Teď už jen chybí zavolat, nebo napsat a domluvit si prohlídku, ať můžete přednosti bytu vidět na vlastní oči. Ale spěchejte, byt je nachystán k bydlení a dlouho se v nabídce neohřeje.

Těším se na Vás u osobní prohlídky.

Parametry bytu

Cena
17 990 Kč /za měsíc
Poznámka k ceně
Plus služby 2720,-/měs, plus elektřina a plyn, kauce 2 měsíční nájmy, + provize RK, včetně právního servisu
Aktualizováno
9. 12. 2025
Adresa
Československé armády, Frýdek-Místek
ID
00618
Stavba
Smíšená
Stav objektu
Velmi dobrý
Patro
4. z 2
Vybaveno
Částečně
Druh objektu
V bloku
Lokalita objektu
Centrum obce
Vlastnictví
Osobní
Užitná plocha
80 m2
Třída energetické náročnosti
B - Velmi úsporná
Ukazatel energetické náročnosti
79 kWh/m2 za rok
Elektřina
230V
Plyn
Plynovod
Odpad
Veřejná kanalizace
Topení
Ústřední dálkové
Telekomunikace
Kabelová televize, Kabelové rozvody
Doprava
Dálnice, Silnice, MHD, Autobus
Voda
Vodovod
Balkon
Sklep
Výtah

Kontaktovat makléře

Máte zájem o tento byt?

Tímto, v souladu s nařízením Evropského parlamentu a Rady (EU) 2016/679, v platném znění, prohlašuji, že mi je alespoň 16 let a uděluji tak svůj souhlas se zpracováním zadaných údajů (jméno, telefon, e-mail, ip adresa) společnosti B3 Technology, s.r.o., IČ: 07330600, se sídlem Novostavby 126/23, 435 11 Lom (správce dat), za účelem předání dotazu z tohoto formuláře Vámi vybranému inzerentovi a zpětného kontaktování mé osoby. Osobní údaje bude správce zpracovávat manuálně i automaticky přímo prostřednictvím svých zaměstnanců. Informace předané tímto formulářem budou uloženy v databázi správce maximálně po dobu 10 let. Odvolání souhlasu s uložením a zpracováním poskytnutých dat lze e-mailem na info@vitio.cz. V případě podezření na neoprávněné použití Vámi poskytnutých údajů máte právo předat podnět k šetření Úřadu pro ochranu osobních údajů. Více informací
Chystáte se prodat nemovitost?
Pomůžeme Vám!

Inzerát si prohlédlo 1 lidí

Prodejce

Jiří Sváček

Jiří Sváček

Hlídací pes

Chcete dostávat emailem podobné nabídky pronájmu bytů 3+1 v Frýdku-Místku?

Podobné nemovitosti