Pronájem bytu 2+1, Ústí nad Labem, Dukelských hrdinů, 49 m2

Dukelských hrdinů, Ústí nad Labem, Bukov

13 500 Kč /za měsíc Získejte výhodnou HYPOTÉKU

(včetně DPH, včetně poplatků, + provize RK, včetně právního servisu)

Exkluzivní partneři v Ústí nad Labem

Okna a dveře

Rekonstrukce

Zámečnické práce

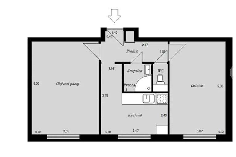
Informace k bytu

K pronájmu nabízím krásný byt po rekonstrukci ve Všebořicích, ul. Dukelských hrdinů.
Interiér zaujme vybroušenými parketami v kombinaci s vinylovou podlahou. Kuchyňská linka na míru je plně vybavená: myčka, plynový sporák, trouba, mikrovlnka i lednice.

Byt se nachází v 1. nadzemním podlaží v jedné z nejžádanějších lokalit Ústí – Dukelských hrdinů, Všebořice.
V blízkém okolí najdete Lidl, Kaufland, potraviny, zdravotní střediska, fitness i velkoobchod Tamda. Do centra města je to pár minut.

Finanční podmínky:

Nájemné: 13.500 Kč
Zálohy: 2.500 Kč + 500 Kč za další osobu
Kauce: 25.000 Kč
Provize RK: 9.990 Kč
Energie se přepíší na nájemníka

Majitel požaduje možnost uplatnit exekuční doložku – podpisy budou probíhat u notáře.

Parametry bytu

Cena
13 500 Kč /za měsíc
Poznámka k ceně
včetně DPH, včetně poplatků, + provize RK, včetně právního servisu
Aktualizováno
8. 12. 2025
Adresa
Dukelských hrdinů, Ústí nad Labem, Bukov
ID
00978
Stavba
Cihlová
Stav objektu
Velmi dobrý
Patro
1. z 4
Vybaveno
Částečně
Druh objektu
Samostatný
Lokalita objektu
Klidná část obce
Vlastnictví
Osobní
Užitná plocha
49 m2
Třída energetické náročnosti
C - Úsporná
Ukazatel energetické náročnosti
0.76 kWh/m2 za rok
Elektřina
230V
Odpad
Veřejná kanalizace
Topení
Ústřední dálkové
Telekomunikace
Internet
Doprava
Vlak, Dálnice, MHD, Autobus
Voda
Vodovod
Sklep
Výtah

Kontaktovat makléře

Máte zájem o tento byt?

Tímto, v souladu s nařízením Evropského parlamentu a Rady (EU) 2016/679, v platném znění, prohlašuji, že mi je alespoň 16 let a uděluji tak svůj souhlas se zpracováním zadaných údajů (jméno, telefon, e-mail, ip adresa) společnosti B3 Technology, s.r.o., IČ: 07330600, se sídlem Novostavby 126/23, 435 11 Lom (správce dat), za účelem předání dotazu z tohoto formuláře Vámi vybranému inzerentovi a zpětného kontaktování mé osoby. Osobní údaje bude správce zpracovávat manuálně i automaticky přímo prostřednictvím svých zaměstnanců. Informace předané tímto formulářem budou uloženy v databázi správce maximálně po dobu 10 let. Odvolání souhlasu s uložením a zpracováním poskytnutých dat lze e-mailem na info@vitio.cz. V případě podezření na neoprávněné použití Vámi poskytnutých údajů máte právo předat podnět k šetření Úřadu pro ochranu osobních údajů. Více informací
Chystáte se prodat nemovitost?
Pomůžeme Vám!

Inzerát si prohlédlo 0 lidí

Prodejce

Elnes Šabani

Elnes Šabani

Hlídací pes

Chcete dostávat emailem podobné nabídky pronájmu bytů 2+1 v Ústí nad Labem?

Podobné nemovitosti