Prodej rodinného domu, Frýdek-Místek, 85 m2

Frýdek-Místek

5 820 000 Kč /za nemovitost HYPOTÉKA od 26 012 Kč /za měsíc
Exkluzivní partneři v Frýdku-Místku

Informace k domu

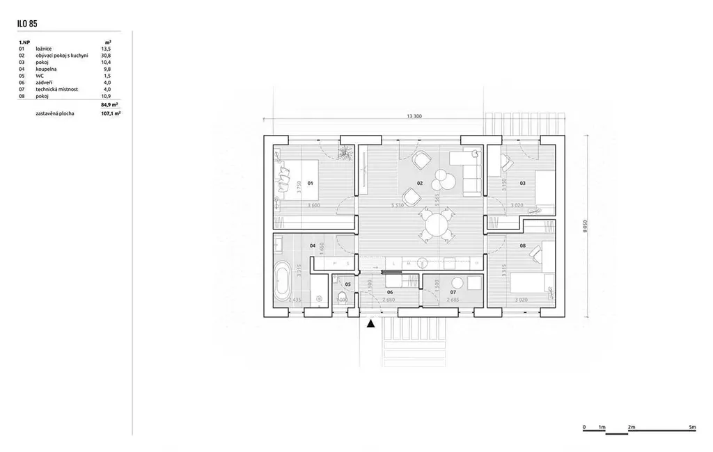
Nabízíme k realizaci projekt rodinného domu na klíč, realizovaný ve spolupráci s renomovanou stavební firmou ILO domy s.r.o., která zaručuje vysokou kvalitu a profesionální přístup, umístěného na prostorném pozemku o výměře 670 m2 ve Skalici u Frýdku-Místku. Tento moderně navržený dům o dispozici 4+KK a užitné ploše 85 m2 kombinuje funkčnost a estetiku.

Nejmenší dřevostavba z nabídky ILO domu se snaží nabídnout maximální komfort a kvalitu bydleni při zachování minimálních investičních nákladů. Dispoziční řešení proto usiluje o minimalizaci obslužných prostor chodeb a místo toho umísťuje do středu objektu velký obytný prostor. Na nej navazuji jednotlivé ložnice, technické zázemí je umístěno u vstupní strany objektu.

Jednoduchá a účelná dispozice se odráží i v racionálním řešení hmoty a exteriéru. Jednoduchý tvar, jen nutné okenní otvory směrem k ulici, velkorysé proskleni do zahrady. Boční štíty jsou záměrně slepé, aby bylo umožněno osazeni na co nejmenší pozemek. Fasádu tvoří jen omítka, ve vybraných místech je použito její strukturování. V ceně je zahrnuta základová deska a tepelné čerpadlo.

Tento dům je možné si osobně prohlédnout v showroomu v Moravské Ostravě na ulici Varenská 3309.

Inženýrské sítě: Dům je možné připojit na obecní vodovod a elektřinu. Odpady ideálně řešit ČOV.

Pro více informací nás prosím kontaktujte.

Parametry domu

Cena
5 820 000 Kč /za nemovitost Spočítat hypotéku
Aktualizováno
4. 12. 2025
Adresa
Frýdek-Místek
ID
262
Stavba
Dřevěná
Stav objektu
Novostavba
Druh objektu
Samostatný
Užitná plocha
85 m2
Zastavěná plocha
95 m2
Podlahová plocha
85 m2
Plocha pozemku
670 m2
Třída energetické náročnosti
B - Velmi úsporná
Odpad
ČOV pro celý objekt
Topení
Ústřední elektrické
Komunikace
Asfaltová
Voda
Vodovod
Topné těleso
Podlahové vytápění
Zdroj topení
Tepelné čerpadlo
Bezbarierový přístup

Kontaktovat makléře

Realitní kancelář

Lidové reality

tř. T. G. Masaryka 650, Frýdek-Místek

Chystáte se prodat nemovitost?
Pomůžeme Vám!

Máte zájem o tento dům?

Tímto, v souladu s nařízením Evropského parlamentu a Rady (EU) 2016/679, v platném znění, prohlašuji, že mi je alespoň 16 let a uděluji tak svůj souhlas se zpracováním zadaných údajů (jméno, telefon, e-mail, ip adresa) společnosti B3 Technology, s.r.o., IČ: 07330600, se sídlem Novostavby 126/23, 435 11 Lom (správce dat), za účelem předání dotazu z tohoto formuláře Vámi vybranému inzerentovi a zpětného kontaktování mé osoby. Osobní údaje bude správce zpracovávat manuálně i automaticky přímo prostřednictvím svých zaměstnanců. Informace předané tímto formulářem budou uloženy v databázi správce maximálně po dobu 10 let. Odvolání souhlasu s uložením a zpracováním poskytnutých dat lze e-mailem na info@vitio.cz. V případě podezření na neoprávněné použití Vámi poskytnutých údajů máte právo předat podnět k šetření Úřadu pro ochranu osobních údajů. Více informací
Chystáte se prodat nemovitost?
Pomůžeme Vám!

Inzerát si prohlédlo 0 lidí

Prodejce

Dis. Ladislav Holexa

Dis. Ladislav Holexa

Hlídací pes

Chcete dostávat emailem podobné nabídky prodeje rodinných domů v Frýdku-Místku?

Podobné nemovitosti