Pronájem skladu, Kolín, K Raškovci, 1785 m2

K Raškovci, Kolín V

Cena na vyžádání /za měsíc Získejte výhodnou HYPOTÉKU

(Finanční jistota ve výši dvou měsíčních nájmů, zálohové platby na zúčtovatelné poplatky, provize RK)

Exkluzivní partneři v Kolíně

Informace k nemovitosti

Nabízíme dlouhodobý pronájem dvou zcela nových skladových hal se samostatným administrativně-sociálním zázemím v průmyslové zóně na okraji Kolína. Haly se nacházejí v klidné slepé ulici K Raškovci, v uzavřeném a střeženém areálu s celodenním přístupem.
Objekty jsou ve výstavbě, předpokládané dokončení 3.Q/2026, reálná dostupnost cca do 8 měsíců.
Prostory jsou ve standardu „shell & core" s možností úprav na míru (dispozice, kanceláře, velikost jednotek).
________________________________________
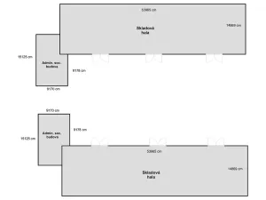
Dispozice a výměry

Plocha pozemku: 5 745 m²

• Celková zastavěná plocha: 1 845 m²
• Skladové části - zastavěná plocha: 2 × 802 m²
• Administrativní a sociální zázemí - zastavěná plocha: 2 x 120,6 m²

Celková užitná plocha: 1 785 m²
Skladové části - užitná plocha: 2 x 786 m²
Administrativní a sociální zázemí- užitná plocha: 2 x 107 m²

• Možnost vytvoření menších jednotek
• Mezi halami se nachází manipulační dvůr vhodný pro logistiku a kamionovou dopravu
________________________________________
Technické parametry
• ocelová konstrukce, zateplený plášť
• světlá výška 8 m
• nosnost podlahy 5 t/m²
• přímé vjezdy pro nákladní techniku
• sprinklery
• LED osvětlení
• přirozené větrání okny
• skladové prostory zateplené (bez vytápění)
• parkovací stání v areálu
• areál střežený 24/7, kamerový systém
• PENB: A – velmi úsporná budova

Inženýrské sítě
• vodovod – veřejný řad
• elektřina – 230/400 V
• kanalizace – tlaková
• internet – ADSL + bezdrátová síť
________________________________________
Lokalita
Areál se nachází 63 km východně od Prahy, v klidné slepé ulici s minimálním provozem. Lokalita je vhodná pro skladování, logistiku a e-commerce.
________________________________________
Dopravní dostupnost
Silniční napojení:
• D11 (E67) – exit 50: 11,3 km
• D11 – exit 42: 13,4 km
• I/38 (přes Kolín): 4,7 km
• Asfaltová komunikace, bezproblémový příjezd kamionů
Příjezdy:
• ze severu: Velký Osek → Kolín, Poděbrady, Nymburk
• z jihu: obchvat Kolína, Kutná Hora, Čáslav
• z východu: Pardubice, Hradec Králové,
Veřejná doprava:
• MHD linka 1, zastávka Strojírny – 450 m
• autobusové linky: 536, 705, 706
________________________________________
Cena
Cena pronájmu je na vyžádání.
Rádi vám zašleme cenovou nabídku podle požadovaného rozsahu a úprav.

Parametry nemovitosti

Cena
Cena na vyžádání
Poznámka k ceně
Finanční jistota ve výši dvou měsíčních nájmů, zálohové platby na zúčtovatelné poplatky, provize RK
Aktualizováno
4. 12. 2025
Adresa
K Raškovci, Kolín V
ID
25088
Stavba
Skeletová
Stav objektu
Novostavba
Patro
1.
Vybaveno
Ne
Lokalita objektu
Okraj obce
Užitná plocha
1785 m2
Zastavěná plocha
1845 m2
Podlahová plocha
5745 m2
Třída energetické náročnosti
A - Mimořádně úsporná
Elektřina
230V, 400V
Odpad
Veřejná kanalizace
Komunikace
Asfaltová
Telekomunikace
Internet
Doprava
Dálnice, Silnice, Autobus
Voda
Vodovod
Výtah
Bezbarierový přístup
Parkování

Kontaktovat makléře

Máte zájem o tuto nemovistost?

Tímto, v souladu s nařízením Evropského parlamentu a Rady (EU) 2016/679, v platném znění, prohlašuji, že mi je alespoň 16 let a uděluji tak svůj souhlas se zpracováním zadaných údajů (jméno, telefon, e-mail, ip adresa) společnosti B3 Technology, s.r.o., IČ: 07330600, se sídlem Novostavby 126/23, 435 11 Lom (správce dat), za účelem předání dotazu z tohoto formuláře Vámi vybranému inzerentovi a zpětného kontaktování mé osoby. Osobní údaje bude správce zpracovávat manuálně i automaticky přímo prostřednictvím svých zaměstnanců. Informace předané tímto formulářem budou uloženy v databázi správce maximálně po dobu 10 let. Odvolání souhlasu s uložením a zpracováním poskytnutých dat lze e-mailem na info@vitio.cz. V případě podezření na neoprávněné použití Vámi poskytnutých údajů máte právo předat podnět k šetření Úřadu pro ochranu osobních údajů. Více informací
Chystáte se prodat nemovitost?
Pomůžeme Vám!

Inzerát si prohlédlo 0 lidí

Prodejce

Ing. Dagmar Šolcová

Ing. Dagmar Šolcová

Hlídací pes

Chcete dostávat emailem podobné nabídky pronájmu skladů v Kolíně?

Podobné nemovitosti