Prodej rodinného domu, Křemže, 117 m2

Křemže, Chlum

9 490 000 Kč /za nemovitost HYPOTÉKA od 42 415 Kč /za měsíc

(včetně provize)

Exkluzivní partneři v Křemži

Informace k domu

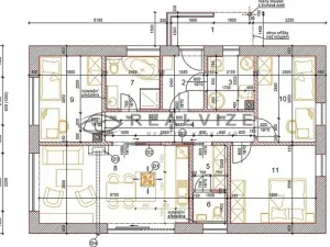
Předmětem prodeje bude dokončená novostavba moderního RD v Chlumu u Křemže, malebné obci pod Kletí. Nemovitost se nachází na pozemku o výměře 993 m2 a její součástí je zděná stavba o 35 m2, využitelná po menší rekonstrukci jako samostatný obytný domek např. k budoucímu pronájmu.
Prostorný obývací pokoj je spojený s kuchyní a poskytuje ideální místo pro rodinné a společenské chvíle. Praktické rozložení místností zahrnuje také samostatnou ložnici, dva další pokoje a dvě toalety (1x s koupelnou) a technickou místnost. Dům je napojen na inženýrské sítě kromě plynu. Vytápění je řešeno přes teplovodní podlahové topení napojené na tepelné čerpadlo. V obývacím pokoji krbová kamna. En. náročnost budovy: A mimořádně úsporná.
Na pozemku se nachází také kopaná studna s užitkovou vodou.
Termín dokončení novostavby včetně terénních úprav je březen 2026.
Veškerá občanská vybavenost v obci Křemže – školka, škola, zdrav. zařízení, obchody, pošta a další.
Pro více informací popř. prohlídku nemovitosti kontaktujte makléře této zajímavé nabídky.

Parametry domu

Cena
9 490 000 Kč /za nemovitost Spočítat hypotéku
Poznámka k ceně
včetně provize
Aktualizováno
4. 12. 2025
Adresa
Křemže, Chlum
ID
00633
Stavba
Cihlová
Stav objektu
Novostavba
Druh objektu
Samostatný
Užitná plocha
117 m2
Podlahová plocha
152 m2
Plocha pozemku
993 m2
Třída energetické náročnosti
A - Mimořádně úsporná
Ukazatel energetické náročnosti
62 kWh/m2 za rok
Elektřina
230V, 400V
Voda
Vodovod

Kontaktovat makléře

Realitní kancelář

Realvize - realitní kancelář

Staroměstská 1504/1, České Budějovice

Chystáte se prodat nemovitost?
Pomůžeme Vám!

Máte zájem o tento dům?

Tímto, v souladu s nařízením Evropského parlamentu a Rady (EU) 2016/679, v platném znění, prohlašuji, že mi je alespoň 16 let a uděluji tak svůj souhlas se zpracováním zadaných údajů (jméno, telefon, e-mail, ip adresa) společnosti B3 Technology, s.r.o., IČ: 07330600, se sídlem Novostavby 126/23, 435 11 Lom (správce dat), za účelem předání dotazu z tohoto formuláře Vámi vybranému inzerentovi a zpětného kontaktování mé osoby. Osobní údaje bude správce zpracovávat manuálně i automaticky přímo prostřednictvím svých zaměstnanců. Informace předané tímto formulářem budou uloženy v databázi správce maximálně po dobu 10 let. Odvolání souhlasu s uložením a zpracováním poskytnutých dat lze e-mailem na info@vitio.cz. V případě podezření na neoprávněné použití Vámi poskytnutých údajů máte právo předat podnět k šetření Úřadu pro ochranu osobních údajů. Více informací
Chystáte se prodat nemovitost?
Pomůžeme Vám!

Inzerát si prohlédlo 0 lidí

Prodejce

Hynek Ira

Hynek Ira

Hlídací pes

Chcete dostávat emailem podobné nabídky prodeje rodinných domů v Křemži?

Podobné nemovitosti