Prodej pozemku, Brno - Komín, Závist, 981 m2

Závist, Brno, Komín

19 900 000 Kč HYPOTÉKA od 88 941 Kč /za měsíc

(včetně provize RK)

Exkluzivní partneři v Brně

Informace k pozemku

Exkluzivní Nabídka Pozemky 981m² s Prodlouženým Stavebním Povolením pro Mode...

Exkluzivní Nabídka: Pozemky s Prodlouženým Stavebním Povolením pro Moderní Rodinný Dům

v Brno-Komín – Ulice Závist 8
Lokalita: Závist 8,  Brno-Komín, Česká republika

Představujeme jedinečnou příležitost získat soubor stavebních pozemků s kompletně schváleným a prodlouženým stavebním povolením pro výstavbu luxusního moderního rodinného domu v jedné z nejžádanějších lokalit Brna – v klidné a prestižní čtvrti Komín. Tato nabídka minimalizuje starosti s byrokracií a umožňuje okamžitě zahájit realizaci vašeho vysněného domova.

Lokalita a Pozemky:

Nemovitost se nachází na adrese Závist 8 v Brně-Komíně, která je známá svým klidem, blízkostí přírody a zároveň výbornou dostupností do centra města a na dálnici.
Projekt je situován na několika vzájemně propojených parcelách, které dohromady tvoří ideální zázemí pro komfortní bydlení:

p. č. 475: Zastavěná plocha a nádvoří o výměře 104 m².
p. č. 476: Pozemek o výměře 109 m².
p. č. 477/4: Zahrada o velkorysých 585 m².

Součástí projektu jsou i další pozemky, konkrétně
p. č. : 477/5: 135m²
p. č. : 477/6: 48 m²

které zajišťují kompaktní a funkční celek pro realizaci celého záměru.

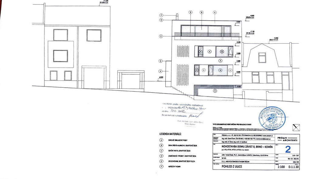
Popis Projektu – Moderní Rodinný Dům:

Projektovaná novostavba představuje architektonicky zajímavý čtyřpodlažní dům (1 podzemní, 3 nadzemní) s elegantními cihlovými obkladovými pásky a dřevohliníkovými okny v grafitově šedé barvě. Dům s plochou střechou se vyznačuje promyšlenými dispozicemi a vysokým standardem:

Zastavěná plocha: 145,5 m².
Užitná podlahová plocha: 367,6 m².
Obytná plocha: 139,9 m².

Dispozice (1 bytová jednotka):
1. PP (podzemní): Dvougaráž, sklep, sklad, technická místnost, prádelna, výtahová šachta.
1. NP (přízemí): Vstupní zádveří, prostorná hala, velký obytný prostor, moderní kuchyň, spíž, pokoj pro hosty, koupelna, WC a venkovní terasa.
2. NP: Ložnice, pokoje, velkorysé šatny, koupelna, WC, terasa pro relaxaci.
3. NP: Chodba s pracovním koutem, fitness a relaxační místnost, sprchový kout, šatna, WC, klidná zahradní terasa (cca 8,2 m²) a velká uliční terasa (cca 32,4 m²).

Vybavení: Dům bude vytápěn efektivním systémem tepelného čerpadla země/voda s využitím zemního vrtu, doplněným krbovými kamny. Kompletní napojení na veškeré inženýrské sítě (elektřina, voda, plyn, kanalizace, dešťová kanalizace).

Venkovní úpravy: Nový vjezd, venkovní schodiště, zpevněné plochy, opěrné zdi, oplocení a zahradní úpravy.

Klíčová Výhoda: Stavební Povolení Již Prodlouženo.

Nemusíte se obávat zdlouhavého procesu získávání povolení. Společné územní a stavební povolení pro novostavbu ( Novostavba domu Závist 8,  Brno-Komín ) bylo vydáno již 30. června 2022 a následně prodlouženo do 22. března 2027. Všechny potřebné dokumenty jsou schválené a připravené k okamžité realizaci stavby. Původní dům na p. č. 475 je schválen k demolici.

Pro koho je tato nabídka:

Pro náročné klienty hledající moderní bydlení bez kompromisů.

Pro ty, kteří ocení unikátní architektonické řešení a funkčnost.

Pro investory, kteří chtějí rychle realizovat stavební projekt bez průtahů.

Nenechte si ujít tuto výjimečnou příležitost a kontaktujte nás pro detailní informace a prohlídku.

Na pozemku je aktuálně umístěn dům, který lze pronajímat, nebo úplně zbourat.

Na zadním pozemku bylo kdysi povoleno UR na výstavbu ateliéru, na základě tohoto faktu bude možné UR obnovit.

Každý klient si může projekt předělat dle svých představ.

Parametry pozemku

Cena
19 900 000 Kč Spočítat hypotéku
Poznámka k ceně
včetně provize RK
Aktualizováno
3. 12. 2025
Adresa
Závist, Brno, Komín
ID
RL21220252
Lokalita objektu
Klidná část obce
Plocha pozemku
981 m2

Kontaktovat makléře

Máte zájem o tento pozemek?

Tímto, v souladu s nařízením Evropského parlamentu a Rady (EU) 2016/679, v platném znění, prohlašuji, že mi je alespoň 16 let a uděluji tak svůj souhlas se zpracováním zadaných údajů (jméno, telefon, e-mail, ip adresa) společnosti B3 Technology, s.r.o., IČ: 07330600, se sídlem Novostavby 126/23, 435 11 Lom (správce dat), za účelem předání dotazu z tohoto formuláře Vámi vybranému inzerentovi a zpětného kontaktování mé osoby. Osobní údaje bude správce zpracovávat manuálně i automaticky přímo prostřednictvím svých zaměstnanců. Informace předané tímto formulářem budou uloženy v databázi správce maximálně po dobu 10 let. Odvolání souhlasu s uložením a zpracováním poskytnutých dat lze e-mailem na info@vitio.cz. V případě podezření na neoprávněné použití Vámi poskytnutých údajů máte právo předat podnět k šetření Úřadu pro ochranu osobních údajů. Více informací
Chystáte se prodat nemovitost?
Pomůžeme Vám!

Inzerát si prohlédlo 7 lidí

Prodejce

Alla Vošická Lukjanova

Alla Vošická Lukjanova

Hlídací pes

Chcete dostávat emailem podobné nabídky prodeje pozemků v Brně?

Podobné nemovitosti