Pronájem bytu 3+kk, Praha - Zbraslav, Paškova, 59 m2

Paškova, Zbraslav - Praha-Zbraslav

23 000 Kč /za měsíc Získejte výhodnou HYPOTÉKU

(vratná jistota, náklady na bydlení 5.216,-Kč, poplatek za podnájem)

Exkluzivní partneři v Praze 5

Stěhovací služby

Výkup a prodej starého nábytku

Pojištění a finance

Informace k bytu

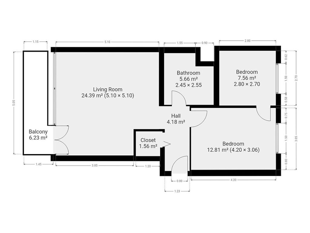
K dlouhodobému podnájmu Vám nabízíme velmi světlý byt o dispozici 3+kk, 59m2 v klidné, přesto dobře dopravně dostupné lokalitě s kompletní občanskou vybaveností v pražské Zbraslavi.

Byt se nachází ve 4. patře panelového domu s výtahem.

Skládá se ze vstupní chodby, na kterou navazuje prostorná komora. Dvou průchozích pokojů, koupelny s velkou rohovou vanou, umyvadlem a toaletou. Obývací pokoj je společný s kuchyňským koutem.

Z obývacího pokoje lze vejít na prostornou lodžii.

Dům se nachází v lokalitě s veškerou občanskou vybaveností - ihned u domu se nachází hypermarket Albert, LIDL je cca 5 minut chůze. Dále pošta, několik základních i mateřských škol a ostatní služby. Autobusová zastávka s přímým spojením na Smíchovské nádraží je od domu cca 2 minuty chůze. Na Smíchově jste autobusem za 15 minut minut.

Byt je k dispozici k od 1.9.2026.

Zálohové platby už obsahují zálohy na elektřinu a pojištění domácnosti.

Parametry bytu

Cena
23 000 Kč /za měsíc
Poznámka k ceně
vratná jistota, náklady na bydlení 5.216,-Kč, poplatek za podnájem
Aktualizováno
15. 5. 2026
Adresa
Paškova, Zbraslav - Praha-Zbraslav
ID
N6178
Stavba
Panelová
Stav objektu
Velmi dobrý
Patro
4. z 6
Vybaveno
Částečně
Typ objektu
Patrový
Vlastnictví
Osobní
Užitná plocha
59 m2
Podlahová plocha
59 m2
Třída energetické náročnosti
G - Mimořádně nehospodárná
Elektřina
230V
Topení
Ústřední plynové
Doprava
Vlak, Dálnice, Silnice, MHD, Autobus
Balkon
Sklep
Lodžie
Výtah
Bezbarierový přístup

Kontaktovat makléře

Realitní kancelář

Logo Ideální nájemce

Ideální nájemce

Milady Horákové 1957/13, Brno

Chystáte se prodat nemovitost?
Pomůžeme Vám!

Máte zájem o tento byt?

Tímto, v souladu s nařízením Evropského parlamentu a Rady (EU) 2016/679, v platném znění, prohlašuji, že mi je alespoň 16 let a uděluji tak svůj souhlas se zpracováním zadaných údajů (jméno, telefon, e-mail, ip adresa) společnosti B3 Technology, s.r.o., IČ: 07330600, se sídlem Novostavby 126/23, 435 11 Lom (správce dat), za účelem předání dotazu z tohoto formuláře Vámi vybranému inzerentovi a zpětného kontaktování mé osoby. Osobní údaje bude správce zpracovávat manuálně i automaticky přímo prostřednictvím svých zaměstnanců. Informace předané tímto formulářem budou uloženy v databázi správce maximálně po dobu 10 let. Odvolání souhlasu s uložením a zpracováním poskytnutých dat lze e-mailem na info@vitio.cz. V případě podezření na neoprávněné použití Vámi poskytnutých údajů máte právo předat podnět k šetření Úřadu pro ochranu osobních údajů. Více informací
Chystáte se prodat nemovitost?
Pomůžeme Vám!
Theleadway banner

Inzerát si prohlédlo 13 lidí

Prodejce

Dana Oralová

Dana Oralová

Hlídací pes

Chcete dostávat emailem podobné nabídky pronájmu bytů 3+kk v Praze 5?

Podobné nemovitosti