Prodej rodinného domu, Husinec, P. Chelčického, 167 m2

P. Chelčického, Husinec

3 150 000 Kč /za nemovitost HYPOTÉKA od 14 079 Kč /za měsíc
Exkluzivní partneři v Husinci

Výkup a prodej starého nábytku

Informace k domu

Prodej rodinného domu, 167 m², Husinec, ul. P. Chelčického

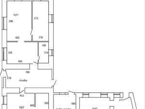
Nabízíme k prodeji unikátní rodinný dům před rekonstrukcí, v malebném městě Husinec, nacházejícím se na okraji Šumavy. Tento dům ve tvaru L disponuje celkem třemi samostatnými byty s vlastním vchodem a sociálním zařízením, což umožňuje vícegenerační bydlení nebo kombinaci bydlení a pronájmu. Byt 2+1 (61 m²) je ideální pro rodinu, zatímco byt 1+1 (36 m²) a byt 1+kk (32 m²) poslouží jako skvělé investiční příležitosti. V domě se nachází také technická místnost (18 m²) a velká půda (180 m²) poskytující možnosti pro půdní vestavbu či skladování. Zahrádka nabízí prostor pro relaxaci. Nemovitost se nachází na pozemku o ploše 378 m². Dům je napojen na veřejnou kanalizaci a vodovod. Vytápění zajišťuje automatický kotel na pelety Husinec nabízí veškerou občanskou vybavenost včetně školky, školy, obchodu, lékaře a sportovišť. Perfektní lokalita pro milovníky přírody, turistiky a rekreace.

Parametry domu

Cena
3 150 000 Kč /za nemovitost Spočítat hypotéku
Aktualizováno
26. 12. 2025
Adresa
P. Chelčického, Husinec
ID
925056
Stavba
Smíšená
Stav objektu
Před rekonstrukcí
Vybaveno
Částečně
Druh objektu
Rohový
Lokalita objektu
Okraj obce
Vlastnictví
Osobní
Užitná plocha
167 m2
Plocha pozemku
378 m2

Kontaktovat makléře

Realitní kancelář

Logo M&M reality

M&M reality

ulice Krakovská 583/9, Praha

Chystáte se prodat nemovitost?
Pomůžeme Vám!

Máte zájem o tento dům?

Tímto, v souladu s nařízením Evropského parlamentu a Rady (EU) 2016/679, v platném znění, prohlašuji, že mi je alespoň 16 let a uděluji tak svůj souhlas se zpracováním zadaných údajů (jméno, telefon, e-mail, ip adresa) společnosti B3 Technology, s.r.o., IČ: 07330600, se sídlem Novostavby 126/23, 435 11 Lom (správce dat), za účelem předání dotazu z tohoto formuláře Vámi vybranému inzerentovi a zpětného kontaktování mé osoby. Osobní údaje bude správce zpracovávat manuálně i automaticky přímo prostřednictvím svých zaměstnanců. Informace předané tímto formulářem budou uloženy v databázi správce maximálně po dobu 10 let. Odvolání souhlasu s uložením a zpracováním poskytnutých dat lze e-mailem na info@vitio.cz. V případě podezření na neoprávněné použití Vámi poskytnutých údajů máte právo předat podnět k šetření Úřadu pro ochranu osobních údajů. Více informací
Chystáte se prodat nemovitost?
Pomůžeme Vám!

Inzerát si prohlédlo 16 lidí

Prodejce

Bc. Tomáš Kozák

Bc. Tomáš Kozák

Hlídací pes

Chcete dostávat emailem podobné nabídky prodeje rodinných domů v Husinci (okr. Prachatice)?

Top nabídky

Podobné nemovitosti