Pronájem bytu 2+1, Břeclav, J. Palacha, 48 m2 (ID: 2520343)

J. Palacha, Břeclav

15 000 Kč /za měsíc Získejte výhodnou HYPOTÉKU

(vratná jistota 30.000,- Kč, náklady na bydlení cca 3.500,- kč, poplatek za podnájem)

Exkluzivní partneři v Břeclavi

Informace k bytu

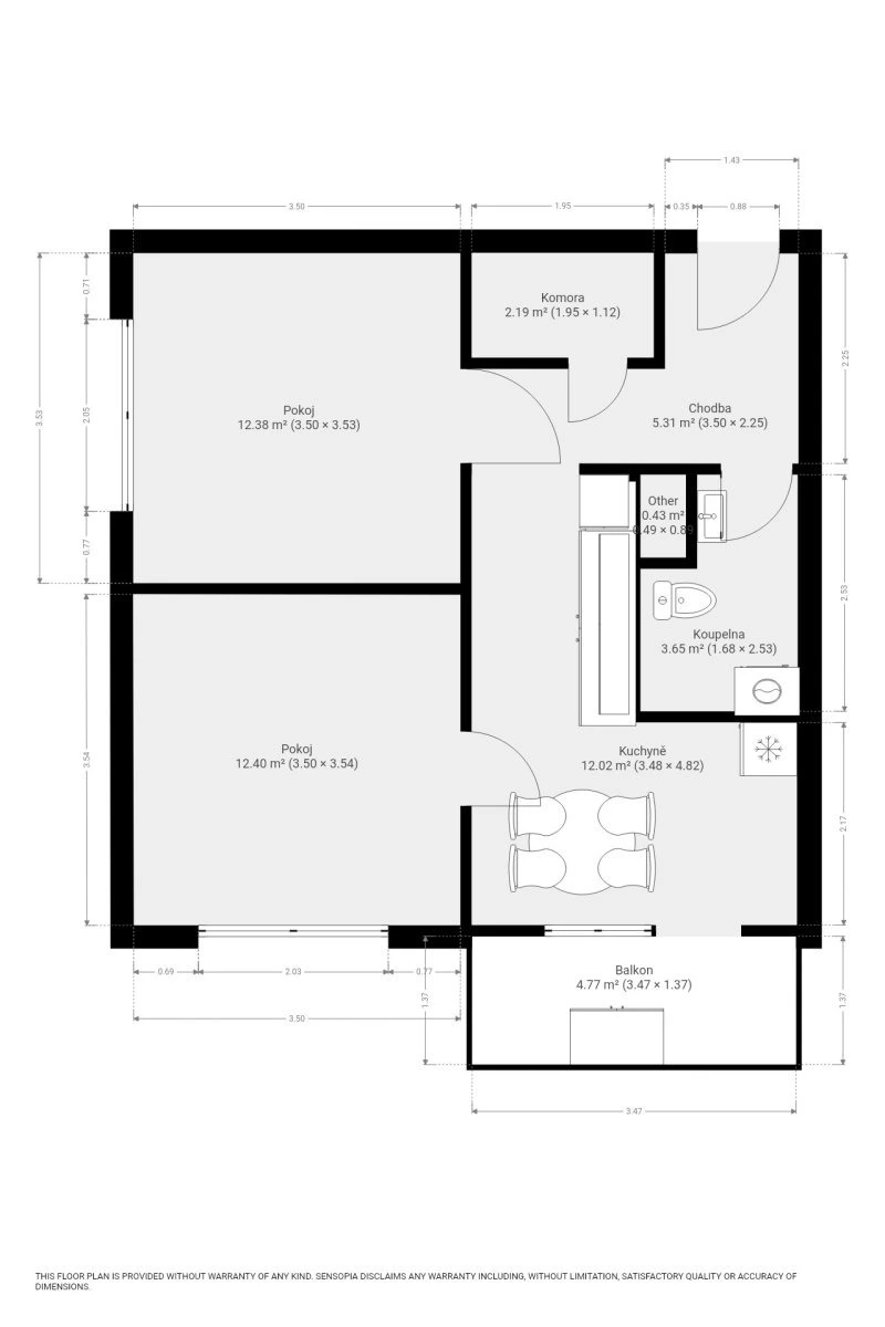
Nabízíme dlouhodobý pronájem pěkného bytu o dispozicí 2+1 v lokalitě J. Palacha 26 v Břeclavi. Byt o celkové ploše 49m2 se nachází v 1. patře panelového domu.

Jedná se o částečně zařízený byt. Vybavení zahrnuje kuchyňskou linku s plynovým sporákem, troubou, digestoří, lednicí a jídelním stolkem se židlemi.

Byt disponuje balkonem. Obývací místnost a druhý pokoj jsou neprůchozí. V bytě na podlahách jsou koberce, dlažba a vinyl. Vytápění zajišťuje centrální vytápění s radiátory.

V domě jsou dva výtahy a možnost využití kolárny v suterénu domu.

Byt zahrnuje sklepní kóji o velikosti 1 m2.

Záloha na energie (topení, voda a teplá voda, elektřina, plyn) 3500,- s vyúčtováním dle skutečné spotřeby.
Byt je volný k nastěhování ihned.

Na ulici Čechova je možnost parkování s podmínkou vyřízení parkovací karty.

Energetická kategorie bytu je G.

Parametry bytu

Cena
15 000 Kč /za měsíc
Poznámka k ceně
vratná jistota 30.000,- Kč, náklady na bydlení cca 3.500,- kč, poplatek za podnájem
Aktualizováno
10. 12. 2025
Adresa
J. Palacha, Břeclav
ID
N6988
Stavba
Panelová
Stav objektu
Dobrý
Patro
1. z 5
Vybaveno
Částečně
Typ objektu
Patrový
Vlastnictví
Osobní
Užitná plocha
48 m2
Podlahová plocha
48 m2
Elektřina
230V
Topení
Ústřední dálkové
Balkon
Sklep
Výtah

Kontaktovat makléře

Máte zájem o tento byt?

Tímto, v souladu s nařízením Evropského parlamentu a Rady (EU) 2016/679, v platném znění, prohlašuji, že mi je alespoň 16 let a uděluji tak svůj souhlas se zpracováním zadaných údajů (jméno, telefon, e-mail, ip adresa) společnosti B3 Technology, s.r.o., IČ: 07330600, se sídlem Novostavby 126/23, 435 11 Lom (správce dat), za účelem předání dotazu z tohoto formuláře Vámi vybranému inzerentovi a zpětného kontaktování mé osoby. Osobní údaje bude správce zpracovávat manuálně i automaticky přímo prostřednictvím svých zaměstnanců. Informace předané tímto formulářem budou uloženy v databázi správce maximálně po dobu 10 let. Odvolání souhlasu s uložením a zpracováním poskytnutých dat lze e-mailem na info@vitio.cz. V případě podezření na neoprávněné použití Vámi poskytnutých údajů máte právo předat podnět k šetření Úřadu pro ochranu osobních údajů. Více informací
Chystáte se prodat nemovitost?
Pomůžeme Vám!

Inzerát si prohlédlo 13 lidí

Prodejce

Miloslava Kačerová

Miloslava Kačerová

Hlídací pes

Chcete dostávat emailem podobné nabídky pronájmu bytů 2+1 v Břeclavi?

Podobné nemovitosti