Prodej bytu 3+1, Brno, Kárníkova, 77 m2

Kárníkova, Brno, Řečkovice

8 300 000 Kč /za nemovitost HYPOTÉKA od 37 096 Kč /za měsíc
Exkluzivní partneři v Brně

Informace k bytu

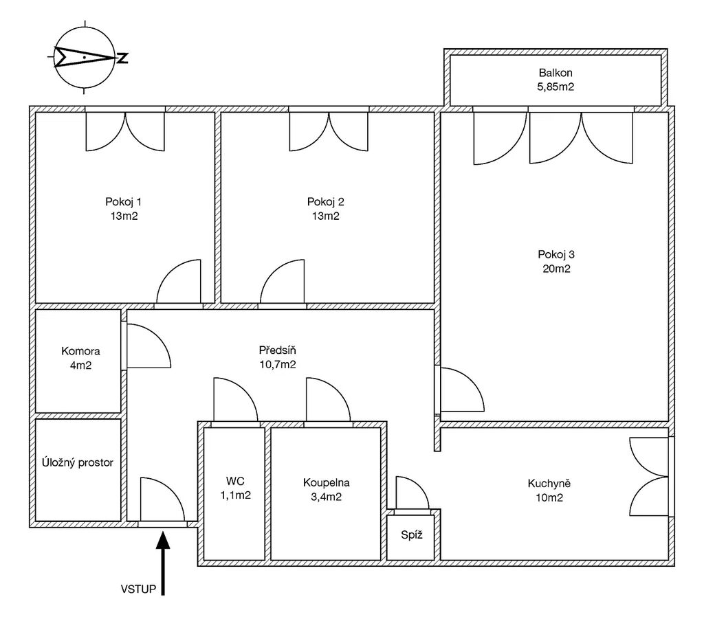
Prodej útulného a světlého bytu 3+1 (77 m²) + balkon (6 m2) a sklep (6 m2) celkem 89 m2 – Brno, ul. Kárníkova

Hledáte pohodové bydlení v klidné brněnské lokalitě plné zeleně? Mám pro vás krásný, velmi příjemně řešený byt 3+1 o výměře 77 m² s balkónem, odkud je opravdu nádherný výhled do zeleně. Byt působí hned na první dojem vzdušně, čistě a domácky.

Dispozice, která dává smysl
Do bytu vstupujeme prostornou předsíní, ze které vedou samostatné, neprůchozí vstupy do všech pokojů, kuchyně, koupelny i samostatného WC. Jednotlivé místnosti nabízejí dostatek soukromí – ideální jak pro rodinu, tak třeba pro spolubydlení nebo práci z domova.

Hlavním benefitem je prostorná komora přímo v bytě – perfektní místo na domácí dílničku, šatnu nebo prostě velký úložný prostor, který se v bytech často hledá jen těžko.

Další výhody bytu
-Byt je světlý a útulný díky skvělému dispozičnímu řešení
-Koupelna s vanou, WC odděleně
-Kuchyně s dostatkem místa a příjemným výhledem
-Krásný balkón orientovaný do zeleně – ideální na ranní kávu nebo večerní odpočinek
-Okolí je zelené, tiché a velmi příjemné na každodenní život

Lokalita
Ulice Kárníkova je vyhledávané místo právě díky klidu, množství zeleně a bezproblémové dostupnosti. V pěším dosahu najdete vše potřebné – obchody, MHD, školy, školky i volnočasové aktivity. Perfektní kombinace dostupnosti města a pohodové atmosféry.

Parametry bytu

Cena
8 300 000 Kč /za nemovitost Spočítat hypotéku
Aktualizováno
24. 11. 2025
Adresa
Kárníkova, Brno, Řečkovice
ID
25112201
Stavba
Cihlová
Stav objektu
Velmi dobrý
Patro
4.
Vlastnictví
Osobní
Užitná plocha
77 m2
Balkon
Sklep

Kontaktovat makléře

Realitní kancelář

VIP reality

Červený kopec 824/24, Brno

Chystáte se prodat nemovitost?
Pomůžeme Vám!

Máte zájem o tento byt?

Tímto, v souladu s nařízením Evropského parlamentu a Rady (EU) 2016/679, v platném znění, prohlašuji, že mi je alespoň 16 let a uděluji tak svůj souhlas se zpracováním zadaných údajů (jméno, telefon, e-mail, ip adresa) společnosti B3 Technology, s.r.o., IČ: 07330600, se sídlem Novostavby 126/23, 435 11 Lom (správce dat), za účelem předání dotazu z tohoto formuláře Vámi vybranému inzerentovi a zpětného kontaktování mé osoby. Osobní údaje bude správce zpracovávat manuálně i automaticky přímo prostřednictvím svých zaměstnanců. Informace předané tímto formulářem budou uloženy v databázi správce maximálně po dobu 10 let. Odvolání souhlasu s uložením a zpracováním poskytnutých dat lze e-mailem na info@vitio.cz. V případě podezření na neoprávněné použití Vámi poskytnutých údajů máte právo předat podnět k šetření Úřadu pro ochranu osobních údajů. Více informací
Chystáte se prodat nemovitost?
Pomůžeme Vám!

Inzerát si prohlédlo 0 lidí

Prodejce

Ilona Peňázová

Ilona Peňázová

Hlídací pes

Chcete dostávat emailem podobné nabídky prodeje bytů 3+1 v Brně?

Podobné nemovitosti