Pronájem bytu 2+kk, Brno - Židenice, Šámalova, 42 m2

Šámalova, Brno-Židenice

15 000 Kč /za měsíc Získejte výhodnou HYPOTÉKU
Exkluzivní partneři v Brně

Informace k bytu

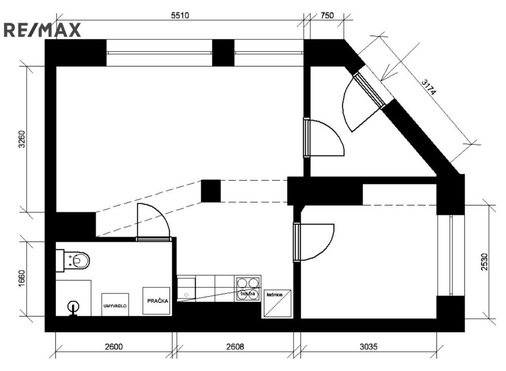
Nabízíme k pronájmu zcela nový, moderně zrekonstruovaný byt 2+kk o užitné ploše 42 m² nacházející se v příjemné a klidné části Brna – Židenice, ulice Šámalova.

Velkou výhodou je vlastní vstup přímo z ulice, což zajišťuje maximální soukromí. Dispozici bytu tvoří prostorný obývací pokoj s úplně novou kuchyňskou linkou, která je vybavena troubou, varnou deskou, digestoří a dřezem, přičemž je zde připravené místo i pro lednici. Na obývací část navazuje ložnice se širokým oknem. Koupelna je moderně zrekonstruovaná a obsahuje sprchový kout, toaletu, umyvadlo a přípravu na pračku. Hned za vstupem se nachází předsíň s technickým koutem, kde je umístěn kotel. Celý byt je po kompletní rekonstrukci, má nové podlahy, dveře, i osvětlení a je velice moderní. Byt je ideální pro páry, které ocení klidné prostředí v žádané lokalitě Židenice, která má plnou občanskou vybavenost i dostupnost MHD.

Měsíční náklady:
Nájemné: 15 000,- Kč
Záloha na vodu: dle spotřeby / měsíc
Záloha na elektřinu: dle spotřeby nájemce si s dodavatelem nastavuje výšši záloh / měsíc

Další poplatky:
Vratná kauce: 20 000,- Kč
Provize RK: 20 000,- Kč

Byt je k nastěhování ihned.
V případě zájmu o prohlídku mě neváhejte kdykoliv kontaktovat.

Parametry bytu

Cena
15 000 Kč /za měsíc
Aktualizováno
24. 11. 2025
Adresa
Šámalova, Brno-Židenice
ID
197-NP05098
Stavba
Smíšená
Stav objektu
Velmi dobrý
Patro
1. z 4
Lokalita objektu
Klidná část obce
Vlastnictví
Osobní
Užitná plocha
42 m2
Odpad
Veřejná kanalizace
Komunikace
Betonová
Telekomunikace
Internet
Doprava
Silnice, MHD, Autobus
Voda
Vodovod
Sklep

Kontaktovat makléře

Máte zájem o tento byt?

Tímto, v souladu s nařízením Evropského parlamentu a Rady (EU) 2016/679, v platném znění, prohlašuji, že mi je alespoň 16 let a uděluji tak svůj souhlas se zpracováním zadaných údajů (jméno, telefon, e-mail, ip adresa) společnosti B3 Technology, s.r.o., IČ: 07330600, se sídlem Novostavby 126/23, 435 11 Lom (správce dat), za účelem předání dotazu z tohoto formuláře Vámi vybranému inzerentovi a zpětného kontaktování mé osoby. Osobní údaje bude správce zpracovávat manuálně i automaticky přímo prostřednictvím svých zaměstnanců. Informace předané tímto formulářem budou uloženy v databázi správce maximálně po dobu 10 let. Odvolání souhlasu s uložením a zpracováním poskytnutých dat lze e-mailem na info@vitio.cz. V případě podezření na neoprávněné použití Vámi poskytnutých údajů máte právo předat podnět k šetření Úřadu pro ochranu osobních údajů. Více informací
Chystáte se prodat nemovitost?
Pomůžeme Vám!

Inzerát si prohlédlo 0 lidí

Prodejce

Michaela Dvořáková

Michaela Dvořáková

Hlídací pes

Chcete dostávat emailem podobné nabídky pronájmu bytů 2+kk v Brně?

Podobné nemovitosti