Prodej domu na klíč, Vratimov, 92 m2 (ID: 2518173)

Vratimov, Horní Datyně

6 449 000 Kč /za nemovitost HYPOTÉKA od 28 823 Kč /za měsíc

(Modelová kalkulace hypotéky: 80% LTV, splátka 25.199,- Kč, splatnost 30 let, úroková sazba od 4,19%.)

Exkluzivní partneři v Vratimově

Informace k domu

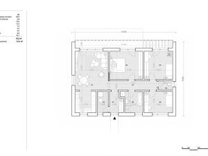
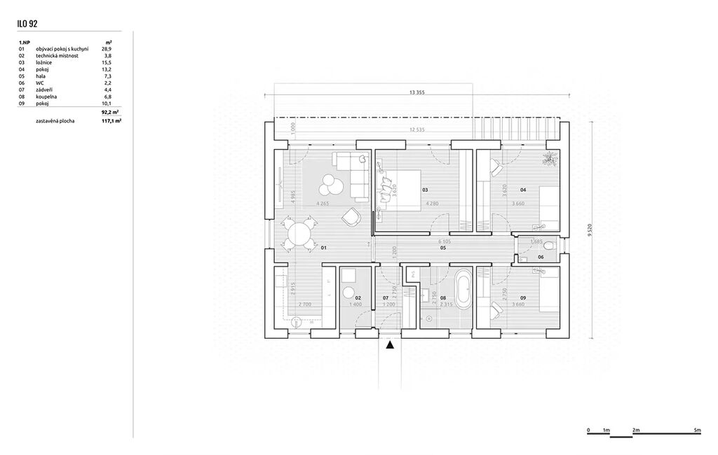
Nabízíme ke koupi dům na klíč situovaný v Horní Datyni, obci Vratimov. Tento projekt zahrnuje dřevostavbu, která se nachází na samostatném pozemku s celkovou plochou 1.200 m². Dům je přízemní s jedním podlažím a zastavěnou plochou 117 m², přičemž užitná plocha dosahuje 92 m². Vizualizace domu je pouze ilustrační, slouží pouze jako příklad možné výstavby na tomto pozemku.

Rozsah dodávky domu na klíč: kompletní konstrukční systém ILO, základová deska, krovy, vazníky nebo nosníky, kompletní střešní krytina vč. doplňků a odvodnění střechy, tepelné čerpadlo, fasádní systém, vnitřní rozvody vody a odpadů, rozvody podlahového topení, vchodové dveře + okna + garážová vrata, rozvody elektroinstalace, kompletní příprava všech povrchů pod malby, kompletní výmalba, kompletace elektroinstalace - rozvaděč, kompletace elektroinstalace - zásuvky a vypínače, kompletní skladba podlah vč. podlahové krytiny, obklady, dlažby, sanita, interiérové dveře.

V rámci projektu není zahrnuta kuchyňská linka.

Dispozice 1.NP nabízí ložnici, obývací pokoj propojený s kuchyňským prostorem, 2x pokoj, koupelnu, samostatnou toaletu, zádveří a technickou místnost.

Výborná dostupnost inženýrských sítí, které jsou umístěny na hranici pozemku. To zajišťuje snadné napojení na vodu a elektrickou energií. K pozemku vede asfaltová příjezdová cesta, což garantuje pohodlný přístup.

Horní Datyně představují ideální místo pro milovníky přírody, neboť nabízí široké možnosti pro turistiku, cykloturistiku a relaxaci ve volné přírodě. Okolí si uchovává klidnou atmosféru, která je příjemná pro život a zároveň je snadno dostupná od rušnějších částí města.

Tento projekt představuje ideální příležitost pro ty, kteří hledají nový domov v klidné lokalitě s možností vlastního přizpůsobení.

Cena zahrnuje pozemek a dům na klíč.
Uvedená cena je včetně provize a právního servisu.
V případě zájmu neváhejte kontaktovat makléře.

Parametry domu

Cena
6 449 000 Kč /za nemovitost Spočítat hypotéku
Poznámka k ceně
Modelová kalkulace hypotéky: 80% LTV, splátka 25.199,- Kč, splatnost 30 let, úroková sazba od 4,19%.
Aktualizováno
25. 11. 2025
Adresa
Vratimov, Horní Datyně
ID
0724
Stavba
Dřevěná
Stav objektu
Projekt
Vybaveno
Ne
Druh objektu
Samostatný
Lokalita objektu
Klidná část obce
Užitná plocha
92 m2
Zastavěná plocha
117 m2
Plocha pozemku
1200 m2
Plocha zahrady
1083 m2
Třída energetické náročnosti
B - Velmi úsporná

Kontaktovat makléře

Realitní kancelář

MINT reality s.r.o.

náměstí Antonie Bejdové 1810/10, Ostrava

Chystáte se prodat nemovitost?
Pomůžeme Vám!

Máte zájem o tento dům?

Tímto, v souladu s nařízením Evropského parlamentu a Rady (EU) 2016/679, v platném znění, prohlašuji, že mi je alespoň 16 let a uděluji tak svůj souhlas se zpracováním zadaných údajů (jméno, telefon, e-mail, ip adresa) společnosti B3 Technology, s.r.o., IČ: 07330600, se sídlem Novostavby 126/23, 435 11 Lom (správce dat), za účelem předání dotazu z tohoto formuláře Vámi vybranému inzerentovi a zpětného kontaktování mé osoby. Osobní údaje bude správce zpracovávat manuálně i automaticky přímo prostřednictvím svých zaměstnanců. Informace předané tímto formulářem budou uloženy v databázi správce maximálně po dobu 10 let. Odvolání souhlasu s uložením a zpracováním poskytnutých dat lze e-mailem na info@vitio.cz. V případě podezření na neoprávněné použití Vámi poskytnutých údajů máte právo předat podnět k šetření Úřadu pro ochranu osobních údajů. Více informací
Chystáte se prodat nemovitost?
Pomůžeme Vám!

Inzerát si prohlédlo 1 lidí

Prodejce

Lukáš Šuniar

Lukáš Šuniar

Hlídací pes

Chcete dostávat emailem podobné nabídky prodeje domů na klíč v Vratimově?

Podobné nemovitosti