Prodej rodinného domu, Hlučín, Okružní, 277 m2

Okružní, Hlučín

8 000 000 Kč /za nemovitost HYPOTÉKA od 35 755 Kč /za měsíc
Exkluzivní partneři v Hlučíně

Informace k domu

Hledáte klidné a pohodlné bydlení v blízkosti přírody? Tento dům je ideální volbou!
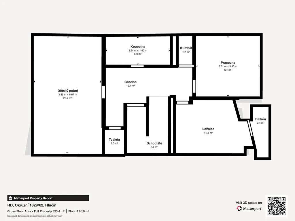
Nabízíme k prodeji řadový rodinný dům v klidné lokalitě nedaleko hlučínského jezera. Dům je po rekonstrukci z roku 2021, zkolaudován byl v roce 1996. Celková dispozice domu činí 5+1, dvě patra, balkon, zahrada s terasou, venkovním posezením a s možností příjezdu až na zahradu. V suterénu domu se nachází kromě velké vybavené dílny také prádelna a technická místnost s novým plynovým kotlem a prostornou garáží. Další parkování je také zajištěno na pozemku před domem. Přízemí zahrnuje obývací pokoj s jídelnou, kuchyň, pracovnu a koupelnu s WC a sprchovým koutem. V prvním patře jsou umístěny 3 pokoje, z toho jeden pokoj s balkonem, koupelna s WC a další samostatné WC. Půda domu o velikosti 60 m2 je připravená k zabydlení pro jeden velký nebo dva malé pokoje. Vytápění domu a ohřev vody zajišťuje nový plynový kondenzační kotel, měsíční náklady za plyn činí 5500 Kč a za elektřinu 3500 Kč.
Dům lze pořídit částečně zařízený se sedací soupravou, televizní stěnou, vestavěnou skříní, venkovním posezením a vybavením dílny. Uvedená plocha stavby je orientační. Dům si můžete pořídit za 8 000 000 Kč.
Virtuální prohlídka 3D Scanem zde: https://my.matterport.com/show/?m=6ciK3S9pfWk
Krátká videoprohlídka je umístěna pod textem.
Pro více informací nebo domluvení prohlídky neváhejte kontaktovat makléře.

Parametry domu

Cena
8 000 000 Kč /za nemovitost Spočítat hypotéku
Aktualizováno
22. 11. 2025
Adresa
Okružní, Hlučín
ID
60
Stavba
Cihlová
Stav objektu
Po rekonstrukci
Užitná plocha
277 m2
Zastavěná plocha
133 m2
Podlahová plocha
333 m2
Plocha pozemku
405 m2
Třída energetické náročnosti
C - Úsporná
Elektřina
230V, 400V
Plyn
Plynovod
Odpad
Veřejná kanalizace
Komunikace
Asfaltová
Voda
Vodovod
Garáž
Sklep
Výtah
Bezbarierový přístup
Parkování

Kontaktovat makléře

Máte zájem o tento dům?

Tímto, v souladu s nařízením Evropského parlamentu a Rady (EU) 2016/679, v platném znění, prohlašuji, že mi je alespoň 16 let a uděluji tak svůj souhlas se zpracováním zadaných údajů (jméno, telefon, e-mail, ip adresa) společnosti B3 Technology, s.r.o., IČ: 07330600, se sídlem Novostavby 126/23, 435 11 Lom (správce dat), za účelem předání dotazu z tohoto formuláře Vámi vybranému inzerentovi a zpětného kontaktování mé osoby. Osobní údaje bude správce zpracovávat manuálně i automaticky přímo prostřednictvím svých zaměstnanců. Informace předané tímto formulářem budou uloženy v databázi správce maximálně po dobu 10 let. Odvolání souhlasu s uložením a zpracováním poskytnutých dat lze e-mailem na info@vitio.cz. V případě podezření na neoprávněné použití Vámi poskytnutých údajů máte právo předat podnět k šetření Úřadu pro ochranu osobních údajů. Více informací
Chystáte se prodat nemovitost?
Pomůžeme Vám!

Inzerát si prohlédlo 1 lidí

Prodejce

Daniela Pastrňáková

Daniela Pastrňáková

Hlídací pes

Chcete dostávat emailem podobné nabídky prodeje rodinných domů v Hlučíně?

Podobné nemovitosti