Pronájem bytu 3+kk, Praha - Vysočany, Spojovací, 91 m2 (ID: 2513535)

Spojovací, Praha 9

32 500 Kč /za měsíc Získejte výhodnou HYPOTÉKU

(Cena je včetně odměny RK, právního servisu a všech administrativních poplatků.)

Exkluzivní partneři v Praze 9

Stěhovací služby

Výkup a prodej starého nábytku

Informace k bytu

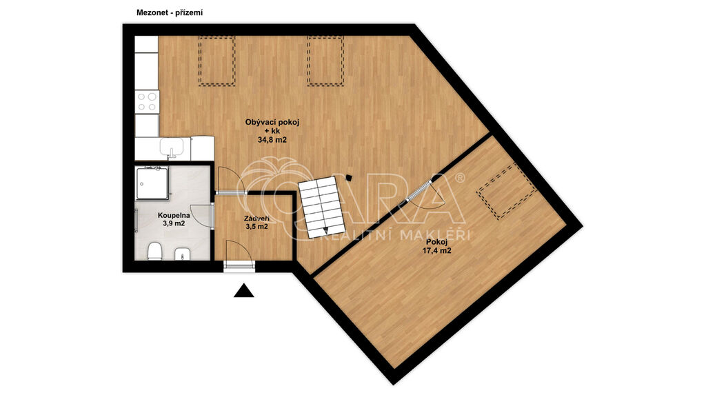
V zastoupení majitele nabízíme k dlouhodobému pronájmu světlý mezonetový byt o dispozici 3+kk a podlahové ploše 91,4m², který se nachází v 5. a 6. patře bytového domu v ulici Spojovací, Praha 9 – Vysočany.
V 5. patře se nachází prostorný obývací pokoj s vybaveným kuchyňským koutem (lednice s mrazákem, elektrická trouba, indukční varná deska, myčka nádobí, digestoř, dřez), ložnice a koupelna se sprchovým koutem, umyvadlem a toaletou. V 6. patře je samostatný pokoj vhodný jako ložnice, pracovna nebo pokoj pro hosty. Byt je vybavený klimatizací, nezařízený, připravený k okamžitému nastěhování.
Výborná dopravní dostupnost – zastávka MHD v pěší vzdálenosti, v okolí veškerá občanská vybavenost: obchody, školy, parky i sportovní vyžití.
Průkaz energetické náročnosti budovy vydaný podle zákona č. 406/200Sb., o hospodaření energii, a vyhlášky č.78/2013Sb. má klasifikační hodnotu C - úsporná.

Měsíční nájemné činí 32.500,- Kč + 3.000,- Kč měsíční záloha na služby (vodné a stočné, teplo, teplá voda, úklid, odvoz odpadu, elektřina společných prostor, výtah).
Při podpisu nájemní smlouvy je zapotřebí složit kauci majiteli ve výši dvou měsíčních nájmů 65.000,- Kč a první nájemné 32.500,-Kč + 3.000,-Kč služby. Celkem tedy 100.500,-Kč. Elektřina bude převedena na nájemce.

Byt je volný ihned. Provizi realitní kanceláři nájemce neplatí.
Smlouva bude uzavřena na 1 rok s možností prodloužení po vzájemné dohodě.

Parametry bytu

Cena
32 500 Kč /za měsíc
Poznámka k ceně
Cena je včetně odměny RK, právního servisu a všech administrativních poplatků.
Aktualizováno
18. 11. 2025
Adresa
Spojovací, Praha 9
ID
17997
Stavba
Smíšená
Stav objektu
Velmi dobrý
Patro
5. z 5
Vlastnictví
Osobní
Užitná plocha
91 m2
Podlahová plocha
91 m2
Třída energetické náročnosti
C - Úsporná
Elektřina
230V, 400V
Plyn
Plynovod
Odpad
Veřejná kanalizace
Komunikace
Dlážděná, Asfaltová
Doprava
Vlak, Silnice, MHD, Autobus
Voda
Vodovod
Výtah

Kontaktovat makléře

Realitní kancelář

Logo QARA, s.r.o.

QARA, s.r.o.

Šafaříkova 201/17, Praha

Chystáte se prodat nemovitost?
Pomůžeme Vám!

Máte zájem o tento byt?

Tímto, v souladu s nařízením Evropského parlamentu a Rady (EU) 2016/679, v platném znění, prohlašuji, že mi je alespoň 16 let a uděluji tak svůj souhlas se zpracováním zadaných údajů (jméno, telefon, e-mail, ip adresa) společnosti B3 Technology, s.r.o., IČ: 07330600, se sídlem Novostavby 126/23, 435 11 Lom (správce dat), za účelem předání dotazu z tohoto formuláře Vámi vybranému inzerentovi a zpětného kontaktování mé osoby. Osobní údaje bude správce zpracovávat manuálně i automaticky přímo prostřednictvím svých zaměstnanců. Informace předané tímto formulářem budou uloženy v databázi správce maximálně po dobu 10 let. Odvolání souhlasu s uložením a zpracováním poskytnutých dat lze e-mailem na info@vitio.cz. V případě podezření na neoprávněné použití Vámi poskytnutých údajů máte právo předat podnět k šetření Úřadu pro ochranu osobních údajů. Více informací
Chystáte se prodat nemovitost?
Pomůžeme Vám!

Inzerát si prohlédlo 1 lidí

Prodejce

Robert Pata

Robert Pata

Hlídací pes

Chcete dostávat emailem podobné nabídky pronájmu bytů 3+kk v Praze 9?

Podobné nemovitosti