Pronájem bytu 1+kk, Praha - Holešovice, Jankovcova, 42 m2

Jankovcova, Praha, Holešovice

22 800 Kč /za měsíc Získejte výhodnou HYPOTÉKU

(+ zálohy na služby 2500 kč + elektřina, vratný kauce 25000 kč, provize 22800 kč + DPH)

Exkluzivní partneři v Praze 7

Stěhovací služby

Výkup a prodej starého nábytku

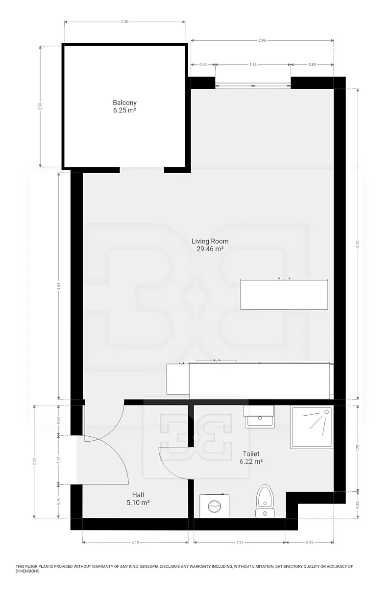
Informace k bytu

K nastěhování ihned.
Nabízíme k pronájmu moderní a světlý byt nacházející se ve 3. patře nové rezidenční budovy v pražských Holešovicích, v ulici Jankovcova 1639/16d. Dům je starý jen několik let a tomu odpovídá i velmi kvalitní provedení společných prostor i samotného bytu.

Byt je nevybavený a nabízí možnost zařídit si interiér dle vlastních představ. Dominantou je prostorná hlavní místnost s nadstandardně velkou kuchyňskou linkou v moderním designu. Kuchyň je vybavena vestavěnými spotřebiči, dostatkem úložných prostor a praktickým barovým pultem.
Celý byt působí vzdušně a díky kvalitním dřevěným podlahám a velkým oknům je zde dostatek přirozeného světla po celý den.

V chodbě se nachází vestavěná šatní skříň s velkým zrcadlem, která poskytuje dostatek úložného prostoru. K bytu náleží také balkon orientovaný do vnitrobloku, ideální pro posezení nebo odpočinek.
Koupelna je moderně zařízená, vybavená sprchovým koutem, umyvadlem a prostorem na pračku.

Lokalita nabízí vše, co je pro pohodlné městské bydlení potřeba – výbornou dopravní dostupnost, blízkost tramvajových a autobusových zastávek, kompletní občanskou vybavenost, obchody, služby, restaurace i volnočasové možnosti. Holešovice jsou jednou z nejžádanějších pražských čtvrtí.

Parametry bytu

Cena
22 800 Kč /za měsíc
Poznámka k ceně
+ zálohy na služby 2500 kč + elektřina, vratný kauce 25000 kč, provize 22800 kč + DPH
Aktualizováno
18. 11. 2025
Adresa
Jankovcova, Praha, Holešovice
ID
N08553
Stavba
Cihlová
Stav objektu
Novostavba
Patro
3.
Vybaveno
Ne
Lokalita objektu
Klidná část obce
Vlastnictví
Osobní
Užitná plocha
42 m2
Třída energetické náročnosti
B - Velmi úsporná
Ukazatel energetické náročnosti
80 kWh/m2 za rok
Elektřina
400V
Telekomunikace
Internet
Doprava
Vlak, Dálnice, Silnice, MHD, Autobus
Voda
Vodovod
Topné těleso
Radiátory
Zdroj topení
Ústřední dálkové
Balkon
Výtah
Bezbarierový přístup

Kontaktovat makléře

Máte zájem o tento byt?

Tímto, v souladu s nařízením Evropského parlamentu a Rady (EU) 2016/679, v platném znění, prohlašuji, že mi je alespoň 16 let a uděluji tak svůj souhlas se zpracováním zadaných údajů (jméno, telefon, e-mail, ip adresa) společnosti B3 Technology, s.r.o., IČ: 07330600, se sídlem Novostavby 126/23, 435 11 Lom (správce dat), za účelem předání dotazu z tohoto formuláře Vámi vybranému inzerentovi a zpětného kontaktování mé osoby. Osobní údaje bude správce zpracovávat manuálně i automaticky přímo prostřednictvím svých zaměstnanců. Informace předané tímto formulářem budou uloženy v databázi správce maximálně po dobu 10 let. Odvolání souhlasu s uložením a zpracováním poskytnutých dat lze e-mailem na info@vitio.cz. V případě podezření na neoprávněné použití Vámi poskytnutých údajů máte právo předat podnět k šetření Úřadu pro ochranu osobních údajů. Více informací
Chystáte se prodat nemovitost?
Pomůžeme Vám!

Inzerát si prohlédlo 0 lidí

Prodejce

Lukáš Kubát

Lukáš Kubát

Hlídací pes

Chcete dostávat emailem podobné nabídky pronájmu bytů 1+kk v Praze 7?

Podobné nemovitosti