Pronájem bytu 2+1, Praha - Žižkov, Hartigova, 62 m2

Hartigova, Praha, Žižkov

18 000 Kč /za měsíc Získejte výhodnou HYPOTÉKU

(+ služby 780, Kč/měs. + elektřina a vody dle spotřeby)

Exkluzivní partneři v Praze 3

Stěhovací služby

Výkup a prodej starého nábytku

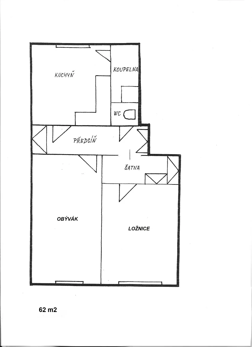
Informace k bytu

Nabídka určena s ohledem na požadavky pronajímatele pro max. 2 dospělé osoby a zájemce česky mluvící, děkujeme za pochopení.
Pronajímatel si vyhrazuje právo výběru nájemce.


Světlý a prostorný byt 2+1 (62 m2) ve 4. patře cihlového domu v dosahu centra (10 min.) a v těsné blízkosti parku Vítkov.
Výborná dostupnost bus na metro Florenc (B,C) nebo Flora (A).

Dispozičně dva samostatné pokoje, kuchyně, koupelny se sprch. koutem, WC zvlášť, předsíň s šatnou. Byt je částečně zařízen nábytkem (dvoupostel s nočními stolky, 2x křeslo se stolkem, jídelní stůl s židlemi) a spotřebiči (pračka, lednice, mikrovlnná trouba, remoska na pečení, varná konvice a el. 2vaříč.)
El. vytápění přímotop; ohřev vody bojler. Parkety v pokojích, PVC, dlažba.

Lokalita výborná díky parku Vítkov, cyklostezkám, procházkám a dalším volnočasovým aktivitám, v dosahu i bazén Olšanka nebo Pražačka. Dále je lokalita proslulá díky množstvím restaurací, bister, kaváren atd.
Kabelové připojení na internet.
Poplatky: služby 760, Kč/měs./osoba + voda a elektřina dle spotřeby
Kauce/jistota: 40.000, Kč; provize 18.000, Kč + dph

Parametry bytu

Cena
18 000 Kč /za měsíc
Poznámka k ceně
+ služby 780, Kč/měs. + elektřina a vody dle spotřeby
Aktualizováno
15. 11. 2025
Adresa
Hartigova, Praha, Žižkov
ID
964628
Stavba
Cihlová
Stav objektu
Dobrý
Patro
5. z 6
Vybaveno
Částečně
Vlastnictví
Osobní
Užitná plocha
62 m2
Třída energetické náročnosti
D - Méně úsporná
Elektřina
230V
Odpad
Veřejná kanalizace
Telekomunikace
Telefon, Internet
Doprava
MHD
Voda
Vodovod

Kontaktovat makléře

Máte zájem o tento byt?

Tímto, v souladu s nařízením Evropského parlamentu a Rady (EU) 2016/679, v platném znění, prohlašuji, že mi je alespoň 16 let a uděluji tak svůj souhlas se zpracováním zadaných údajů (jméno, telefon, e-mail, ip adresa) společnosti B3 Technology, s.r.o., IČ: 07330600, se sídlem Novostavby 126/23, 435 11 Lom (správce dat), za účelem předání dotazu z tohoto formuláře Vámi vybranému inzerentovi a zpětného kontaktování mé osoby. Osobní údaje bude správce zpracovávat manuálně i automaticky přímo prostřednictvím svých zaměstnanců. Informace předané tímto formulářem budou uloženy v databázi správce maximálně po dobu 10 let. Odvolání souhlasu s uložením a zpracováním poskytnutých dat lze e-mailem na info@vitio.cz. V případě podezření na neoprávněné použití Vámi poskytnutých údajů máte právo předat podnět k šetření Úřadu pro ochranu osobních údajů. Více informací
Chystáte se prodat nemovitost?
Pomůžeme Vám!

Inzerát si prohlédlo 4 lidí

Prodejce

Ing. Andrea Hrubcová

Ing. Andrea Hrubcová

Hlídací pes

Chcete dostávat emailem podobné nabídky pronájmu bytů 2+1 v Praze 3?

Podobné nemovitosti