Prodej rodinného domu, Újezd u Přelouče, 146 m2

Újezd u Přelouče

8 190 000 Kč /za nemovitost HYPOTÉKA od 36 604 Kč /za měsíc
Exkluzivní partneři v Újezdu u Přelouče

Informace k domu

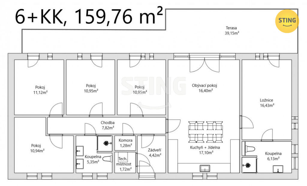
Nabízíme k prodeji moderní a prostorný dům o dispozici 6+kk s užitnou plochou 148 m², situovaný na pozemku o velikosti 1000 m². Tento dům představuje dokonalou kombinaci komfortu moderního bydlení a klidného, přírodou obklopeného prostředí. Soukromá ložnice s vlastní koupelnou poskytuje komfort a soukromí, zatímco podlahové vytápění a krbová kamna vytvářejí příjemnou a útulnou atmosféru. Dům je zařazen do energetické třídy B, což zajišťuje úsporné a efektivní provozní náklady.

Pozemek nabízí dostatek prostoru pro zahradní relaxaci, zahradnictví či volnočasové aktivity a je vybaven zahradním domkem a skleníkem. Parkování je řešeno pro tři automobily, což zajišťuje pohodlí bez starostí.

Újezd u Přelouče je klidná a atraktivní lokalita, která zároveň umožňuje rychlý a pohodlný přístup do okolních měst. Přelouč je dostupná za 17 minut, Chlumec nad Cidlinou za 9 minut a Pardubice přibližně za 25 minut.

Tento dům je ideální volbou pro rodiny nebo páry, které hledají komfortní bydlení v harmonickém a klidném prostředí, aniž by se vzdaly moderního životního standardu. Využijte příležitosti a přesvědčte se sami, že právě zde může začít vaše nová životní kapitola. V případě více zájemců si majitel vyhrazuje právo prodat nejvýhodnější nabídce. Do konce února 2026 nabízíme prostřednictvím našeho partnera úrokové sazby od 4,29 % p.a. Více informací Vám sdělí náš specialista na prohlídce.

Parametry domu

Cena
8 190 000 Kč /za nemovitost Spočítat hypotéku
Aktualizováno
26. 1. 2026
Adresa
Újezd u Přelouče
ID
133864
Stavba
Cihlová
Stav objektu
Novostavba
Typ objektu
Přízemní
Druh objektu
Samostatný
Lokalita objektu
Klidná část obce
Užitná plocha
146 m2
Zastavěná plocha
146 m2
Podlahová plocha
146 m2
Plocha pozemku
1001 m2
Třída energetické náročnosti
B - Velmi úsporná
Elektřina
230V
Odpad
Septik
Topení
Lokální tuhá paliva
Komunikace
Asfaltová
Doprava
Dálnice, Silnice, Autobus
Voda
Vodovod

Kontaktovat makléře

Máte zájem o tento dům?

Tímto, v souladu s nařízením Evropského parlamentu a Rady (EU) 2016/679, v platném znění, prohlašuji, že mi je alespoň 16 let a uděluji tak svůj souhlas se zpracováním zadaných údajů (jméno, telefon, e-mail, ip adresa) společnosti B3 Technology, s.r.o., IČ: 07330600, se sídlem Novostavby 126/23, 435 11 Lom (správce dat), za účelem předání dotazu z tohoto formuláře Vámi vybranému inzerentovi a zpětného kontaktování mé osoby. Osobní údaje bude správce zpracovávat manuálně i automaticky přímo prostřednictvím svých zaměstnanců. Informace předané tímto formulářem budou uloženy v databázi správce maximálně po dobu 10 let. Odvolání souhlasu s uložením a zpracováním poskytnutých dat lze e-mailem na info@vitio.cz. V případě podezření na neoprávněné použití Vámi poskytnutých údajů máte právo předat podnět k šetření Úřadu pro ochranu osobních údajů. Více informací
Chystáte se prodat nemovitost?
Pomůžeme Vám!

Inzerát si prohlédlo 12 lidí

Prodejce

Bohumil Kopejsko

Bohumil Kopejsko

Hlídací pes

Chcete dostávat emailem podobné nabídky prodeje rodinných domů v Újezdu u Přelouče?

Podobné nemovitosti