Pronájem bytu 2+kk, Ostrava, 30. dubna, 47 m2 (ID: 2505594)

30. dubna, Moravská Ostrava

14 000 Kč /za měsíc Získejte výhodnou HYPOTÉKU

(Cena nájmu BEZ služeb, kauce a provize)

Exkluzivní partneři v Ostravě

Informace k bytu

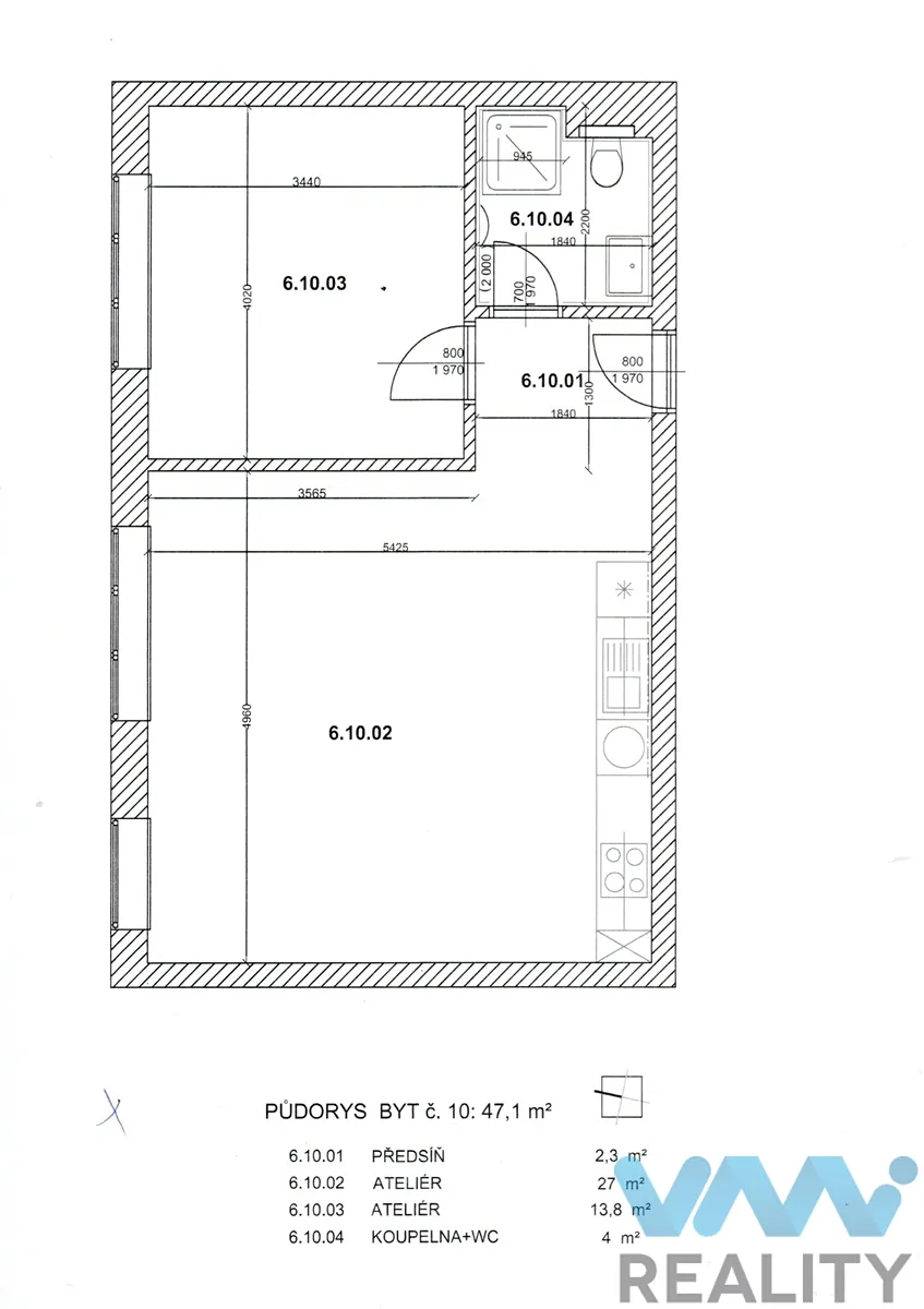
Nabízíme pronájem bytu 2+kk o ploše 47 m2 v kompletně zrekonstruovaném domě na ulici 30. dubna v Ostravě-Moravské Ostravě. Byt se nachází v 5. poschodí, je prostorný a světlý, orientovaný do intravilánu. K bytu je k dispozici prostorná samostatná kóje na poschodí. Kuchyň je propojená s obývací částí, další pokoj je samostatný a neprůchozí. Kuchyň je vybavená linkou včetně vestavěných spotřebičů (myčka, sklokeramická deska, elektrická trouba, digestoř). Koupelna a toaleta jsou spojené, v koupelně je sprchový kout a umyvadlo se skříňkou.

Podlahy v bytě jsou v kombinaci vinyl a velkoformátová dlažba, celý byt má stropní světla, na všech oknech jsou žaluzie. Byt je vybaven EZS, připojením k internetu a domovní anténou.
V domě je výtah, dům i byt je bezbariérový.

Cena za nájem je 14.000,- Kč bez záloh na služby spojených s užíváním bytu, které se pohybují ve výši cca 5.000,- Kč (elektřina pro byt, teplo-dálkové od Veolia, teplá a studená voda, výtah, úklid a elektřina společných prostor). Vratná jistota/kauce je stanovena ve výši 30.000,- Kč a provize 14.000,- Kč. Nabízíme možnost dlouhodobého pronájmu, jedná se o nájemní bydlení, kdy pronajímatel je vlastník domu.

K dispozici od 1. 12. 2025.

V případě jakýchkoliv dotazů nás kontaktujte, doporučujeme prohlídku!

Parametry bytu

Cena
14 000 Kč /za měsíc
Poznámka k ceně
Cena nájmu BEZ služeb, kauce a provize
Aktualizováno
8. 11. 2025
Adresa
30. dubna, Moravská Ostrava
ID
0362
Stavba
Smíšená
Stav objektu
Po rekonstrukci
Patro
6. z 6
Vybaveno
Ne
Lokalita objektu
Centrum obce
Vlastnictví
Osobní
Užitná plocha
47 m2
Podlahová plocha
47 m2
Třída energetické náročnosti
B - Velmi úsporná
Elektřina
230V
Plyn
Plynovod
Odpad
Veřejná kanalizace
Komunikace
Asfaltová
Telekomunikace
Kabelové rozvody
Doprava
Vlak, Dálnice, Silnice, MHD, Autobus
Voda
Vodovod
Topné těleso
Radiátory
Zdroj topení
Ústřední dálkové
Výtah
Bezbarierový přístup

Kontaktovat makléře

Máte zájem o tento byt?

Tímto, v souladu s nařízením Evropského parlamentu a Rady (EU) 2016/679, v platném znění, prohlašuji, že mi je alespoň 16 let a uděluji tak svůj souhlas se zpracováním zadaných údajů (jméno, telefon, e-mail, ip adresa) společnosti B3 Technology, s.r.o., IČ: 07330600, se sídlem Novostavby 126/23, 435 11 Lom (správce dat), za účelem předání dotazu z tohoto formuláře Vámi vybranému inzerentovi a zpětného kontaktování mé osoby. Osobní údaje bude správce zpracovávat manuálně i automaticky přímo prostřednictvím svých zaměstnanců. Informace předané tímto formulářem budou uloženy v databázi správce maximálně po dobu 10 let. Odvolání souhlasu s uložením a zpracováním poskytnutých dat lze e-mailem na info@vitio.cz. V případě podezření na neoprávněné použití Vámi poskytnutých údajů máte právo předat podnět k šetření Úřadu pro ochranu osobních údajů. Více informací
Chystáte se prodat nemovitost?
Pomůžeme Vám!

Inzerát si prohlédlo 0 lidí

Prodejce

Lenka Bernatíková

Lenka Bernatíková

Hlídací pes

Chcete dostávat emailem podobné nabídky pronájmu bytů 2+kk v Ostravě?

Podobné nemovitosti