Prodej bytu 3+1, Vsetín, Jasenická, 72 m2

Jasenická, Vsetín

3 490 000 Kč /za nemovitost HYPOTÉKA od 15 598 Kč /za měsíc

(za nemovitost)

Exkluzivní partneři v Vsetíně

Informace k bytu

Ráda bych Vás provedla a představila Vám k prodeji Družstevní byt 3+1, který lze převést do OV. Byt je určen k rekonstrukci.

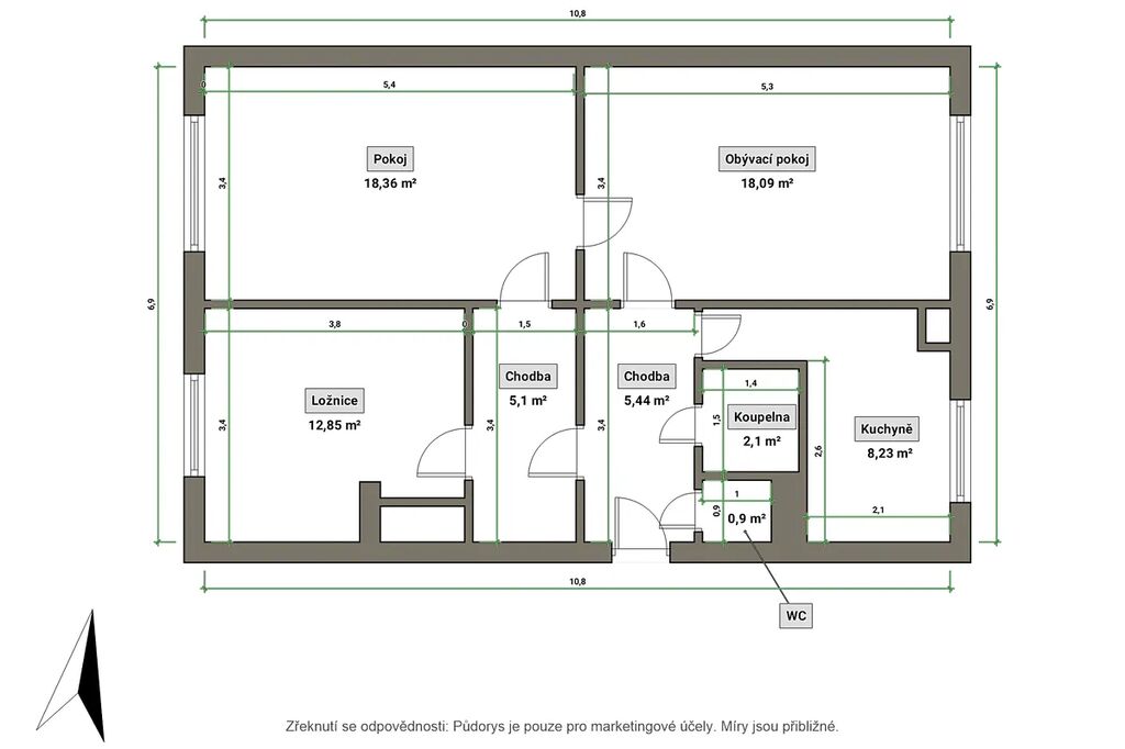
Využijte jedinečnou možnost koupit byt k bydlení, nebo investici ve vyhledávané lokalitě Luhu na ulici Jasenická ve Vsetíně. Byt 3+1 o rozloze cca 72 m2 se dvěma sklepy.

Bytová jednotka se nachází ve zvýšeném 1. NP panelového domu. Dispozici bytu tvoří předsíň a další prostorná chodba, obývací pokoj, kuchyně. Dále jsou zde 2 veliké pokoje, koupelna se sprchovým koutem a samostatné WC.

Byt zatím nemá balkon (je zde plánovaná výstavba nových balkonů/lodžií).

Jistě oceníte tyto výhody:
- Klidná lokalita pro rodinné bydlení.
- Koupelna se sprchovým koutem.
- Dostatek úložných prostor.
- Bytový dům po kompletní revitalizaci.
- Parkování v blízkosti domu.

Luh patří mezi vyhledávané lokality ve Vsetíně. Najdete zde veškeré občanské vybavení (např. MŠ, ZŠ, obchod, restaurace, lékaře), MHD - dobrou dostupnost do centra města, ale také krásné okolí na procházky.

Neváhejte a domluvte si prohlídku. Ráda Vám odpovím na Vaše dotazy a nemovitostí provede Martina.

Parametry bytu

Cena
3 490 000 Kč /za nemovitost Spočítat hypotéku
Poznámka k ceně
za nemovitost
Aktualizováno
20. 1. 2026
Adresa
Jasenická, Vsetín
Stavba
Panelová
Stav objektu
Dobrý
Patro
1.
Vlastnictví
Družstevní
Užitná plocha
72 m2
Třída energetické náročnosti
G - Mimořádně nehospodárná
Doprava
Vlak, Silnice, MHD, Autobus
Voda
Místní zdroj vody
Sklep
Výtah
Bezbarierový přístup
Převod do OV

Kontaktovat makléře

Realitní kancelář

MS reality

třída Tomáše Bati 385, Zlín

Chystáte se prodat nemovitost?
Pomůžeme Vám!

Máte zájem o tento byt?

Tímto, v souladu s nařízením Evropského parlamentu a Rady (EU) 2016/679, v platném znění, prohlašuji, že mi je alespoň 16 let a uděluji tak svůj souhlas se zpracováním zadaných údajů (jméno, telefon, e-mail, ip adresa) společnosti B3 Technology, s.r.o., IČ: 07330600, se sídlem Novostavby 126/23, 435 11 Lom (správce dat), za účelem předání dotazu z tohoto formuláře Vámi vybranému inzerentovi a zpětného kontaktování mé osoby. Osobní údaje bude správce zpracovávat manuálně i automaticky přímo prostřednictvím svých zaměstnanců. Informace předané tímto formulářem budou uloženy v databázi správce maximálně po dobu 10 let. Odvolání souhlasu s uložením a zpracováním poskytnutých dat lze e-mailem na info@vitio.cz. V případě podezření na neoprávněné použití Vámi poskytnutých údajů máte právo předat podnět k šetření Úřadu pro ochranu osobních údajů. Více informací
Chystáte se prodat nemovitost?
Pomůžeme Vám!

Inzerát si prohlédlo 17 lidí

Prodejce

Martina Sušňová

Martina Sušňová

Hlídací pes

Chcete dostávat emailem podobné nabídky prodeje bytů 3+1 v Vsetíně?

Top nabídky

Podobné nemovitosti