Prodej rodinného domu, Rokycany - Nové Město, Voldušská, 137 m2 (ID: 2496520)

Voldušská, Rokycany, Nové Město

14 161 584 Kč /za nemovitost HYPOTÉKA od 63 294 Kč /za měsíc

(provizi hradí prodávající)

Exkluzivní partneři v Rokycanech

Podlahy

Stěhovací služby

Informace k domu

Terasy Rokycany – moderní bydlení v přírodě, s benefity města.

Aktuálně: nemovitosti č. 4 a č. 5 jsou již prodané nebo rezervované.

Představujeme nový rezidenční projekt Terasy Rokycany, který přináší moderní bydlení obklopené přírodou, a přitom jen pár minut od centra města. Projekt vzniká v širším centru Rokycan, na mírném jihozápadním svahu v jedinečné lokalitě obklopené více než 80 vzrostlými stromy. Díky tomu nabídne výjimečnou atmosféru klidu a soukromí.

V projektu vznikne pouze šest rodinných domů, což zaručí vysokou míru soukromí, klidu a exkluzivity.

Moderní dřevostavby – pohodlí bez kompromisů.

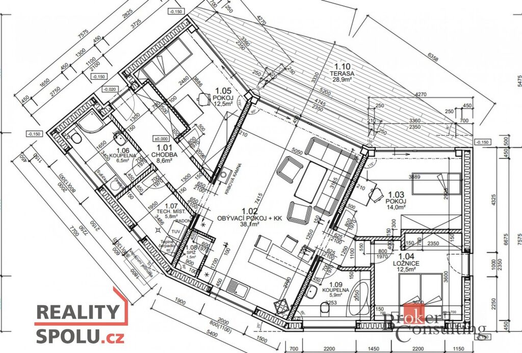
Domy v projektu Terasy Rokycany budou realizovány jako přízemní bezbariérové bungalovy s ideální dispozicí pro čtyřčlennou rodinu. Obytný prostor s podlahovou plochou 109,6 m2 plynule naváže na zastřešenou terasu o ploše 28,9 m2 přístupnou přes velké prosklené portály, které propojí interiér s exteriérem a umožní téměř celoroční život venku.

Důraz je kladen na kvalitu provedení, funkčnost a příjemné bydlení. Domy budou v energetické třídě A, s nízkými provozními náklady a moderním designem, který kombinuje dřevo, světlo, vzdušnost a prostor.

Soukromí a bezpečí pro celou rodinu.

Součástí projektu je nově budovaná soukromá komunikace ze zámkové dlažby (šířka 5,5 m), zakončená jako slepá ulice – bez průjezdu, pouze pro obyvatele Teras Rokycany. Každá parcela nabídne parkování pro dvě auta, s možností dalšího stání na příjezdové cestě.

Klid, komfort a příroda – vše na dosah.

Projekt se nachází v ideální lokalitě s vynikající dostupností. Dálnice D5 zajišťuje rychlé spojení s Prahou i Plzní, základní i mateřská škola jsou jen pár minut chůze. V blízkosti najdete nemocnici, centrum města, obchody, poštu i sportoviště. Samozřejmostí je také dostupnost autobusu, vlaku, koupaliště či krytého bazénu.

Přijďte se podívat osobně.

K dispozici je již dokončený a obývaný vzorový dům v Kamenném Újezdě u Rokycan, kde si můžete osobně prohlédnout kvalitu provedení i atmosféru tohoto moderního bydlení.

Rezervujte si svůj dům včas.

Výstavba projektu Terasy Rokycany je v přípravné fázi a prodej domů již odstartoval. Nenechte si ujít příležitost bydlet v krásné, klidné lokalitě obklopené zelení – a přitom jen pár minut od centra města.

Ceny za jednotlivé domy se liší dle rozdílné velikosti pozemků.

Pro více informací kontaktujte makléře.

Parametry domu

Cena
14 161 584 Kč /za nemovitost Spočítat hypotéku
Poznámka k ceně
provizi hradí prodávající
Aktualizováno
28. 1. 2026
Adresa
Voldušská, Rokycany, Nové Město
ID
78561
Stavba
Dřevěná
Stav objektu
Ve výstavbě
Vybaveno
Částečně
Typ objektu
Přízemní
Druh objektu
Samostatný
Vlastnictví
Osobní
Užitná plocha
137 m2
Plocha pozemku
751 m2
Třída energetické náročnosti
A - Mimořádně úsporná
Elektřina
120V, 230V
Odpad
Veřejná kanalizace
Komunikace
Dlážděná
Voda
Vodovod
Terasa

Kontaktovat makléře

Realitní kancelář

Logo Broker Consulting, a.s.

Broker Consulting, a.s.

Jiráskovo náměstí 2684/2, Plzeň

Chystáte se prodat nemovitost?
Pomůžeme Vám!

Máte zájem o tento dům?

Tímto, v souladu s nařízením Evropského parlamentu a Rady (EU) 2016/679, v platném znění, prohlašuji, že mi je alespoň 16 let a uděluji tak svůj souhlas se zpracováním zadaných údajů (jméno, telefon, e-mail, ip adresa) společnosti B3 Technology, s.r.o., IČ: 07330600, se sídlem Novostavby 126/23, 435 11 Lom (správce dat), za účelem předání dotazu z tohoto formuláře Vámi vybranému inzerentovi a zpětného kontaktování mé osoby. Osobní údaje bude správce zpracovávat manuálně i automaticky přímo prostřednictvím svých zaměstnanců. Informace předané tímto formulářem budou uloženy v databázi správce maximálně po dobu 10 let. Odvolání souhlasu s uložením a zpracováním poskytnutých dat lze e-mailem na info@vitio.cz. V případě podezření na neoprávněné použití Vámi poskytnutých údajů máte právo předat podnět k šetření Úřadu pro ochranu osobních údajů. Více informací
Chystáte se prodat nemovitost?
Pomůžeme Vám!

Inzerát si prohlédlo 13 lidí

Hlídací pes

Chcete dostávat emailem podobné nabídky prodeje rodinných domů v Rokycanech?

Podobné nemovitosti