Pronájem bytu 2+kk, Bystřice pod Hostýnem, Sídliště, 46 m2

Sídliště, Bystřice pod Hostýnem

13 000 Kč /za měsíc Získejte výhodnou HYPOTÉKU

(+ služby a energie)

Exkluzivní partneři v Bystřici pod Hostýnem

Informace k bytu

Pronájem nových bytů v Bystřici pod Hostýnem – Sídliště.

Nabízíme moderní byty v nově zrekonstruovaném bytovém domě v ulici Sídliště, Bystřice pod Hostýnem.

Dům je po kompletní a zdařilé rekonstrukci dosahuje energetické třídy A, což zaručuje nízké provozní náklady a komfortní bydlení.

K dispozici jsou byty různých dispozic od 1+kk po 3+kk – ideální pro jednotlivce, páry i rodiny.

Standard vybavení:

- moderní PVC podlahy v obytných místnostech + dlažba,
- kuchyňská linka na míru včetně spotřebičů (lednice, sporák, digestoř, trouba i myčka),
- podlahové teplovodní vytápění,
- rekuperace pro stálý přísun čerstvého vzduchu,
- ke každému bytu je přiřazený sklep v 1PP,
- k některým bytům pohodlné terasy.

Možnost pronájmu parkovacího stání za 500 Kč/měsíc.

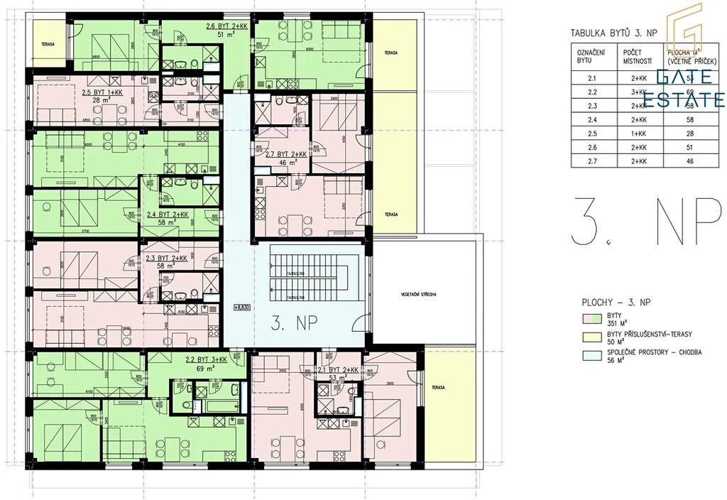
V tomto inzerátu uvádím byt 2kk, 46m2 + 18m2 terasa a sklep, umístěný v 3NP. Byt je vybavený kuchyňskou linkou na míru vč. spotřebičů výše uvedených. Pro lepší představu jsme pro Vás vytvořili 3D půdorysy (rozmístění nábytku je pouze orientační) pro lepší čitelnost a vizualizaci budoucí kuchyně. V barevném půdorysu, který uvádíme ve fotografiích, se jedná o byt č. 2.7.

Platební podmínky - měsíčně:
Nájem činí 13.000,-Kč + služby (1.200,-Kč elektřina, 900,-Kč topení, úklid a osvětlení spol. prostor 350,-Kč, studená voda 600,-Kč/os, ohřev TV 300,-Kč/os, odvoz odpadu 100,-Kč). Nutno zmínit, že byty jsou nové a nikdo v těchto bytech ještě nebydlel. Zálohy na služby a energie jsou tedy odhadované a po určitém čase užívání se upraví dle reálné spotřeby aby nevznikaly větší přeplatky či nedoplatky). V tuto chvíli jsme zvolili zálohy na stranu bezpečnou. V případě 2 osob celková měsíční platba činí 17.350,-Kč.

Vratná kauce je ve výši dvou nájmů. Jednorázová provize činí jeden nájem + DPH.
Preferovaný je dlouhodobý pronájem bez domácích mazlíčků (psi a kočky).

K nastěhování předběžně od 1. 4. 2026.

V případě zájmu o jakékoliv informace mě prosím kontaktujte, rád se s Vámi sejdu, projdeme si půdorysy a zodpovím vám veškeré dotazy. Podle možností stavby je také možné si byty projít přímo na místě.

Parametry bytu

Cena
13 000 Kč /za měsíc
Poznámka k ceně
+ služby a energie
Aktualizováno
27. 11. 2025
Adresa
Sídliště, Bystřice pod Hostýnem
ID
0580
Stavba
Cihlová
Stav objektu
Po rekonstrukci
Patro
3. z 3
Vybaveno
Částečně
Vlastnictví
Osobní
Užitná plocha
46 m2
Zastavěná plocha
666 m2
Podlahová plocha
46 m2
Třída energetické náročnosti
A - Mimořádně úsporná
Ukazatel energetické náročnosti
56 kWh/m2 za rok
Komunikace
Asfaltová
Doprava
Vlak, Silnice, Autobus
Topné těleso
Podlahové vytápění
Zdroj topení
Tepelné čerpadlo
Zdroj teplé vody
Tepelné čerpadlo
Terasa

Kontaktovat makléře

Máte zájem o tento byt?

Tímto, v souladu s nařízením Evropského parlamentu a Rady (EU) 2016/679, v platném znění, prohlašuji, že mi je alespoň 16 let a uděluji tak svůj souhlas se zpracováním zadaných údajů (jméno, telefon, e-mail, ip adresa) společnosti B3 Technology, s.r.o., IČ: 07330600, se sídlem Novostavby 126/23, 435 11 Lom (správce dat), za účelem předání dotazu z tohoto formuláře Vámi vybranému inzerentovi a zpětného kontaktování mé osoby. Osobní údaje bude správce zpracovávat manuálně i automaticky přímo prostřednictvím svých zaměstnanců. Informace předané tímto formulářem budou uloženy v databázi správce maximálně po dobu 10 let. Odvolání souhlasu s uložením a zpracováním poskytnutých dat lze e-mailem na info@vitio.cz. V případě podezření na neoprávněné použití Vámi poskytnutých údajů máte právo předat podnět k šetření Úřadu pro ochranu osobních údajů. Více informací
Chystáte se prodat nemovitost?
Pomůžeme Vám!

Inzerát si prohlédlo 14 lidí

Prodejce

Mgr. Jiří Kaňa, MBA

Mgr. Jiří Kaňa, MBA

Hlídací pes

Chcete dostávat emailem podobné nabídky pronájmu bytů 2+kk v Bystřici pod Hostýnem?

Podobné nemovitosti