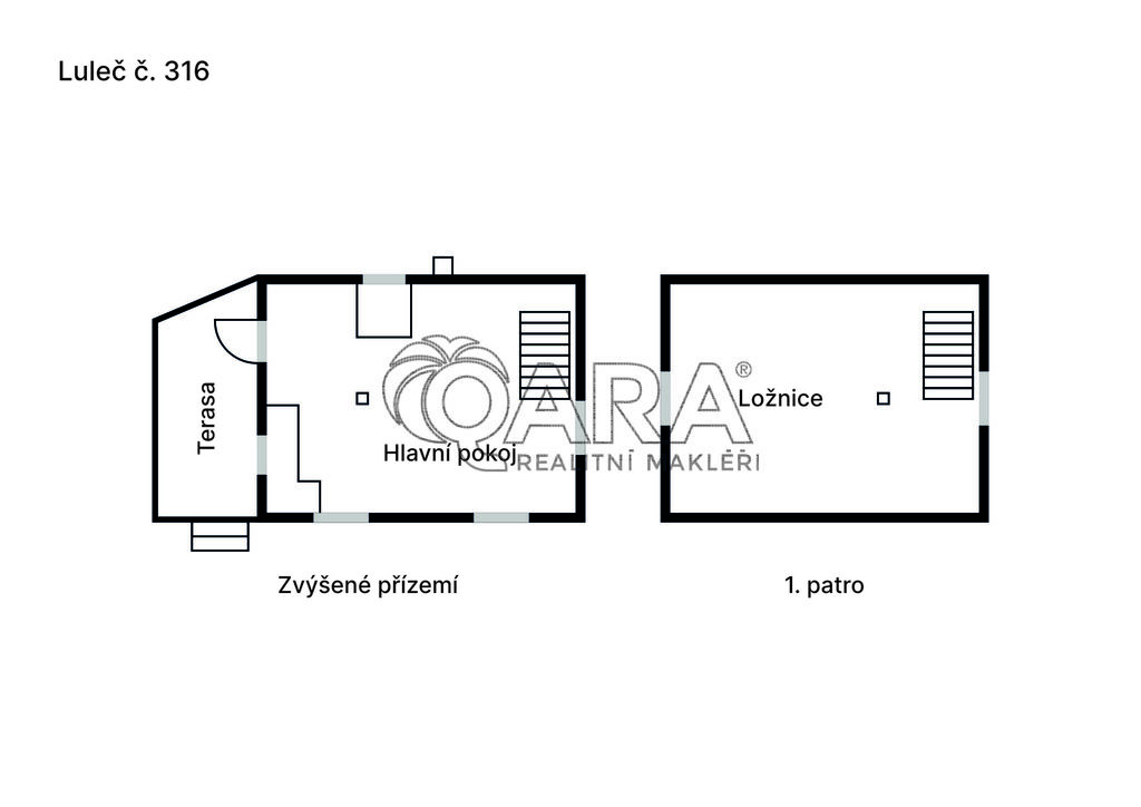
Prodej chaty, Luleč, 35 m2

Luleč

3 180 000 Kč /za nemovitost HYPOTÉKA od 14 213 Kč /za měsíc
Exkluzivní partneři v Lulči

Informace k domu

Hledáte místo, kde se zastaví čas, kde ráno zpívají ptáci a večer slyšíte jen praskání dřeva v kamnech?
Tahle celodřevěná chata z modřínu v obci Luleč, pár minut od Vyškova, nabízí přesně to – klid, vůni lesa a poctivou stavbu, která vydrží generace.

Chata byla postavena v roce 2012, má užitnou plochu 35 m² a zastavěnou 27 m².
Pozemek o velikosti 498 m² je rovinatý, oplocený a obklopený zelení.

Stavba je kvalitně zateplená (12 cm vaty, parozábrana, termoskla, šindelová střecha s izolací), má měděné rozvody elektřiny, rozvody pro užitkovou vodu a certifikovaný zděný komín.
Je ideální k rekreaci.

Luleč je vyhledávaná lokalita s krásnou přírodou, přírodním koupalištěm U Libuše, lesy a turistickými stezkami.
Perfektní dostupnost – 10 minut od Vyškova, 30 minut z Brna.

Místo, kde se dýchá lépe. Přijeďte se podívat – možná právě tady najdete svůj klid.

Parametry domu

Cena
3 180 000 Kč /za nemovitost Spočítat hypotéku
Aktualizováno
30. 10. 2025
Adresa
Luleč
ID
17814
Stavba
Dřevěná
Stav objektu
Velmi dobrý
Vybaveno
Částečně
Typ objektu
Patrový
Druh objektu
Samostatný
Lokalita objektu
Okraj obce
Užitná plocha
35 m2
Zastavěná plocha
27 m2
Podlahová plocha
533 m2
Plocha pozemku
533 m2
Plocha zahrady
498 m2
Třída energetické náročnosti
G - Mimořádně nehospodárná
Elektřina
230V
Odpad
Trativod
Komunikace
Zpevněná
Voda
Retenční nádrž na dešt’ovou vodu
Převod do OV

Kontaktovat makléře

Realitní kancelář

Logo QARA, s.r.o.

QARA, s.r.o.

Šafaříkova 201/17, Praha

Chystáte se prodat nemovitost?
Pomůžeme Vám!

Máte zájem o tento dům?

Tímto, v souladu s nařízením Evropského parlamentu a Rady (EU) 2016/679, v platném znění, prohlašuji, že mi je alespoň 16 let a uděluji tak svůj souhlas se zpracováním zadaných údajů (jméno, telefon, e-mail, ip adresa) společnosti B3 Technology, s.r.o., IČ: 07330600, se sídlem Novostavby 126/23, 435 11 Lom (správce dat), za účelem předání dotazu z tohoto formuláře Vámi vybranému inzerentovi a zpětného kontaktování mé osoby. Osobní údaje bude správce zpracovávat manuálně i automaticky přímo prostřednictvím svých zaměstnanců. Informace předané tímto formulářem budou uloženy v databázi správce maximálně po dobu 10 let. Odvolání souhlasu s uložením a zpracováním poskytnutých dat lze e-mailem na info@vitio.cz. V případě podezření na neoprávněné použití Vámi poskytnutých údajů máte právo předat podnět k šetření Úřadu pro ochranu osobních údajů. Více informací
Chystáte se prodat nemovitost?
Pomůžeme Vám!

Inzerát si prohlédlo 3 lidí

Prodejce

Renata Válková

Renata Válková

Hlídací pes

Chcete dostávat emailem podobné nabídky prodeje chat v Lulči?

Top nabídky

Podobné nemovitosti