Prodej rodinného domu, Třinec - Kanada, Sadová, 220 m2 (ID: 2495433)

Sadová, Třinec, Kanada

5 800 000 Kč /za nemovitost HYPOTÉKA od 25 922 Kč /za měsíc

(V ceně je zahrnut právní a realitní servis.)

Exkluzivní partneři v Třinci

Informace k domu

Prodej rodinného domu, 220 m², Třinec - Kanada, ul. Sadová

Hledáte klidné rodinné bydlení v Třinci? Tak už nehledejte, protože máme nabídku přímo pro vás.
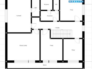
Nabízíme prodej RD ve vyhledávané lokalitě městské části obce Třinec- Kanada. Jedná se o prostorný dům se dvěma obytnými podlažími, kde v 1. NP se nachází vstupní hala s krbem, pracovna, letní kuchyně, garáž s elektrickými vraty na dálkové ovládání, technické zázemí domu a sprchový kout s WC. Ve 2. NP pak naleznete čtyři samostatné pokoje, kuchyň se spižírnou a koupelnu s WC. Vytápění zajišťuje nový plynový kondenzační kotel, ohřev vody pak el. bojler. Ve 2. NP lze vytápět i krbovými kamny a v 1. NP pak krbem.1NP je bezbariérové. Zahrada je oplocená, disponuje skleníkem a vzrostlými plodící ovocnými stromy. Dům se nachází uprostřed zeleně, nedaleko vodní nádrže Kanaďanka a poblíž nemocnice. Cca 5 minut pěší chůzí je MŠ, ZŠ, MHD, spojující místo s centrem obce. Nájezd na dálnici směr FM, OV, Český Těšín je cca 10 min. Dům je volný okamžitě a je obyvatelný bez nutnosti okamžitých investic.

Parametry domu

Cena
5 800 000 Kč /za nemovitost Spočítat hypotéku
Poznámka k ceně
V ceně je zahrnut právní a realitní servis.
Aktualizováno
30. 10. 2025
Adresa
Sadová, Třinec, Kanada
ID
918280
Stavba
Smíšená
Stav objektu
Dobrý
Vybaveno
Ano
Druh objektu
Samostatný
Lokalita objektu
Klidná část obce
Vlastnictví
Osobní
Užitná plocha
220 m2
Plocha pozemku
990 m2
Balkon

Kontaktovat makléře

Realitní kancelář

Logo M&M reality

M&M reality

ulice Krakovská 583/9, Praha

Chystáte se prodat nemovitost?
Pomůžeme Vám!

Máte zájem o tento dům?

Tímto, v souladu s nařízením Evropského parlamentu a Rady (EU) 2016/679, v platném znění, prohlašuji, že mi je alespoň 16 let a uděluji tak svůj souhlas se zpracováním zadaných údajů (jméno, telefon, e-mail, ip adresa) společnosti B3 Technology, s.r.o., IČ: 07330600, se sídlem Novostavby 126/23, 435 11 Lom (správce dat), za účelem předání dotazu z tohoto formuláře Vámi vybranému inzerentovi a zpětného kontaktování mé osoby. Osobní údaje bude správce zpracovávat manuálně i automaticky přímo prostřednictvím svých zaměstnanců. Informace předané tímto formulářem budou uloženy v databázi správce maximálně po dobu 10 let. Odvolání souhlasu s uložením a zpracováním poskytnutých dat lze e-mailem na info@vitio.cz. V případě podezření na neoprávněné použití Vámi poskytnutých údajů máte právo předat podnět k šetření Úřadu pro ochranu osobních údajů. Více informací
Chystáte se prodat nemovitost?
Pomůžeme Vám!

Inzerát si prohlédlo 1 lidí

Prodejce

Ivana Štrajtová

Ivana Štrajtová

Hlídací pes

Chcete dostávat emailem podobné nabídky prodeje rodinných domů v Třinci?

Podobné nemovitosti