Dolní Morava
(+popl. 4000, cena včetně provize a právního systému)
Naše společnost Vám zprostředkuje Nabízíme k prodeji moderní apartmánový dům se dvěma samostatnými a naprosto identickými jednotkami 3+kk, který se nachází v atraktivní horské lokalitě Dolní Morava – v údolí mezi Orlickými horami a Jeseníky, přímo na úpatí Králického Sněžníku.
Novostavba z roku 2022 nabízí vysoký standard zpracování i vybavení a představuje ideální příležitost pro investici s okamžitým výnosem nebo vlastní rekreaci v jedné z nejžádanějších horských oblastí v ČR.
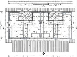
Každý apartmán má užitnou plochu 92 m², vlastní vstup, technickou místnost a samostatné měření energií.
V přízemí se nachází prostorný obývací pokoj s kuchyňským koutem a jídelnou, vstupní chodba s vestavěnou skříní a samostatná toaleta.
V patře jsou dvě ložnice a koupelna se sprchovým koutem, umyvadlem a toaletou.
Součástí každé jednotky je samostatná technická místnost s elektrickým kotlem, bojlerem, pračkou a úložnými skříněmi.
Každý apartmán má také vlastní kryté venkovní posezení pod přesahem střechy, které poskytuje příjemné soukromí i krásný výhled na okolní hory.
Apartmány jsou naprosto identické i v interiérovém vybavení – kompletně zařízené moderní kuchyně, kvalitní nábytek, designové koupelny a stylové dekorace.
Vytápění je podlahové, připojené na elektrický kotel, dům je napojen na Wi-Fi připojení a je plně připraven k okamžitému provozu bez nutnosti dalších investic.
Celková plocha pozemku činí 672 m² (z toho 150 m² zastavěná plocha a 522 m² zahrada).
Parkování je zajištěno přímo na pozemku.
Lokalita Dolní Morava
Dolní Morava patří mezi nejznámější a nejvyhledávanější horská střediska v České republice.
Nachází se v malebném údolí mezi Orlickými horami a Jeseníky, pod vrcholem Králického Sněžníku (1 424 m n. m.).
Dům je situován přímo mezi dvěma hlavními lyžařskými areály – Sněžník a Větrný vrch, které jsou vzdálené pouhých cca 500 metrů.
Oblast nabízí celoroční rekreační vyžití – v zimě moderní skiareály a běžkařské tratě, v létě turistiku, cyklistiku, lanový park, bobovou dráhu, Adventure park a ikonickou Stezku v oblacích.
Součástí areálu je také visutý most Sky Bridge 721 – nejdelší visutý most pro pěší na světě, který přitahuje turisty z celé Evropy.
V okolí se nachází wellness resorty, restaurace, kavárny a široká nabídka volnočasových aktivit, díky čemuž je Dolní Morava ideální jak pro osobní rekreaci, tak pro stabilní investiční pronájem s vysokou obsazeností po celý rok. Ev. číslo: 652934.
Máte zájem o tento dům?
Inzerát si prohlédlo 0 lidí
 
                                Michal Gažo
Chcete dostávat emailem podobné nabídky prodeje rodinných domů v Dolní Moravě?