Komenského náměstí, Rosice
Nadstandardně prostorný bezbariérový byt 3+1 (82,25 m²) k pronájmu v srdci Rosic – klid, světlo a pohodlí na dosah
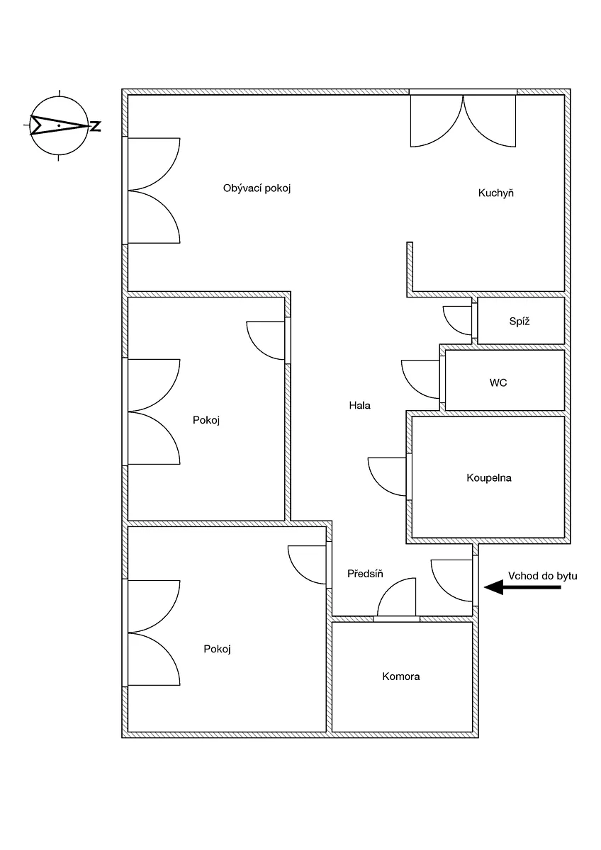
Hledáte byt k pronájmu, kde se budete cítit opravdu doma? Nabízíme vám výjimečně světlý a vzdušný byt o dispozici 3+1 a výměře 82,25 m², umístěný v přízemí pečlivě udržovaného bytového domu jen pár kroků od rosického náměstí. Tento byt je ideální volbou pro rodinu, seniory i osoby se sníženou pohyblivostí – díky zcela bezbariérovému přístupu nejen do domu, ale i v celém bytě samotném.
Dispozičně je byt řešen s důrazem na soukromí a funkčnost. Po vstupu do předsíně vás přivítá příjemný pocit prostoru. Odtud vedou samostatné vstupy do prostorného dětského pokoje a šikovné komory. Následuje útulná centrální hala, která je rozcestníkem do všech klíčových místností – ložnice, koupelny, samostatného WC, spižírny a velkorysého obývacího pokoje. Z něj pak plynule vstoupíte do oddělené kuchyně, která nabízí dostatek místa pro vaření i rodinné stolování.
Všechny pokoje jsou neprůchozí, vzdušné a krásně prosvětlené díky velkým oknům, která propouští dostatek denního světla po celý den. Celý byt působí klidně a harmonicky – ideální prostředí pro pohodové bydlení.
Byt se pronajímá částečně zařízený – v obývacím pokoji zůstává sedačka a kuchyňská linka se spotřebiči.
K bytu náleží i sklep, který nabízí praktický úložný prostor. Bytový dům má dva vstupy, z nichž jeden je plně bezbariérový, což ještě více zvyšuje komfort přístupu.
Lokalita je skutečně výjimečná – klidná ulice v těsné blízkosti rosického náměstí, s výbornou dostupností veškeré občanské vybavenosti: obchody, školky, školy, lékaři, pošta, úřady i kulturní vyžití. Vše máte doslova pár kroků od domovních dveří.
Tento byt nabízí dokonalé spojení praktičnosti, pohodlí a skvělé polohy. Pokud hledáte pronájem, kde se budete cítit opravdu dobře, je to právě tady. Doporučujeme osobní prohlídku – atmosféra bytu vás příjemně překvapí.
Červený kopec 824/24, Brno
Máte zájem o tento byt?
Inzerát si prohlédlo 1 lidí
 
                                Ilona Peňázová
Chcete dostávat emailem podobné nabídky pronájmu bytů 3+1 v Rosicích (okr. Brno-venkov)?