Pronájem bytu 3+kk, Praha - Hradčany, Na baště sv. Ludmily, 143 m2

Na baště sv. Ludmily, Praha, Hradčany

40 000 Kč /za měsíc Získejte výhodnou HYPOTÉKU

(+ elektřina a plyn se převádí na nájemníka)

Exkluzivní partneři v Praze 6

Stěhovací služby

Výkup a prodej starého nábytku

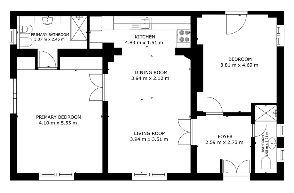
Informace k bytu

Rád bych Vám touto cestou nabídl velmi atraktivní byt k pronájmu nacházející se ve skvělé lokalitě Prahy 6 - Hradčany.

Hledáte byt, který má charakter, klid a adresu, která se neodmítá? Tahle prvorepubliková vila na Hradčanech nabízí přesně to: noblesu staré Prahy, soukromí za vysokým plotem a pocit domova hned při prvním kroku dovnitř.
Prostor, který dýchá - Velkorysých 94 m²: obývací pokoj plynule navazuje na jídelnu a plně vybavenou kuchyň – ideální pro večery s přáteli i klidná rána u kávy. Dvě neprůchozí ložnice (jedna s vestavěnými skříněmi) – soukromí bez kompromisů. Dvě koupelny se sprchou – komfort při každodenním provozu. Renovované dubové parkety, vysoké stropy, nadčasové materiály. Praktická úložná místnost/sklep cca 10 m². Nový plynový kotel – jistota a efektivní vytápění.

Zahradní úroveň (suterén) má svoje kouzlo: mimořádný klid, příjemná teplota v létě, nulový hluk z ulice – perfektní na práci i odpočinek.

Nemovitost je obehnaná vysokým plotem, monitorována bezpečnostními kamerami a byt je vybaven alarmem. Součástí je také příjemná, upravovaná zahrada, který vybízí k odpočinku a nebo setkání s přáteli, či rodinou u grilu. Další výhodou je, že se na každém podlaží nachází pouze jeden byt a máte zde jistotu parkovacího stání na dvoře.

Lokalita, ve které se dům nachází je opravdu velice krásná. Dům sousedí přímo s několika parky, zejména park Charlotty Garrigue Masarykové, je jen pár kroků od domu. Na Metro se dostanete během 5ti minut chůze a v okolí je několik prestižních škol a skvělých kaváren.

Zaujalo Vás to? Napište si o prohlídku. Rád Vám byt ukážu a povím, proč je tak výjimečný.

Parametry bytu

Cena
40 000 Kč /za měsíc
Poznámka k ceně
+ elektřina a plyn se převádí na nájemníka
Aktualizováno
28. 10. 2025
Adresa
Na baště sv. Ludmily, Praha, Hradčany
ID
28704
Stavba
Cihlová
Stav objektu
Velmi dobrý
Patro
3. z 4
Vybaveno
Ne
Vlastnictví
Osobní
Užitná plocha
143 m2
Třída energetické náročnosti
G - Mimořádně nehospodárná
Elektřina
230V
Plyn
Plynovod
Odpad
Veřejná kanalizace
Telekomunikace
Telefon, Internet, Kabelové rozvody
Voda
Místní zdroj vody
Sklep
Výtah
Parkování

Kontaktovat makléře

Máte zájem o tento byt?

Tímto, v souladu s nařízením Evropského parlamentu a Rady (EU) 2016/679, v platném znění, prohlašuji, že mi je alespoň 16 let a uděluji tak svůj souhlas se zpracováním zadaných údajů (jméno, telefon, e-mail, ip adresa) společnosti B3 Technology, s.r.o., IČ: 07330600, se sídlem Novostavby 126/23, 435 11 Lom (správce dat), za účelem předání dotazu z tohoto formuláře Vámi vybranému inzerentovi a zpětného kontaktování mé osoby. Osobní údaje bude správce zpracovávat manuálně i automaticky přímo prostřednictvím svých zaměstnanců. Informace předané tímto formulářem budou uloženy v databázi správce maximálně po dobu 10 let. Odvolání souhlasu s uložením a zpracováním poskytnutých dat lze e-mailem na info@vitio.cz. V případě podezření na neoprávněné použití Vámi poskytnutých údajů máte právo předat podnět k šetření Úřadu pro ochranu osobních údajů. Více informací
Chystáte se prodat nemovitost?
Pomůžeme Vám!

Inzerát si prohlédlo 0 lidí

Prodejce

Ing. Martin Hudek, MSc.

Ing. Martin Hudek, MSc.

Hlídací pes

Chcete dostávat emailem podobné nabídky pronájmu bytů 3+kk v Praze 6?

Podobné nemovitosti