Pronájem bytu 3+kk, Praha, Kateřinská, 120 m2 (ID: 2492480)

Kateřinská, Praha 2

39 000 Kč /za měsíc Získejte výhodnou HYPOTÉKU

(Zálohy na služby ve výši Kč 2.000,-Kč, každá další osoba + 1.500,-Kč, převod elektřiny a plynu)

Exkluzivní partneři v Praze 2

Stěhovací služby

Výkup a prodej starého nábytku

Informace k bytu

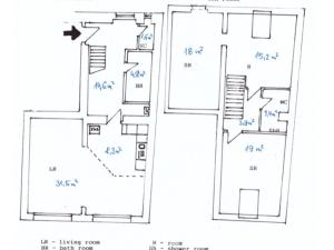
Pronájem krásného mezonetového bytu v prestižní ulici Kateřinská, Praha. Tento prostorný a světlý byt o celkové rozloze 120 metrů čtverečních nabízí ideální prostor pro vaše pohodlné bydlení. Disponuje dvěma ložnicemi, obývacím pokojem propojeným s plně vybavenou kuchyní a jídelnou, dvěma koupelnami a pracovnou, která je průchozí do jedné z ložnic a poskytuje vám možnost flexibilního využití prostoru.

Byt je plně zařízen nábytkem a vybaven nezbytnými spotřebiči, abyste se okamžitě mohli usadit a cítit se jako doma.

Kateřinská ulice se nachází v klidné části Prahy s vynikající dostupností veškeré občanské vybavenosti. V okolí najdete obchody, restaurace, kavárny a veřejnou dopravu (metro IP Pavlova, Karlovo nám.). Navíc se v blízkosti nachází parky (Botanická zahrada Albertov, Kateřinská zahrada) , které vám nabídnou možnosti pro relaxaci a rekreační aktivity.

K dispozici je také výtah (z mezipatra, přístup tedy není plně bezbariérový), který zajišťuje snadný přístup do bytu.

Pokud hledáte kvalitní a prostorné bydlení v prestižní lokalitě, neváhejte a kontaktujte mě pro více informací a domluvení prohlídky. Tento mezonetový byt je připraven splnit vaše bytové sny.

Vytápění a ohřev TUV vlastním plynovým kotlem.

Zálohy na služby ve výši Kč 2.000,-Kč 1 osoba, každá další os + 1.500,-Kč, elektroměr a plynoměr převeden na nájemce.

K nastěhování po dohodě.

Parametry bytu

Cena
39 000 Kč /za měsíc
Poznámka k ceně
Zálohy na služby ve výši Kč 2.000,-Kč, každá další osoba + 1.500,-Kč, převod elektřiny a plynu
Aktualizováno
27. 10. 2025
Adresa
Kateřinská, Praha 2
ID
13345
Stavba
Cihlová
Stav objektu
Velmi dobrý
Patro
4. z 5
Vybaveno
Ano
Lokalita objektu
Centrum obce
Vlastnictví
Osobní
Užitná plocha
120 m2
Podlahová plocha
120 m2
Třída energetické náročnosti
D - Méně úsporná

Kontaktovat makléře

Realitní kancelář

Logo QARA, s.r.o.

QARA, s.r.o.

Šafaříkova 201/17, Praha

Chystáte se prodat nemovitost?
Pomůžeme Vám!

Máte zájem o tento byt?

Tímto, v souladu s nařízením Evropského parlamentu a Rady (EU) 2016/679, v platném znění, prohlašuji, že mi je alespoň 16 let a uděluji tak svůj souhlas se zpracováním zadaných údajů (jméno, telefon, e-mail, ip adresa) společnosti B3 Technology, s.r.o., IČ: 07330600, se sídlem Novostavby 126/23, 435 11 Lom (správce dat), za účelem předání dotazu z tohoto formuláře Vámi vybranému inzerentovi a zpětného kontaktování mé osoby. Osobní údaje bude správce zpracovávat manuálně i automaticky přímo prostřednictvím svých zaměstnanců. Informace předané tímto formulářem budou uloženy v databázi správce maximálně po dobu 10 let. Odvolání souhlasu s uložením a zpracováním poskytnutých dat lze e-mailem na info@vitio.cz. V případě podezření na neoprávněné použití Vámi poskytnutých údajů máte právo předat podnět k šetření Úřadu pro ochranu osobních údajů. Více informací
Chystáte se prodat nemovitost?
Pomůžeme Vám!

Inzerát si prohlédlo 0 lidí

Prodejce

Monika Houdová

Monika Houdová

Hlídací pes

Chcete dostávat emailem podobné nabídky pronájmu bytů 3+kk v Praze 2?

Podobné nemovitosti