Prodej rodinného domu, Veverské Knínice, 135 m2 (ID: 2483850)

Veverské Knínice

Exkluzivní partneři v Veverských Knínicích

Informace k domu

Prodej RD na klíč 135 m², pozemek 800 m², Veverské Knínice, Brno-venkov

Ve výhradním zastoupení Vám zprostředkujeme prodej rodinného patrového domu Family s užitnou plochou 135 m² k výstavbě na pozemku o velikosti 800 m² v obci Veverské Knínice. Pozemek se nachází na kraji obce ve velmi klidné části. Stavební šířka pozemku je cca 15,5 m a délka cca 51,6 m. Vjezd na pozemek vede z asfaltové hlavní silnice. Tato nabídka RD na klíč je včetně pozemku a vodovodní a kanalizační přípojky, které budou přivedeny na hranici pozemku. Elektro přípojka může být umístěna u vjezdu na pozemek.
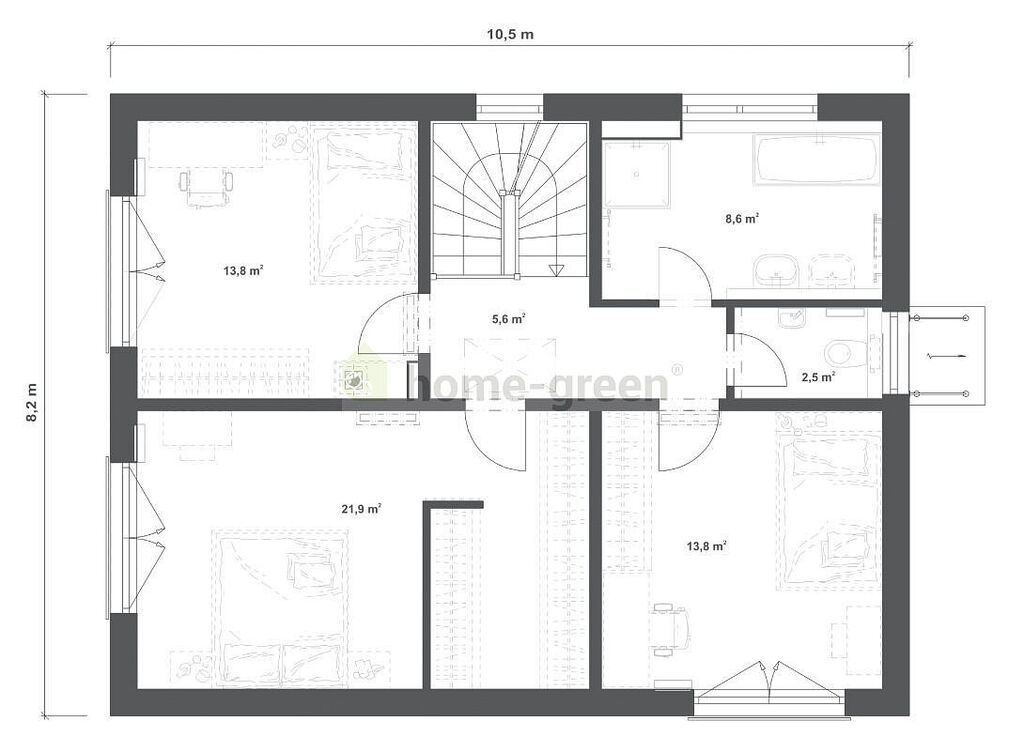
Dům dodavatele RD Rýmařov - Family 135 zaujme moderním designem, který je ideální také pro užší pozemky. Tento kompaktní dům nabízí promyšlenou otevřenou dispozici s velkými prosklenými plochami, které se rozprostírají přes obě podlaží, tím přinášejí dostatek světla do obývací, jídelní i kuchyňské části. Velké prosklené dveře vedou přímo na prostornou terasu, což je ideální místo pro relaxaci a společenská setkání. V poschodí se nachází ložnice s krásným výhledem a další dvě prostorné místnosti, které poskytují klid a naprosté soukromí. Tento dům dokonale spojuje moderní estetiku s praktickými potřebami rodiny, což z něj činí skvělou volbu pro pohodlné rodinné bydlení. Provedení domu - dispozice je 5 + kk. Rozměry domu 10,54 x 8,21 m.
Tepelné čerpadlo je v ceně domu. Čerpadlo vzduch - vzduch v zimě dům vyhřeje, v létě zase ochladí. Fotovoltaická elektrárna je v ceně domu. Systém ON GRID s akumulací do zásobníku TUV: využívá sluneční energii pro ohřev užitkové vody v 200 litrovém zásobníku. Základová deska je v ceně domu.
Veverské Knínice jsou obec v okrese Brno-venkov v Jihomoravském kraji. Leží na rozhraní Boskovické brázdy a Křižanovské vrchoviny. Krásná příroda v okolí obce poskytuje velké možnosti pro volnočasovou aktivitu v blízkosti Brněnské přehrady a hradu Veveří. V současné době je v obci 332 domů a žije tu přibližně 954 obyvatel. Obec je vzdálená cca 10 km od města Rosice a cca 20 Km západně od města Brno. Sjezd z dálnice D1 je v blízkosti 3 km u obce Ostrovačice. Uveřejněné fotografie RD k výstavbě jsou pouze ilustrativní. Nabídku doporučujeme a se zajištěním financování pomůžeme.

Parametry domu

Cena
9 992 960 Kč Spočítat hypotéku
Aktualizováno
24. 10. 2025
Adresa
Veverské Knínice
ID
N00013
Stavba
Dřevěná
Stav objektu
Projekt
Druh objektu
Samostatný
Vlastnictví
Osobní
Užitná plocha
135 m2
Zastavěná plocha
86 m2
Plocha pozemku
800 m2
Třída energetické náročnosti
A - Mimořádně úsporná

Kontaktovat makléře

Máte zájem o tento dům?

Tímto, v souladu s nařízením Evropského parlamentu a Rady (EU) 2016/679, v platném znění, prohlašuji, že mi je alespoň 16 let a uděluji tak svůj souhlas se zpracováním zadaných údajů (jméno, telefon, e-mail, ip adresa) společnosti B3 Technology, s.r.o., IČ: 07330600, se sídlem Novostavby 126/23, 435 11 Lom (správce dat), za účelem předání dotazu z tohoto formuláře Vámi vybranému inzerentovi a zpětného kontaktování mé osoby. Osobní údaje bude správce zpracovávat manuálně i automaticky přímo prostřednictvím svých zaměstnanců. Informace předané tímto formulářem budou uloženy v databázi správce maximálně po dobu 10 let. Odvolání souhlasu s uložením a zpracováním poskytnutých dat lze e-mailem na info@vitio.cz. V případě podezření na neoprávněné použití Vámi poskytnutých údajů máte právo předat podnět k šetření Úřadu pro ochranu osobních údajů. Více informací
Chystáte se prodat nemovitost?
Pomůžeme Vám!

Inzerát si prohlédlo 2 lidí

Prodejce

Ing. Hana Vaculíková

Ing. Hana Vaculíková

Hlídací pes

Chcete dostávat emailem podobné nabídky prodeje rodinných domů v Veverských Knínicích?

Podobné nemovitosti