Prodej rodinného domu, Kunějovice, 275 m2 (ID: 2483644)

Kunějovice

3 790 000 Kč /za nemovitost HYPOTÉKA od 16 939 Kč /za měsíc

(včetně DPH, včetně poplatků, včetně provize, včetně právního servisu)

Exkluzivní partneři v Kunějovicích

Podlahy

Stěhovací služby

Informace k domu

Hledáte místo, kde můžete uniknout z ruchu městského života a zároveň si užít absolutní soukromí? Tak tento prostor je pro Vás tou pravou volbou. Ve výhradním zastoupení nabízíme k prodeji stavební pozemky s jezírkem o rozloze 2 635 m², který poskytuje ideální prostor pro realizaci vašich potřeb. Na pozemku stojí nemovitost o zastavěné ploše 275 m². Podlahová plocha obytné části domu je cca 118 m². K nemovitosti patří bývalé chlévy 157 m².

Nemovitost se nachází cca 15 km od Plzně směr Karlovy Vary. Základní občanskou vybavenost naleznete ve 2 km vzdálených Všerubech. Zde najdete poštu, potraviny, koupaliště a další sportoviště. V Plzni pak naleznete vše ostatní.

Hlavní přednosti nemovitosti:
• Soukromí a klid: Usedlost se nachází na uzavřeném pozemku, kde žádný ze sousedů nemá přímý výhled na vaše pozemky. Užijete si tak dokonalou atmosféru klidu a soukromí, kterou vám toto místo nabízí. V minulosti zde předchozí majitelé měli plně soběstačnou zahradu a tuto tradici je možné opět obnovit.

• Objekt k rekonstrukci: Nemovitost se skládá z obytné části o dispozici 2+1, která je připravena na kompletní rekonstrukci. K dispozici jsou také dva rozlehlé chlévy, které můžete využít dle svých potřeb. Půdu můžete zrekonstruovat a vytvořit tak další prostorné místnosti. Ve fotografiích naleznete vizualizaci pro představu a inspiraci.

• Vlastní studna: Na pozemku se nachází vlastní studna, která zajišťuje přívod užitkové vody.

• Okrasné jezírko: K romantické atmosféře usedlosti přispívá krásné okrasné jezírko, které můžete využít nejen jako dekorativní prvek. Dnes slouží také pro svod vody ze střech nebo jako odvodnění pozemků.

• Inženýrské sítě: Do nemovitosti je zavedena elektřina a plyn. Obec plánuje vybudování obecního vodovodu (stavební povolení vydáno) a kanalizace (studie proveditelnosti dokončovaná v těchto dnech).

• Sklepní prostory: Nemovitost je částečně podsklepena tzv. mokrým sklepem ideálním například pro uskladnění potravin.

• Dotace: Lze žádat o dotaci v programu „Nová zelená úsporám“. Žadatelé dostanou až 1 mil. Kč na optimální zateplení, které je podmínkou získání zálohové dotace.

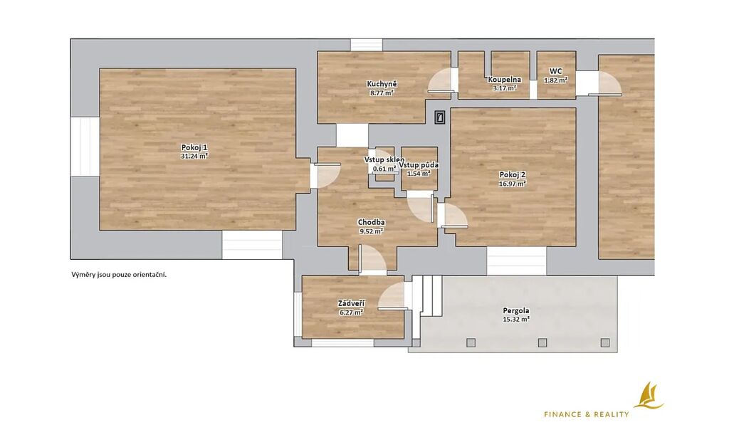
Dům je postaven ze smíšeného zdiva, střecha sedlová. Interiér tvoří krytá veranda využívaná k odpočinku, dále pak obývací pokoj, ložnice, kuchyně, koupelna a WC. Půdorys ve fotografiích. Pozemek je oplocen. Nemovitost má septik.

Energetická třída stanovena dočasně jako G, PENB který by tento údaj zpřesnil, zatím nemá RK k dispozici.

S financováním Vám rádi pomůžeme.

Fotografie Vám ani zdaleka nepřiblíží atmosféru místa, a proto Vás srdečně zveme na prohlídku.

Parametry domu

Cena
3 790 000 Kč /za nemovitost Spočítat hypotéku
Poznámka k ceně
včetně DPH, včetně poplatků, včetně provize, včetně právního servisu
Aktualizováno
24. 10. 2025
Adresa
Kunějovice
ID
00130
Stavba
Smíšená
Stav objektu
Před rekonstrukcí
Vybaveno
Ne
Druh objektu
Samostatný
Lokalita objektu
Okraj obce
Užitná plocha
275 m2
Zastavěná plocha
275 m2
Plocha pozemku
2635 m2
Elektřina
230V, 400V
Plyn
Plynovod
Odpad
Septik
Komunikace
Asfaltová
Doprava
Silnice, MHD, Autobus
Voda
Místní zdroj vody, Studna
Topné těleso
Kotel na tuhá paliva
Zdroj topení
Kotel na tuhá paliva
Zdroj teplé vody
Kotel na tuhá paliva
Sklep
Výtah
Parkování

Kontaktovat makléře

Máte zájem o tento dům?

Tímto, v souladu s nařízením Evropského parlamentu a Rady (EU) 2016/679, v platném znění, prohlašuji, že mi je alespoň 16 let a uděluji tak svůj souhlas se zpracováním zadaných údajů (jméno, telefon, e-mail, ip adresa) společnosti B3 Technology, s.r.o., IČ: 07330600, se sídlem Novostavby 126/23, 435 11 Lom (správce dat), za účelem předání dotazu z tohoto formuláře Vámi vybranému inzerentovi a zpětného kontaktování mé osoby. Osobní údaje bude správce zpracovávat manuálně i automaticky přímo prostřednictvím svých zaměstnanců. Informace předané tímto formulářem budou uloženy v databázi správce maximálně po dobu 10 let. Odvolání souhlasu s uložením a zpracováním poskytnutých dat lze e-mailem na info@vitio.cz. V případě podezření na neoprávněné použití Vámi poskytnutých údajů máte právo předat podnět k šetření Úřadu pro ochranu osobních údajů. Více informací
Chystáte se prodat nemovitost?
Pomůžeme Vám!

Inzerát si prohlédlo 9 lidí

Prodejce

Jakub Matějovic

Jakub Matějovic

Hlídací pes

Chcete dostávat emailem podobné nabídky prodeje rodinných domů v Kunějovicích?

Podobné nemovitosti