Prodej obchodního prostoru, Volyně, Palackého, 200 m2 (ID: 2479128)

Palackého, Volyně

5 000 000 Kč /za nemovitost HYPOTÉKA od 22 347 Kč /za měsíc

(včetně právního servisu)

Exkluzivní partneři v Volyni

Výkup a prodej starého nábytku

Pojištění a finance

Informace k nemovitosti

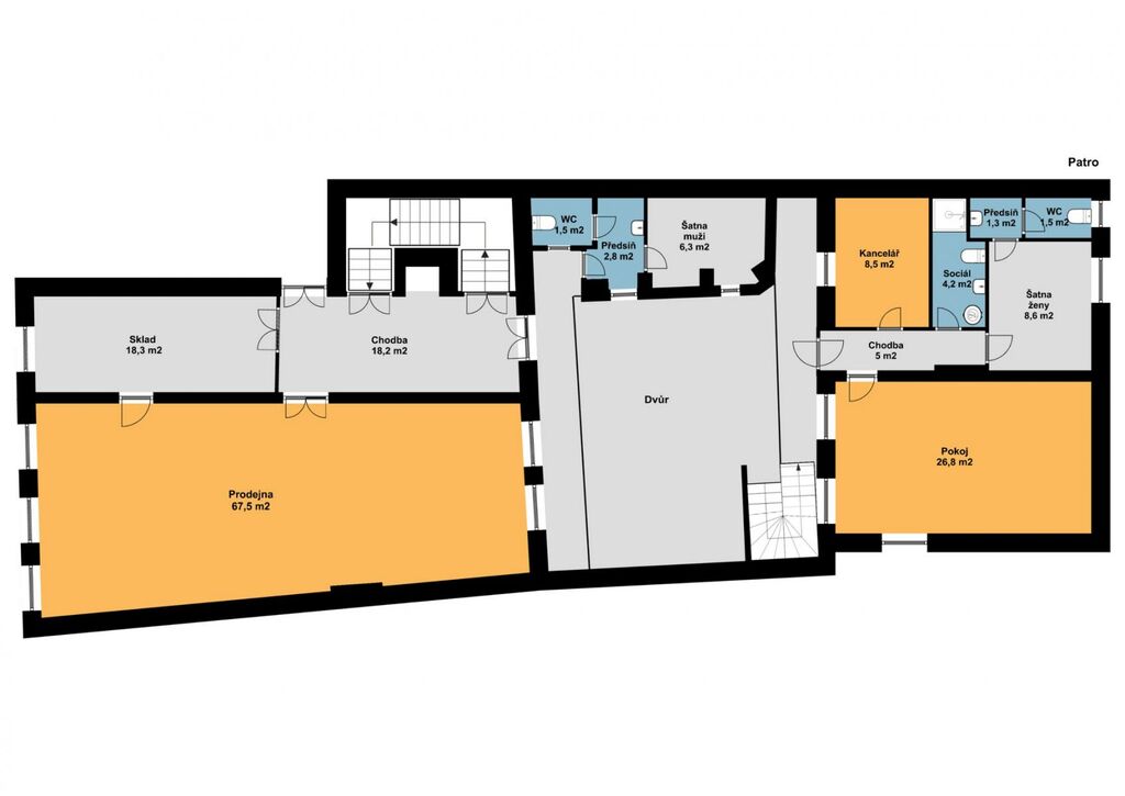
Nabízíme k prodeji nepodsklepený patrový dům ve Volyni, ulice Palackého. Dům má dvě nadzemní podlaží a nevyužitý půdní prostor. V 1 NP se nachází prodejna Tescomy, kancelářský prostor, sociální zařízení a sklady. Ve 2 NP je prodejna Second handu s kanceláří a sociálním zařízením, dále se zde nachází bytová jednotka se třemi pokoji, dvěma WC a koupelnou se sprchovým koutem. Nájemní smlouvy jsou uzavřeny na dobu neurčitou s tříměsíční výpovědné lhůtou. Voda a kanalizace je obecní, do domu je přiveden plyn. Nemovitost má široké možnosti využití skladových a prodejních prostor, možnosti vybudování vlastního bydlení nebo ponechání současného využití nemovitosti. Volyně je oblíbené turistické místo mezi Strakonicemi a Vimperkem. V okolí kompletní občanská vybavenost. Pro domluvení prohlídky a dalších informací kontaktujte makléře zakázky ing. Vendulu Kümmelovou.

Parametry nemovitosti

Cena
5 000 000 Kč /za nemovitost Spočítat hypotéku
Poznámka k ceně
včetně právního servisu
Aktualizováno
28. 11. 2025
Adresa
Palackého, Volyně
ID
1027
Stavba
Smíšená
Stav objektu
Dobrý
Typ objektu
Patrový
Užitná plocha
200 m2
Bezbarierový přístup

Kontaktovat makléře

Máte zájem o tuto nemovistost?

Tímto, v souladu s nařízením Evropského parlamentu a Rady (EU) 2016/679, v platném znění, prohlašuji, že mi je alespoň 16 let a uděluji tak svůj souhlas se zpracováním zadaných údajů (jméno, telefon, e-mail, ip adresa) společnosti B3 Technology, s.r.o., IČ: 07330600, se sídlem Novostavby 126/23, 435 11 Lom (správce dat), za účelem předání dotazu z tohoto formuláře Vámi vybranému inzerentovi a zpětného kontaktování mé osoby. Osobní údaje bude správce zpracovávat manuálně i automaticky přímo prostřednictvím svých zaměstnanců. Informace předané tímto formulářem budou uloženy v databázi správce maximálně po dobu 10 let. Odvolání souhlasu s uložením a zpracováním poskytnutých dat lze e-mailem na info@vitio.cz. V případě podezření na neoprávněné použití Vámi poskytnutých údajů máte právo předat podnět k šetření Úřadu pro ochranu osobních údajů. Více informací
Chystáte se prodat nemovitost?
Pomůžeme Vám!
Theleadway banner

Inzerát si prohlédlo 25 lidí

Prodejce

Ing. Vendula Kümmelová

Ing. Vendula Kümmelová

Hlídací pes

Chcete dostávat emailem podobné nabídky prodeje obchodních prostor v Volyni?

Podobné nemovitosti