Pronájem bytu 3+kk, Praha, Čakovická, 83 m2

Čakovická, Praha

38 500 Kč /za měsíc Získejte výhodnou HYPOTÉKU

(vratná jistota, náklady na bydlení 8200 Kč, poplatek za podnájem)

Exkluzivní partneři v Praze

Stěhovací služby

Výkup a prodej starého nábytku

Informace k bytu

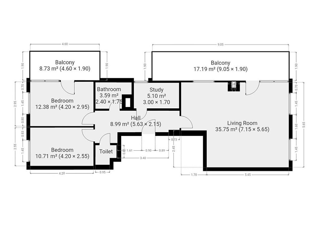
K dlouhodobému podnájmu nabízíme prostorný byt o dispozici 3+kk v novostavbě na adrese Čakovická 883/44, Praha 9. Byt o celkové výměře 83 m² se nachází ve 3. podlaží domu s výtahem. K bytu náleží velká terasa 25 m², garážové stání v ceně nájmu a sklepní kóje.

Byt se nabízí nevybavený, ale s kompletně zařízenou kuchyňskou linkou včetně varné desky, trouby, digestoře a myčky. Výhodou bytu je také praktická komora/šatna, která poskytuje dostatek úložného prostoru.

V koupelně se nachází vana a toaleta je oddělená. Z obývacího pokoje a ložnice je přímý vstup na terasu.

V okolí domu najdete obchodní centrum Letňany, restaurace, zastávky MHD, školu i školku. Výborná dostupnost do centra města i na dálnici D8.

Byt je volný k nastěhování od 1.11.2025.

Parametry bytu

Cena
38 500 Kč /za měsíc
Poznámka k ceně
vratná jistota, náklady na bydlení 8200 Kč, poplatek za podnájem
Aktualizováno
16. 10. 2025
Adresa
Čakovická, Praha
ID
N6857
Stavba
Cihlová
Stav objektu
Novostavba
Patro
3. z 7
Vybaveno
Ne
Typ objektu
Patrový
Lokalita objektu
Klidná část obce
Vlastnictví
Osobní
Užitná plocha
83 m2
Podlahová plocha
83 m2
Třída energetické náročnosti
B - Velmi úsporná
Elektřina
230V
Balkon
Garáž
Sklep
Terasa
Výtah
Parkování

Kontaktovat makléře

Máte zájem o tento byt?

Tímto, v souladu s nařízením Evropského parlamentu a Rady (EU) 2016/679, v platném znění, prohlašuji, že mi je alespoň 16 let a uděluji tak svůj souhlas se zpracováním zadaných údajů (jméno, telefon, e-mail, ip adresa) společnosti B3 Technology, s.r.o., IČ: 07330600, se sídlem Novostavby 126/23, 435 11 Lom (správce dat), za účelem předání dotazu z tohoto formuláře Vámi vybranému inzerentovi a zpětného kontaktování mé osoby. Osobní údaje bude správce zpracovávat manuálně i automaticky přímo prostřednictvím svých zaměstnanců. Informace předané tímto formulářem budou uloženy v databázi správce maximálně po dobu 10 let. Odvolání souhlasu s uložením a zpracováním poskytnutých dat lze e-mailem na info@vitio.cz. V případě podezření na neoprávněné použití Vámi poskytnutých údajů máte právo předat podnět k šetření Úřadu pro ochranu osobních údajů. Více informací
Chystáte se prodat nemovitost?
Pomůžeme Vám!

Inzerát si prohlédlo 1 lidí

Prodejce

Miloslava Kačerová

Miloslava Kačerová

Hlídací pes

Chcete dostávat emailem podobné nabídky pronájmu bytů 3+kk v Praze?

Podobné nemovitosti