Prodej vícegeneračního domu, Broumov, Přadlácká, 315 m2

Přadlácká, Broumov, Poříčí

3 490 000 Kč /za nemovitost HYPOTÉKA od 15 598 Kč /za měsíc
Exkluzivní partneři v Broumově

Informace k domu

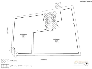
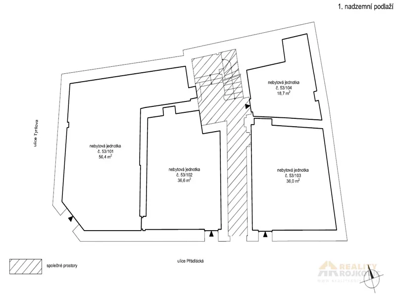
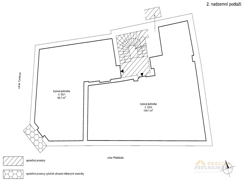
Prodej domu se dvěma byty a nebytovými prostory v blízkosti centra města. Dům je přístupný z ulic Přadlácká a Tyršova. V přízemí se nachází centrální chodba se vstupy do nebytových prostor a k bytům v prvním patře. Jednotka nebyt. prostoru o výměře 56 m² je v současnosti užívána jako prodejna autolaků a příslušenství. Tvoří ji prodejní plocha, kancelář se sociálním zařízením a je přístupná z rohu výše uvedených ulic. Další nebytové jednotky, každá se samostatným vchodem z ulice Přadlácká mají výměry 36,36 a 18 m². V prvním patře se nacházejí byty o velikosti 3+1 (104 m²) a 2+1 (66 m²), oba jsou ve stavu k rekonstrukci. Třetí nadzemní podlaží tvoří prostorné víceúrovňové podkroví, které je možné stavebně propojit s byty v nižším podlaží nebo využít k přestavbě na samostatný byt/byty o ploše 103 m² a 64 m². Podkrovní prostory jsou vedeny v katastru nemovitostí jako rozestavěné jednotky. Vytápění nebytových prostor je zajištěno el. přímotopy, bytů elektrokotlem/kotlem na TP. Plynová přípojka nabízí rovněž vytápění centrálním kotlem nebo každou jednotku individuálně lokálním plynovým kotlem . Objekt je částečně podsklepen. Byty a nebytové prostory jsou vymezeny na základě „Prohlášení vlastníka“.

Parametry domu

Cena
3 490 000 Kč /za nemovitost Spočítat hypotéku
Aktualizováno
7. 3. 2026
Adresa
Přadlácká, Broumov, Poříčí
Stavba
Cihlová
Stav objektu
Před rekonstrukcí
Druh objektu
V bloku
Lokalita objektu
Centrum obce
Užitná plocha
315 m2
Plocha pozemku
235 m2
Elektřina
230V, 400V
Plyn
Plynovod
Odpad
Veřejná kanalizace
Komunikace
Asfaltová
Doprava
Vlak, Silnice, Autobus
Voda
Vodovod
Zdroj topení
Elektrokotel, Přímotop
Zdroj teplé vody
Bojler - elektro
Sklep

Kontaktovat makléře

Realitní kancelář

REALITY ROJKOVIČ

Mírové náměstí 56, Broumov

Chystáte se prodat nemovitost?
Pomůžeme Vám!

Máte zájem o tento dům?

Tímto, v souladu s nařízením Evropského parlamentu a Rady (EU) 2016/679, v platném znění, prohlašuji, že mi je alespoň 16 let a uděluji tak svůj souhlas se zpracováním zadaných údajů (jméno, telefon, e-mail, ip adresa) společnosti B3 Technology, s.r.o., IČ: 07330600, se sídlem Novostavby 126/23, 435 11 Lom (správce dat), za účelem předání dotazu z tohoto formuláře Vámi vybranému inzerentovi a zpětného kontaktování mé osoby. Osobní údaje bude správce zpracovávat manuálně i automaticky přímo prostřednictvím svých zaměstnanců. Informace předané tímto formulářem budou uloženy v databázi správce maximálně po dobu 10 let. Odvolání souhlasu s uložením a zpracováním poskytnutých dat lze e-mailem na info@vitio.cz. V případě podezření na neoprávněné použití Vámi poskytnutých údajů máte právo předat podnět k šetření Úřadu pro ochranu osobních údajů. Více informací
Chystáte se prodat nemovitost?
Pomůžeme Vám!

Inzerát si prohlédlo 20 lidí

Prodejce

Jaroslav Rojkovič

Jaroslav Rojkovič

Hlídací pes

Chcete dostávat emailem podobné nabídky prodeje vícegeneračních domů v Broumově (okr. Náchod)?

Top nabídky

Podobné nemovitosti