Prodej rodinného domu, Rajhrad, Syrovická, 175 m2

Syrovická, Rajhrad

13 990 000 Kč /za nemovitost HYPOTÉKA od 62 527 Kč /za měsíc

(včetně provize RK)

Exkluzivní partneři v Rajhradu

Informace k domu

Nabízím k prodeji rodinný dům (č.2) o dispozici 5+kk, se zastřešeným parkovacím stáním na vlastním pozemku (283 m²), ve městě Rajhrad.
Rodinný dům o podlahové ploše 175 m² je ve fázi výstavby a je jeden ze čtyř nízkoenergetických rodinných domů na ulici Syrovická, v Rajhradě.

Energetické náročnost domu je klasifikována do třídy A - mimořádně úsporné.
Předpokládaný termín dokončení 3.kvartál 2026.

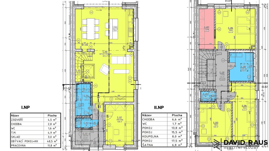
Dispozice domu:

1.NP
Vstupní dveře vedou do zádveří ( 4,5 m²), vedoucí do chodby (2,8 m²) s přístupem na samostatné WC ( 1,6 m²), do technické místnosti ( 4,9 m²), pracovny (11,8m²), skladu (3,0 m²)a otevřeného obývacího pokoje s kuchyňským koutem ( 48,5 m²). Ústředním prvkem propojující jednotlivá patra domu je schodiště z obývacího pokoje.

2.NP
Do druhého patra domu vystoupáme po schodišti na chodbu ( 6,6 m²), kde se nachází tři samostatné pokoje, které mohou sloužit jako samostatné dva dětské pokoje ( 13,8m², 15,5m²) a ložnice (17,5m²) ze které vedou dveře do šatny (6,8m²). K dispozici na patře je prostorná koupelna ( 8,0 m²) a samostatné WC ( 1,7m²).

Základní informace :

- výstavba RD na klíč (5+kk )
- podlahová plocha domu 175 m²
- užitná plocha domu 147 m²
- výměra pozemku 283 m²
- fotovoltaická elektrárna
- podlahové teplovodní topení
- tepelné čerpadlo
- zastřešené parkovací stání
- perfektní občanská vybavenost a dostupnost do města Brna
- atraktivní lokalita pro bydlení
- předpokládaný termín dokončení 3.kvartál 2026

Veškerý právní servis zajištěn. Nabízím možnost financování. Pro více informací kontaktujte makléře.

Parametry domu

Cena
13 990 000 Kč /za nemovitost Spočítat hypotéku
Poznámka k ceně
včetně provize RK
Aktualizováno
10. 2. 2026
Adresa
Syrovická, Rajhrad
ID
00325
Stavba
Cihlová
Stav objektu
Ve výstavbě
Vybaveno
Ne
Typ objektu
Patrový
Druh objektu
Řadový
Užitná plocha
175 m2
Plocha pozemku
283 m2
Třída energetické náročnosti
A - Mimořádně úsporná
Ukazatel energetické náročnosti
51.5 kWh/m2 za rok
Elektřina
230V
Odpad
Veřejná kanalizace
Komunikace
Asfaltová
Doprava
Vlak, Dálnice, Silnice, Autobus
Voda
Vodovod
Nízkoenergetický

Kontaktovat makléře

Máte zájem o tento dům?

Tímto, v souladu s nařízením Evropského parlamentu a Rady (EU) 2016/679, v platném znění, prohlašuji, že mi je alespoň 16 let a uděluji tak svůj souhlas se zpracováním zadaných údajů (jméno, telefon, e-mail, ip adresa) společnosti B3 Technology, s.r.o., IČ: 07330600, se sídlem Novostavby 126/23, 435 11 Lom (správce dat), za účelem předání dotazu z tohoto formuláře Vámi vybranému inzerentovi a zpětného kontaktování mé osoby. Osobní údaje bude správce zpracovávat manuálně i automaticky přímo prostřednictvím svých zaměstnanců. Informace předané tímto formulářem budou uloženy v databázi správce maximálně po dobu 10 let. Odvolání souhlasu s uložením a zpracováním poskytnutých dat lze e-mailem na info@vitio.cz. V případě podezření na neoprávněné použití Vámi poskytnutých údajů máte právo předat podnět k šetření Úřadu pro ochranu osobních údajů. Více informací
Chystáte se prodat nemovitost?
Pomůžeme Vám!

Inzerát si prohlédlo 21 lidí

Prodejce

Ing. David Raus

Ing. David Raus

Hlídací pes

Chcete dostávat emailem podobné nabídky prodeje rodinných domů v Rajhradu?

Podobné nemovitosti