Pronájem bytu 2+kk, Brandýs nad Labem-Stará Boleslav - Brandýs nad Labem, Augustina Lukeše, 48 m2

Augustina Lukeše, Brandýs nad Labem-Stará Boleslav

22 500 Kč /za měsíc Získejte výhodnou HYPOTÉKU

(vratná jistota, zúčtovatelné zálohy 3.981,- Kč, poplatek za podnájem, venkovní parkovací stání a skl)

Exkluzivní partneři v Brandýse nad Labem

Informace k bytu

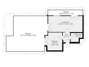
K dlouhodobému pronájmu nabízíme hezký prostorný, částečně zařízený byt 2+kk rozlohy 48 m2 v posledním 4. patře novostavby v klidné části Brandýsa nad Labem vyznačující se rozlehlou terasou s úžasnými výhledy přístupnou z obou pokojů a samostatným balkónem vedle dobře vybavené prostorné kuchyně s kvalitními vestavěnými spotřebiči. Všechna okna jsou vybavena polohovatelnými předokenními žaluziemi pro větší světelný a teplotní komfort. K bytu náleží venkovní parkovací stání a prostorný sklep v suterénu domu.

K dispozici solidním zájemcům hledajícím dlouhodobé kvalitní bydlení k okamžitému nastěhování.

Individuální prohlídky možné po domluvě kdykoliv včetně pozdních večerních hodin a víkendů.

Byt pronajímá Ideální nájemce - služba, se kterou budete bydlet bezstarostně a za férových podmínek. Když se něco přihodí, k dispozici jsou správci, kteří s Vámi vše vyřeší. Pomůžeme s veškerou administrativou, s nastavením plateb a zajistíme Vám speciální pojištění. Pojďte bydlet s námi!

Parametry bytu

Cena
22 500 Kč /za měsíc
Poznámka k ceně
vratná jistota, zúčtovatelné zálohy 3.981,- Kč, poplatek za podnájem, venkovní parkovací stání a skl
Aktualizováno
26. 11. 2025
Adresa
Augustina Lukeše, Brandýs nad Labem-Stará Boleslav
ID
N6835
Stavba
Cihlová
Stav objektu
Novostavba
Patro
4. z 4
Vybaveno
Částečně
Typ objektu
Patrový
Lokalita objektu
Klidná část obce
Vlastnictví
Družstevní
Užitná plocha
48 m2
Podlahová plocha
48 m2
Elektřina
230V
Topení
Ústřední dálkové
Balkon
Sklep
Lodžie
Terasa
Výtah
Bezbarierový přístup
Převod do OV
Parkování

Kontaktovat makléře

Máte zájem o tento byt?

Tímto, v souladu s nařízením Evropského parlamentu a Rady (EU) 2016/679, v platném znění, prohlašuji, že mi je alespoň 16 let a uděluji tak svůj souhlas se zpracováním zadaných údajů (jméno, telefon, e-mail, ip adresa) společnosti B3 Technology, s.r.o., IČ: 07330600, se sídlem Novostavby 126/23, 435 11 Lom (správce dat), za účelem předání dotazu z tohoto formuláře Vámi vybranému inzerentovi a zpětného kontaktování mé osoby. Osobní údaje bude správce zpracovávat manuálně i automaticky přímo prostřednictvím svých zaměstnanců. Informace předané tímto formulářem budou uloženy v databázi správce maximálně po dobu 10 let. Odvolání souhlasu s uložením a zpracováním poskytnutých dat lze e-mailem na info@vitio.cz. V případě podezření na neoprávněné použití Vámi poskytnutých údajů máte právo předat podnět k šetření Úřadu pro ochranu osobních údajů. Více informací
Chystáte se prodat nemovitost?
Pomůžeme Vám!

Inzerát si prohlédlo 10 lidí

Prodejce

Miloslava Kačerová

Miloslava Kačerová

Hlídací pes

Chcete dostávat emailem podobné nabídky pronájmu bytů 2+kk v Brandýse nad Labem?

Podobné nemovitosti