Prodej rodinného domu, Osek - Malá Turná, 89 m2

Osek, Malá Turná

7 600 000 Kč /za nemovitost HYPOTÉKA od 33 967 Kč /za měsíc
Exkluzivní partneři v Oseku

Informace k domu

Prodej rodinného domu 3+kk, 89 m², Malá Turná

Hledáte klid, přírodu a zároveň nízké provozní náklady s výbornou dostupností?
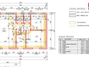
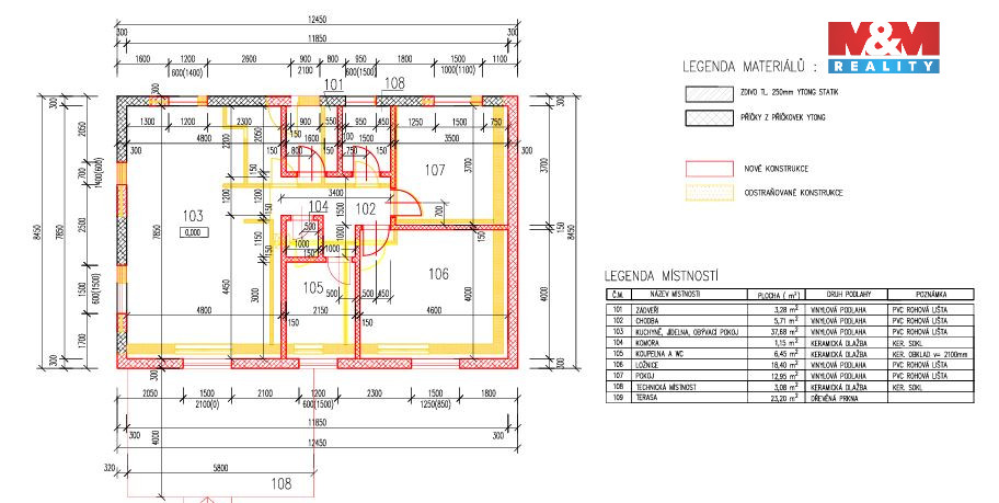
Představujeme Vám jedinečnou příležitost: moderní, právě dokončený rodinný dům 3+kk, 89 m² s pozemkem 988 m², situovaný na úplném okraji malebné jihočeské obce Malá Turná, který zaručuje maximální soukromí, ticho a nekonečné výhledy do zeleně. Moderní montovaná dřevostavba se slunnou terasou 24 m², půdním prostorem 25 m², vyniká nejen kvalitou zpracování, ale i důrazem na energetickou efektivitu. Energetický štítek třídy B vám zajistí minimální náklady na vytápění a provoz po celý rok. Díky vlastnímu vrtu, čističce odpadních vod a FVE (vytápění a ohřev vody elektřinou) jsou veškeré provozní náklady cca 1.000,- Kč měsíčně. Ačkoliv bydlíte uprostřed klidu, nemusíte se vzdávat komfortu měst, Radomyšl 5 min, Strakonice 10 min, Písek 15 min.
Dům je připraven k okamžitému nastěhování a nabízí bezpečné zázemí pro vaše děti. Pro více informací nás neváhejte nás kontaktovat.
Váš nový život může začít právě teď!

Parametry domu

Cena
7 600 000 Kč /za nemovitost Spočítat hypotéku
Aktualizováno
25. 11. 2025
Adresa
Osek, Malá Turná
ID
922579
Stavba
Montovaná
Stav objektu
Novostavba
Vybaveno
Ne
Druh objektu
Samostatný
Lokalita objektu
Okraj obce
Vlastnictví
Osobní
Užitná plocha
89 m2
Plocha pozemku
988 m2

Kontaktovat makléře

Realitní kancelář

Logo M&M reality

M&M reality

ulice Krakovská 583/9, Praha

Chystáte se prodat nemovitost?
Pomůžeme Vám!

Máte zájem o tento dům?

Tímto, v souladu s nařízením Evropského parlamentu a Rady (EU) 2016/679, v platném znění, prohlašuji, že mi je alespoň 16 let a uděluji tak svůj souhlas se zpracováním zadaných údajů (jméno, telefon, e-mail, ip adresa) společnosti B3 Technology, s.r.o., IČ: 07330600, se sídlem Novostavby 126/23, 435 11 Lom (správce dat), za účelem předání dotazu z tohoto formuláře Vámi vybranému inzerentovi a zpětného kontaktování mé osoby. Osobní údaje bude správce zpracovávat manuálně i automaticky přímo prostřednictvím svých zaměstnanců. Informace předané tímto formulářem budou uloženy v databázi správce maximálně po dobu 10 let. Odvolání souhlasu s uložením a zpracováním poskytnutých dat lze e-mailem na info@vitio.cz. V případě podezření na neoprávněné použití Vámi poskytnutých údajů máte právo předat podnět k šetření Úřadu pro ochranu osobních údajů. Více informací
Chystáte se prodat nemovitost?
Pomůžeme Vám!

Inzerát si prohlédlo 11 lidí

Prodejce

Mgr. Michal Nejedlý

Mgr. Michal Nejedlý

Hlídací pes

Chcete dostávat emailem podobné nabídky prodeje rodinných domů v Oseku (okr. Strakonice)?

Podobné nemovitosti