Pronájem bytu 1+kk, Brno, Hvozdecká, 38 m2

Hvozdecká, Brno, Bystrc

16 000 Kč /za měsíc Získejte výhodnou HYPOTÉKU

(včetně právního servisu)

Exkluzivní partneři v Brně

Informace k bytu

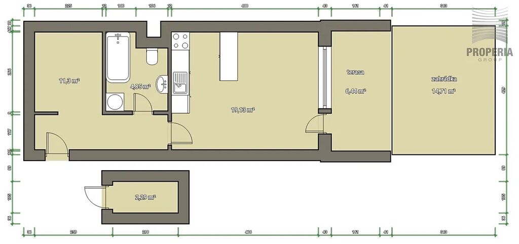
Nabízíme k pronájmu krásný a světlý byt o dispozici 1+kk a podlahové ploše 38 m² v oblíbené lokalitě Kamechy. Byt je velmi útulný, vybavený klimatizací a díky vlastní zahrádce nabízí dokonalé propojení pohodlí bytu s relaxací venku.

Moderní interiér je řešen prakticky a s důrazem na komfort. Zahrádka poskytuje ideální prostor pro odpočinek, grilování či posezení s přáteli.

Byt se nachází v klidné části města s výbornou občanskou vybaveností – v okolí naleznete obchody, kavárny, restaurace i přírodu pro volnočasové aktivity. Výborná dopravní dostupnost do centra Brna.

Hlavní výhody bytu:
• útulný a světlý interiér
• klimatizace pro komfort v létě i v zimě
• vlastní zahrádka pro relax a soukromí
• klidná a vyhledávaná lokalita Kamechy

Cena je 16.000,- měsíčně včetně nájmu + elektřina, internet.

Tento byt je ideální volbou pro jednotlivce či pár, kteří hledají moderní bydlení s příjemným venkovním prostorem.
Preferujeme nekuřáky a bez domácích mazlíčků.
Těšíme se na prohlídce.

Parametry bytu

Cena
16 000 Kč /za měsíc
Poznámka k ceně
včetně právního servisu
Aktualizováno
11. 10. 2025
Adresa
Hvozdecká, Brno, Bystrc
ID
03631
Stavba
Cihlová
Stav objektu
Velmi dobrý
Patro
1. z 4
Vybaveno
Částečně
Lokalita objektu
Klidná část obce
Vlastnictví
Osobní
Užitná plocha
38 m2
Plocha zahrady
15 m2
Třída energetické náročnosti
G - Mimořádně nehospodárná
Elektřina
230V
Odpad
Veřejná kanalizace
Komunikace
Asfaltová
Telekomunikace
Internet
Doprava
Silnice, MHD, Autobus
Voda
Vodovod
Topné těleso
Klimatizace
Zdroj topení
Centrální dálkové
Zdroj teplé vody
Centrální dálkový ohřev
Sklep
Výtah
Bezbarierový přístup

Kontaktovat makléře

Máte zájem o tento byt?

Tímto, v souladu s nařízením Evropského parlamentu a Rady (EU) 2016/679, v platném znění, prohlašuji, že mi je alespoň 16 let a uděluji tak svůj souhlas se zpracováním zadaných údajů (jméno, telefon, e-mail, ip adresa) společnosti B3 Technology, s.r.o., IČ: 07330600, se sídlem Novostavby 126/23, 435 11 Lom (správce dat), za účelem předání dotazu z tohoto formuláře Vámi vybranému inzerentovi a zpětného kontaktování mé osoby. Osobní údaje bude správce zpracovávat manuálně i automaticky přímo prostřednictvím svých zaměstnanců. Informace předané tímto formulářem budou uloženy v databázi správce maximálně po dobu 10 let. Odvolání souhlasu s uložením a zpracováním poskytnutých dat lze e-mailem na info@vitio.cz. V případě podezření na neoprávněné použití Vámi poskytnutých údajů máte právo předat podnět k šetření Úřadu pro ochranu osobních údajů. Více informací
Chystáte se prodat nemovitost?
Pomůžeme Vám!

Inzerát si prohlédlo 3 lidí

Prodejce

Veronika Viklická

Veronika Viklická

Hlídací pes

Chcete dostávat emailem podobné nabídky pronájmu bytů 1+kk v Brně?

Podobné nemovitosti