Prodej rodinného domu, Velký Týnec, Leopolda Prečana, 150 m2

Leopolda Prečana, Velký Týnec

10 500 000 Kč /za nemovitost HYPOTÉKA od 46 929 Kč /za měsíc
Exkluzivní partneři v Velkém Týnci

Informace k domu

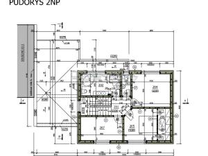
Nabízíme k prodeji novostavbu rodinného domu ve Velkém Týnci u Olomouce. Dům je velmi velkoryse řešen jako 5+kk s technickou místností navazující na dům. Parkování pod přístřeškem před domem a dalším místem na parkování pro dvě auta. Přízemí je dispozičně řešené se zádveřím a vstupní chodbou, koupelnou s WC, pokojem, dále pak prostorný obývací pokoj s kuchyní a masivním schodištěm do patra. V prvním patře 3 samostatné pokoje, koupelna s toaletou. Obývací část spojená s kuchyní se vstupem přes prosklený portál na terasu a pozemek. V kuchyňské části se počítá i s praktickou komorou. V patře koupelna s možností umístění vany a sprchového koutu. Podlahové topení a ohřev vody je řešen tepelným čerpadlem vzduch voda. Novostavba domu je řešená jako difuzně otevřená dřevostavba s provětrávanou fasádou designovými panely James Hardie. Okna jsou plastová šesti komorová s trojskly včetně vstupních dveří. Novostavba má nachystanou přípravu na venkovní žaluzie a klimatizaci, v technické místnosti je možnost instalace toalety. Dům se nabízí jako dokončená stavba pouze bez podlahových krytin, obložek s dveřmi a koupelen s tím, že nový majitel domu si je může dokončit dle svých představ. Celková užitná plocha domu činí 150 m2, dále pak zastřešené venkovní stání o výměře 30 m2 a pozemek o celkové výměře 502 m2. Dům je napojen na inženýrské sítě, a to vodovod, kanalizaci, elektřinu, dešťová voda je svedena do akumulační nádrže s přepadem. Energetická náročnost stavby je B – velmi úsporná. Velkou výhodou je umístění domu, jedná se o rohový dům na ulici Podštampilí ve Velkém Týnci. Dokončení nemovitosti se plánuje na jaro 2026. Cena nemovitosti 10.500.000,- Kč, včetně provize a právních služeb realitní kanceláře. Možnost financování úvěrem zdarma našim partnerem. Více informací Vám rád zodpovím osobně.

Parametry domu

Cena
10 500 000 Kč /za nemovitost Spočítat hypotéku
Aktualizováno
10. 10. 2025
Adresa
Leopolda Prečana, Velký Týnec
ID
2025073
Stavba
Dřevěná
Stav objektu
Novostavba
Typ objektu
Patrový
Druh objektu
Řadový
Užitná plocha
150 m2
Zastavěná plocha
99 m2
Podlahová plocha
180 m2
Plocha pozemku
502 m2
Třída energetické náročnosti
B - Velmi úsporná
Odpad
Veřejná kanalizace
Komunikace
Asfaltová
Doprava
Autobus
Voda
Vodovod, Retenční nádrž na dešt’ovou vodu
Převod do OV
Parkování

Kontaktovat makléře

Máte zájem o tento dům?

Tímto, v souladu s nařízením Evropského parlamentu a Rady (EU) 2016/679, v platném znění, prohlašuji, že mi je alespoň 16 let a uděluji tak svůj souhlas se zpracováním zadaných údajů (jméno, telefon, e-mail, ip adresa) společnosti B3 Technology, s.r.o., IČ: 07330600, se sídlem Novostavby 126/23, 435 11 Lom (správce dat), za účelem předání dotazu z tohoto formuláře Vámi vybranému inzerentovi a zpětného kontaktování mé osoby. Osobní údaje bude správce zpracovávat manuálně i automaticky přímo prostřednictvím svých zaměstnanců. Informace předané tímto formulářem budou uloženy v databázi správce maximálně po dobu 10 let. Odvolání souhlasu s uložením a zpracováním poskytnutých dat lze e-mailem na info@vitio.cz. V případě podezření na neoprávněné použití Vámi poskytnutých údajů máte právo předat podnět k šetření Úřadu pro ochranu osobních údajů. Více informací
Chystáte se prodat nemovitost?
Pomůžeme Vám!

Inzerát si prohlédlo 5 lidí

Prodejce

Ondřej Rudolf

Ondřej Rudolf

Hlídací pes

Chcete dostávat emailem podobné nabídky prodeje rodinných domů v Velkém Týnci?

Podobné nemovitosti