Prodej rodinného domu, Brno, Obecní, 287 m2

Obecní, Brno, Nový Lískovec

36 270 000 Kč /za nemovitost HYPOTÉKA od 162 105 Kč /za měsíc

(včetně DPH, včetně poplatků, včetně provize, včetně právního servisu)

Exkluzivní partneři v Brně

Informace k domu

Na samotném konci klidné slepé ulice obklopené vzrostlými stromy a zelení je situován dům, který dokonale propojuje moderní architekturu, funkčnost a pocit opravdového domova. Tento výjimečný rodinný dům po kompletní rekonstrukci v letech 2021–2022 nabízí luxusní rodinné bydlení v naprostém soukromí jen pár minut od centra Brna.

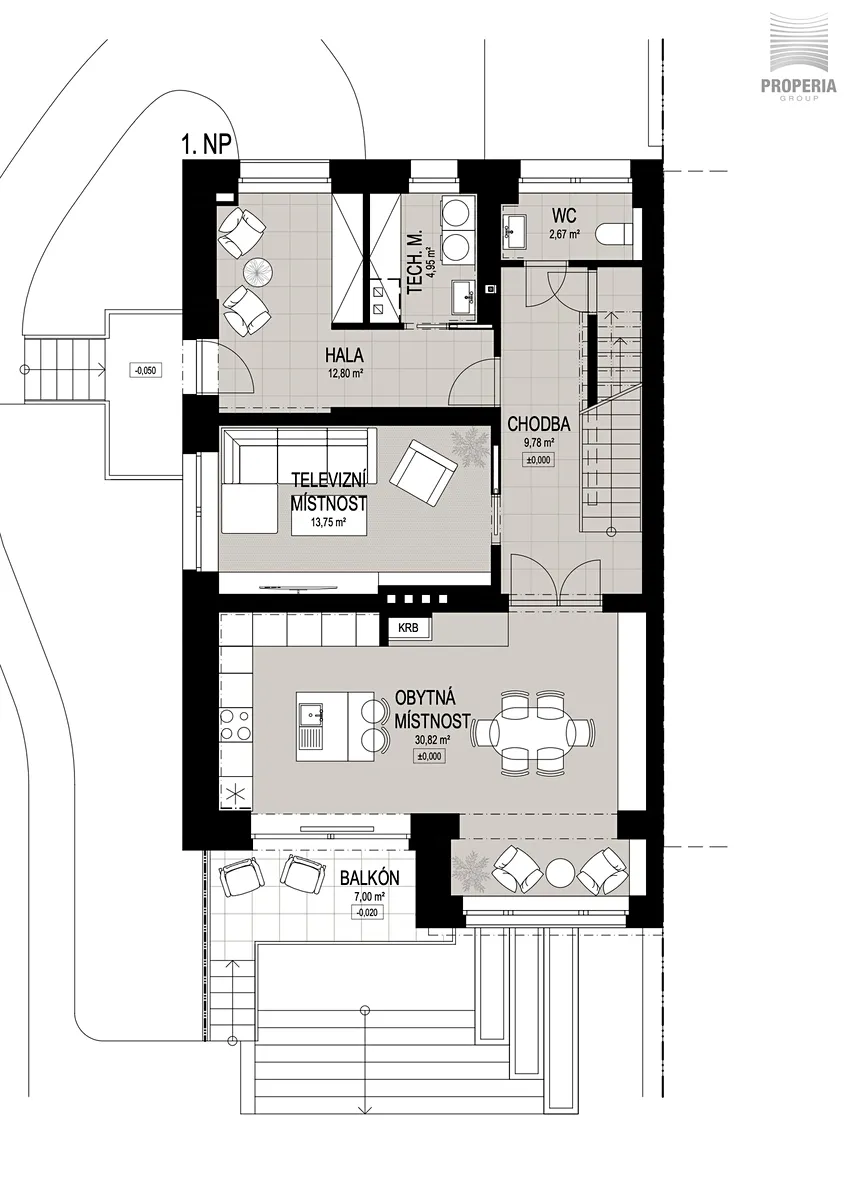
Dům disponuje užitnou plochou 306 m², z toho 230 m² tvoří obytná tři patra a zbytek technické zázemí a garáž v suterénu. Zahrada o velikosti 467 m² je krásně udržovaná, se vzrostlými stromy, klidnými zákoutími a krytým posezením s venkovním krbem a vířivkou, které vytvářejí soukromou oázu pro odpočinek a relaxaci.

Většina obytných místností, obývací pokoj i terasa jsou orientovány na jih, díky čemuž je dům celý den prosvětlený a působí nesmírně vzdušně a útulně. Interiér byl zcela nově vybudován v jednotném moderním stylu s důrazem na detail, nadčasovost a kvalitní materiály. Dominantou domu je prostorná kuchyně Hanák s ostrovem, vestavnými spotřebiči a přímým vstupem na terasu do zahrady.

Dispozice 7 + kk zahrnuje velkorysý obývací prostor s jídelnou a kuchyní, pět ložnic, pracovnu v suterénu, dvě koupelny a tři samostatné toalety. V domě byla provedena kompletní rekonstrukce – nová střecha, fasáda, rozvody elektřiny, vody, odpadů i topení, dále zateplení, nové podlahy ve všech patrech, omítky, obklady, sanita, dveře a osvětlení. Použitá okna jsou dřevohliníková – zvenčí odolný hliník, zevnitř přírodní dřevo – a jsou vybavena elektricky ovládanými předokenními žaluziemi ve všech místnostech.

Komfort zajišťuje rekuperační jednotka Brinks 400, která přivádí čerstvý vzduch do celého domu, a plynový kotel se zásobníkem TUV pro úsporný ohřev vody a vytápění. Bezpečnost domu zajišťuje kamerový systém a alarm Jablotron.

Součástí domu je garáž pro menší vůz a možnost parkování na vjezdu. Na vybudování dalšího parkovacího stání přímo na pozemku před domem je k dispozici projekt se stavebním povolením.

Lokalita Nový Lískovec patří mezi nejžádanější části Brna pro rodinné bydlení díky své poloze, množství zeleně a výborné dopravní dostupnosti. Ulice Obecní je tichá, koncová a poskytuje naprosté soukromí – ideální pro rodiny, které hledají komfort města a klid přírody.

Tento dům je ukázkou precizní rekonstrukce, kvalitního řemesla a promyšleného designu. Nabízí dokonalou kombinaci komfortu, elegance a pohody, která z něj činí velmi atraktivní rodinné bydlení v Brně.

Parametry domu

Cena
36 270 000 Kč /za nemovitost Spočítat hypotéku
Poznámka k ceně
včetně DPH, včetně poplatků, včetně provize, včetně právního servisu
Aktualizováno
14. 10. 2025
Adresa
Obecní, Brno, Nový Lískovec
ID
03633
Stavba
Cihlová
Stav objektu
Po rekonstrukci
Vybaveno
Částečně
Druh objektu
Rohový
Lokalita objektu
Klidná část obce
Užitná plocha
287 m2
Zastavěná plocha
115 m2
Podlahová plocha
306 m2
Plocha pozemku
582 m2
Plocha zahrady
467 m2
Třída energetické náročnosti
B - Velmi úsporná
Ukazatel energetické náročnosti
81 kWh/m2 za rok
Elektřina
230V
Odpad
Veřejná kanalizace
Telekomunikace
Kabelové rozvody
Voda
Vodovod
Topné těleso
Radiátory
Zdroj topení
Plynový kondenzační kotel
Zdroj teplé vody
Plynový kondenzační kotel
Garáž
Výtah
Parkování
Bazén

Kontaktovat makléře

Máte zájem o tento dům?

Tímto, v souladu s nařízením Evropského parlamentu a Rady (EU) 2016/679, v platném znění, prohlašuji, že mi je alespoň 16 let a uděluji tak svůj souhlas se zpracováním zadaných údajů (jméno, telefon, e-mail, ip adresa) společnosti B3 Technology, s.r.o., IČ: 07330600, se sídlem Novostavby 126/23, 435 11 Lom (správce dat), za účelem předání dotazu z tohoto formuláře Vámi vybranému inzerentovi a zpětného kontaktování mé osoby. Osobní údaje bude správce zpracovávat manuálně i automaticky přímo prostřednictvím svých zaměstnanců. Informace předané tímto formulářem budou uloženy v databázi správce maximálně po dobu 10 let. Odvolání souhlasu s uložením a zpracováním poskytnutých dat lze e-mailem na info@vitio.cz. V případě podezření na neoprávněné použití Vámi poskytnutých údajů máte právo předat podnět k šetření Úřadu pro ochranu osobních údajů. Více informací
Chystáte se prodat nemovitost?
Pomůžeme Vám!

Inzerát si prohlédlo 3 lidí

Prodejce

Mgr. Jan Roztočil

Mgr. Jan Roztočil

Hlídací pes

Chcete dostávat emailem podobné nabídky prodeje rodinných domů v Brně?

Podobné nemovitosti